Apartament 2 camere – Ultracentral Medgidia, langa Primarie

63.000 €

Medgidia, Județul Constanța

Nr. cam.:
2
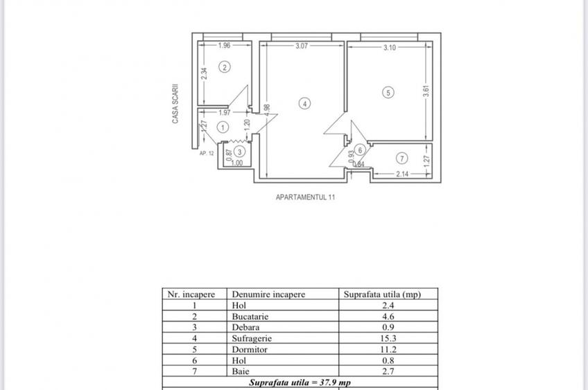
Sup. utilă:
37,9 mp
Etaj:
3 / 3
Tip prop.:
Bloc de apartamente
  • • Locație aproximativă

Descriere apartament

Apartament situat in zona 0 a orasului Medgidia, chiar langa Primarie – una dintre cele mai cautate si apreciate locatii din oras. Pozitia este excelenta, oferind acces facil catre scoli, gradinite, magazine, institutii publice si toate facilitatile urbane. Apartamentul este compus din 2 camere nedecomandate, situat la etajul 3/3 al unui bloc solid din caramida, cunoscut pentru rezistenta si confort termic. Locuinta necesita renovare, ceea ce ofera viitorului proprietar posibilitatea de a o amenaja dupa propriul gust si stil. Dispune de centrala termica pe gaz, ceea ce asigura independenta si eficienta energetica. Centrala proprie pe gaz Bloc din caramida Pozitie ultracentrala – langa Primarie, scoli si magazine Ideal pentru locuinta personala sau investitie inchiriabila Pentru mai multe detalii si programarea unei vizionari, contacteaza-ne.
Citește mai mult Citește mai puțin
Semidecomandat Centrală proprie Necesită renovare

Detalii apartament

ID anunț: XELP100K6 Copiat! 275151968 Copiat!
Actualizat în: 03 Martie 2026
Nr. bucătării: 1
Nr. băi: 1
Structură rezistență: Cărămidă
Regim înălțime: P+3E

Utilități

Utilități
Curent Apă Canalizare Gaze
Comision
2%

Disponibilitate proprietate:

imediat

Puncte de interes

Recreere
park
Parcul Posta
Parcuri aprox. 695 m
sports-ground
Teren sportiv
Terenuri sport aprox. 717 m
park
Parcul Central
Parcuri aprox. 883 m
sports-ground
Stadionul I.M.U.M.
Terenuri sport aprox. 1873 m

Detalii despre preț și costuri

Prețul pe piață

Preț cerut: 63.000 €

Preț min. zonă 35.000 €
Preț max. zonă 80.000 €

98% dintre proprietățile similare ca zonă și nr. camere au prețul cerut mai mic. mai multe...

Bine de știut: prețul unei proprietăți este influențat și de alte caracteristici, cum ar fi: vechime, localizare, vecinătăți, suprafață, compartimentare, amenajări, dotări, etc. mai puțin...

Costuri cu achiziția

Fără credit
10.790 RON
Credit ipotecar
12.042 RON
Noua casă
461 RON+ taxe notariale

i

Costuri adiționale mai puțin știute la achiziție: taxe notariale, comisioane etc.

Proprietăți recomandate

Detalii de contact

EVOLUT IMOBILIARE

Sibel Cherim Administrator

5.00(3 review-uri)

EVOLUT IMOBILIARE
PRO

Abonează-te la newsletter să fii primul care primește cele mai noi recomandări de proprietăți și sfaturi de la experți.

CONTACT

Creează alertă

Salvează căutarea ca să primești pe email ultimele anunțuri publicate

Apartamente cu 2 camere de vânzare în Medgidia, Județul Constanța