Apartamente premium de vanzare, Mosnita Noua

73.140 €

Moșnița Nouă, Județul Timiș

Nr. cam.:
3
Sup. utilă:
46 mp
Etaj:
Parter / 2
An constr.:
2025
  • • Comision 0%
  • • Locație aproximativă
  • • Proprietate nelocuită

Descriere apartament

WESTSIDE IMOBILIARE Vă prezintă un nou bloc cu apartamente și spații comerciale în Cartierul Armonia – lângă Moșnița Nouă Locuințe moderne și oportunități comerciale într-o zonă în plină dezvoltare Westside Imobiliare vă propune un proiect rezidențial nou, situat în Cartierul Armonia, o zonă liniștită și în expansiune, la doar câteva minute de Moșnița Nouă și Timișoara. Complexul include apartamente moderne cu 1, 2 și 3 camere, dar și spații comerciale de vânzare, ideale pentru afaceri sau investiții. Tipuri de proprietăți disponibile: Apartamente cu compartimentări variate și suprafețe diferite Finisaje premium, design modern și eficiență spațială Spații comerciale la parter, ideale pentru magazine, birouri, saloane sau cabinete Avantaje cheie: Locație excelentă într-un cartier nou și bine organizat Potrivite pentru cupluri tinere, familii sau investitori Posibilitate dublă de investiție: locuire + spațiu comercial Acces facil la Timișoara, infrastructură completă: asfalt, iluminat, utilități Prețuri competitive, randament excelent pentru închiriere sau revânzare Contactați Westside Imobiliare pentru detalii despre tipurile de apartamente și spații comerciale disponibile. Investește inteligent – în confortul tău sau în dezvoltarea afacerii tale! Pretul afisat are TVA de 21% inclus!!!
Citește mai mult Citește mai puțin
Semidecomandat 1 Balcon / Terasă / Logie 2 Parcări

Detalii apartament

ID anunț: XG190000N Copiat! 275074626 Copiat!
Actualizat în: 03 Martie 2026
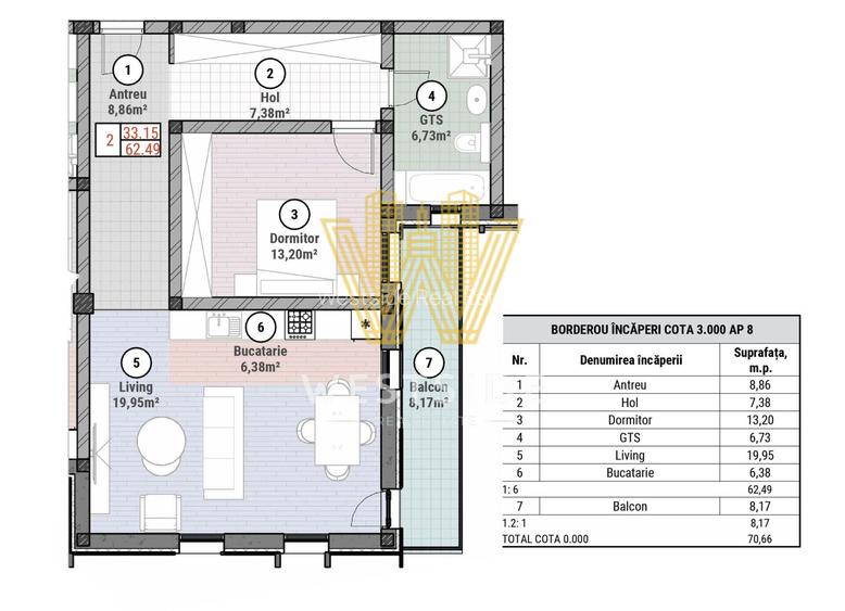
Suprafață utilă totală: 46 mp
Suprafață construită: 60 mp
Nr. bucătării: 1
Nr. băi: 1
Tip imobil: Bloc de apartamente
Regim înălțime: P+2E

Utilități

Destinație
Rezidențial Birouri
Pereți
Faianță
Podele
Gresie Parchet
Contorizare
Apometre
Alte spații utile
WC Serviciu
Utilități
Curent Canalizare Apă
Amenajare străzi
Mijloace de transport în comun
Comision
0%

Certificat energetic:

Clasa energetică: B

Detalii despre preț și costuri

Prețul pe piață

Preț cerut: 73.140 €

Preț min. zonă 74.999 €
Preț max. zonă 145.000 €

i

Proprietate cu prețul cerut în afara intervalului mai multe...

Posibile explicații pentru faptul că prețul proprietății este sub cel minim: imobil cu risc seismic, imobil cu probleme structurale, imobil demolabil, poziționare în altă zonă
Bine de știut: prețul unei proprietăți este influențat și de alte caracteristici, cum ar fi: vechime, localizare, vecinătăți, suprafață, compartimentare, amenajări, dotări, etc.

Costuri cu achiziția

Fără credit
4.845 RON
Credit ipotecar
6.177 RON
Noua casă
513 RON+ taxe notariale

i

Costuri adiționale mai puțin știute la achiziție: taxe notariale, comisioane etc.

Proprietăți recomandate

Detalii de contact

Abonează-te la newsletter să fii primul care primește cele mai noi recomandări de proprietăți și sfaturi de la experți.

CONTACT

Creează alertă

Salvează căutarea ca să primești pe email ultimele anunțuri publicate

Apartamente noi cu 3 camere de vânzare în Moșnița Nouă, Județul Timiș