Apartament 2 camere Tip Studio - 500m metrou Berceni - Gata de mutare

83.000 €

Popești-Leordeni, Județul Ilfov

Nr. cam.:
2
Sup. utilă:
45 mp
Etaj:
1 / 7
An constr.:
2024 (Finalizată)
  • • Locație exactă
  • • Vizionare prin apel video

Descriere apartament

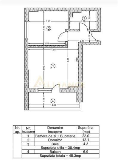
Apartament 2 camere tip studio – gata de mutare Popesti-Leordeni – Strada Biruintei La doar 500 m de metrou – ideal pentru locuit sau investitie cu randament foarte bun Detalii apartament: • Suprafata: 45 mp • Etaj: 7din 7 • Bloc cu 2 lifturi moderne • Compartimentare tip studio, eficienta si luminoasa • Incalzire in pardoseala – confort sporit si costuri reduse Excelent pentru investitie: Aproape de metrou = cerere mare pentru inchiriere Ideal pentru inchiriere pe termen lung sau Airbnb Pret: 83.000 Euro Contact:
07873**** Vezi tot numărul
Citește mai mult Citește mai puțin
Confort 1 Decomandat 1 Balcon / Terasă / Logie Centrală proprie Încălzire prin pardoseală

Detalii apartament

ID anunț: XCSE00IKL Copiat! 275164583 Copiat!
Actualizat în: 02 Martie 2026
Suprafață utilă totală: 45 mp
Suprafață construită: 45 mp
Nr. bucătării: 1
Nr. băi: 1
Structură rezistență: Altele
Tip imobil: Bloc de apartamente
Regim înălțime: P+7E

Utilități

Destinație
Birouri
Pereți
Faianță Vopsea lavabilă Var Humă
Podele
Parchet Gresie
Ușă intrare
Metal
Uși interior
Celulare
Izolații termice
Exterior
Ferestre cu geam termopan
PVC
Contorizare
Apometre Contor gaz
Facilități imobil
Lift Interfon
Utilități
Apă Curent Gaze Canalizare CATV
Internet
Cablu Fibră optică Wireless
Amenajare străzi
Asfaltate Iluminat stradal Mijloace de transport în comun

Vecinătăți:

Scoala/gradinita, Parc, Trafic Pietonal, Zona comerciala, Autobuz, Metrou

Puncte de interes

Mijloace transport
metro-station
Berceni (M2)
Stații metrou aprox. 209 m
bus-station
Statia IMGB Poarta 2, linia 125, metrou M2
Stații autobuz aprox. 211 m
bus-station
Statia IMGB Poarta 1 linia 125
Stații autobuz aprox. 770 m
metro-station
Dimitrie Leonida (M2)
Stații metrou aprox. 928 m
Școală
school
Colegiul Tehnic Miron Nicolescu
Școli aprox. 1287 m
Recreere
supermarket
Nonni
Supermarket aprox. 288 m
park
Parc
Parcuri aprox. 536 m
sports-ground
Teren sportiv
Terenuri sport aprox. 1679 m
hypermarket
Metro Berceni
Hipermarket aprox. 1994 m

Detalii despre preț și costuri

Prețul pe piață

Preț cerut: 83.000 €

Preț min. zonă 61.500 €
Preț max. zonă 120.000 €

72% dintre proprietățile similare ca zonă și nr. camere au prețul cerut mai mic. mai multe...

Bine de știut: prețul unei proprietăți este influențat și de alte caracteristici, cum ar fi: vechime, localizare, vecinătăți, suprafață, compartimentare, amenajări, dotări, etc. mai puțin...

Costuri cu achiziția

Fără credit
5.309 RON
Credit ipotecar
6.719 RON
Noua casă
563 RON+ taxe notariale

i

Costuri adiționale mai puțin știute la achiziție: taxe notariale, comisioane etc.

Proprietăți similare

Apartament cu 2 camere semidecomandat în Central
89.000 €
Județul Ilfov, Popești-Leordeni
2 camere
45 mp
Etaj 1
Apartament cu 2 camere decomandat, mobilat în Central
90.000 €
Județul Ilfov, Popești-Leordeni
2 camere
42,52 mp
Mansardă / 2
Apartament cu 2 camere decomandat, mobilat în Central
85.500 €
Județul Ilfov, Popești-Leordeni
2 camere
52 mp
Etaj 3

Detalii de contact

ALLIANCE REZIDENTIAL IMOBILIARE

Valentin Sumudica Consilier Imobiliar

ALLIANCE REZIDENTIAL IMOBILIARE
PRO

Abonează-te la newsletter să fii primul care primește cele mai noi recomandări de proprietăți și sfaturi de la experți.

CONTACT

Creează alertă

Salvează căutarea ca să primești pe email ultimele anunțuri publicate

Apartamente noi cu 2 camere de vânzare în Popești-Leordeni, Județul Ilfov