3camdec nou2bai-78mp/mob-util cf foto+parc/centru Popesti-Leordeni

158.000 €

Popești-Leordeni, Județul Ilfov

Nr. cam.:
3
Sup. utilă:
74 mp
Etaj:
1 / 2
An constr.:
2023 (Finalizată)
  • • Comision 0%
  • • Locație aproximativă

Descriere apartament

Proprietar, vand prin agentie(pentru informatii si vizionare, tel:
07200**** Vezi tot numărul
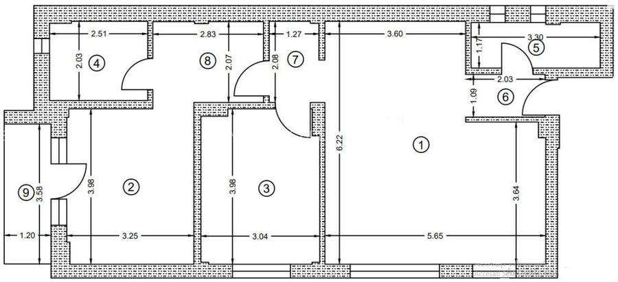
). apartament(constructie noua, anul 2023), compus din 3 camere si dependinte(2 bai, una cu dus, cealalta cu cada, amandoua cu aerisire naturala), mobilat si utilat ca in fotografii(inclusiv corpuri de iluminat, perdele, etc.); dispune de mobilier dar si aparatura electrocasnica de calitate), deosebit, avand spatii vitrate generoase, ce ofera o lumina naturala foarte buna, pozitionarea fiind pe Est, Sud si Nord. Fotografii reale, se vinde asa cum se vede in fotografii, iar pretul include si un loc de parcare exterior, fiind negociabil. Se accepta orice modalitate de achizitie - cash/credit ipotecar, dispunand de toate utilitatile orasului, contorizate individual, incalzire in pardoseala, finisaje deosebite(gresie, faianta, parchet laminat, usi de interior, obiecte sanitare in bai, centrala termica pe gaz Ariston, de 24kw, tamplarie cu geam tripan, usa metalica antiefractie la intrarea in apartament, corpuri de iluminat,etc.) . Apartamentul este dispus pe etajul 1/2, intr-un p+2+pod(placa de beton peste etajul 2 si pod), fiind doar cate 2 apartamente pe fiecare nivel, formand astfel, o comunitate restransa ce se poate gestiona usor; aveti atasata schita/releveul corespunzatoare apartamentului. Aveti la dispozitie doua bai, fiecare cu aerisire naturala si echipate, una cu cabina de dus cu rigola(walk-in) si cealalta cu cada. Apartamentul dispune de toata aparatura electrocasnica necesara, oferind un confort sporit. Blocul este amplasat in zona centrala, de case si vile, a orasului Popesti Leordeni, ce ofera trafic redus, liniste si intimitate. Comision 0% pentru cumparator; cumparatorul va beneficia de servicii complete de asistenta si consiliere bancara si notariala, pre si post-vanzare, indiferent de modalitatea de achizitie.
Citește mai mult Citește mai puțin
Confort 1 Decomandat Mobilat Mobilat 1 Balcon / Terasă / Logie Curte comună Aer condiționat Calorifere Încălzire prin pardoseală 1 Parcare

Detalii apartament

ID anunț: XA1A104H0 Copiat! 275195655 Copiat!
Actualizat în: 04 Martie 2026
Suprafață construită: 95 mp
Nr. bucătării: 1
Nr. băi: 2
Structură rezistență: Beton
Tip imobil: Bloc de apartamente
Regim înălțime: P+2E

Utilități

Destinație
Birouri Rezidențial Comercial
Pereți
Faianță Vopsea lavabilă
Podele
Gresie Parchet
Ușă intrare
Metal
Uși interior
Panel PVC Sticlă
Izolații termice
Exterior
Ferestre cu geam termopan
PVC
Contorizare
Apometre Contor gaz
Bucătărie
Mobilată Utilată
Electrocasnice
Frigider Hotă Mașină de spălat Mașină spălat vase TV
Facilități imobil
Acoperiș Videointerfon
Utilități
Curent Apă Canalizare CATV
Internet
Cablu
Servicii imobil
Supraveghere video
Amenajare străzi
Asfaltate
Comision
0%

Vecinătăți:

STB(480), Mega Image centru Popesti Leordeni, parc si loc de joaca centru Popesti Leordeni

Disponibilitate proprietate:

Imediat

Puncte de interes

Mijloace transport
bus-station
Viilor
Stații autobuz aprox. 922 m
bus-station
Prestige
Stații autobuz aprox. 1035 m
tram-station
ROMPRIM
Stații tramvai aprox. 1707 m
tram-station
ROMPRIM
Stații tramvai aprox. 1771 m
Școală
school
Scoala nr. 2
Școli aprox. 534 m
school
Scoala cu clasele I-VIII nr. 2
Școli aprox. 534 m
school
Scoala nr. 1
Școli aprox. 546 m
school
Liceul Teoretic Radu Popescu
Școli aprox. 564 m
Recreere
park
Parc
Parcuri aprox. 275 m
supermarket
Mega Image
Supermarket aprox. 337 m
restaurant
Casa Teca
Restaurant aprox. 374 m
sports-ground
Teren sportiv
Terenuri sport aprox. 555 m

Detalii despre preț și costuri

Prețul pe piață

Preț cerut: 158.000 €

Preț min. zonă 81.900 €
Preț max. zonă 182.000 €

92% dintre proprietățile similare ca zonă și nr. camere au prețul cerut mai mic. mai multe...

Bine de știut: prețul unei proprietăți este influențat și de alte caracteristici, cum ar fi: vechime, localizare, vecinătăți, suprafață, compartimentare, amenajări, dotări, etc. mai puțin...

Costuri cu achiziția

Fără credit
8.325 RON
Credit ipotecar
10.108 RON
Noua casă
945 RON+ taxe notariale

i

Costuri adiționale mai puțin știute la achiziție: taxe notariale, comisioane etc.

Proprietăți similare

Apartament cu 3 camere decomandat, mobilat în Central
160.000 €
Județul Ilfov, Popești-Leordeni
3 camere
88 mp
Etaj 1
Apartament cu 3 camere decomandat, mobilat în Central
157.000 €
Județul Ilfov, Popești-Leordeni
3 camere
72,61 mp
Etaj 5
Apartament cu 3 camere decomandat, mobilat în Central
150.000 €
Județul Ilfov, Popești-Leordeni
3 camere
88 mp
Etaj 1 / 3

Detalii de contact

MARVIS REZIDENTIAL SRL

Florin Ghenceanu Broker Imobiliar

4.89(3 review-uri)

MARVIS REZIDENTIAL SRL
PRO

Abonează-te la newsletter să fii primul care primește cele mai noi recomandări de proprietăți și sfaturi de la experți.

CONTACT

Creează alertă

Salvează căutarea ca să primești pe email ultimele anunțuri publicate

Apartamente noi cu 3 camere de vânzare în Popești-Leordeni, Județul Ilfov