BULEVARD - APARTAMENT IN BLOC NOU, 109 MP

145.000 €

Ostroveni, Râmnicu Vâlcea

Nr. cam.:
3
Sup. utilă:
89 mp
Etaj:
2 / 3
An constr.:
2016 (Finalizată)
  • • Comision 0%
  • • Locație aproximativă
  • • Vizionare prin apel video

Descriere apartament

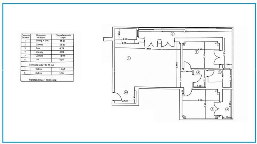
BULEVARD - APARTAMENT IN BLOC NOU, 109 MP Rm.Valcea, Bvd. Dem Radulescu, nr. 23A, et.2 145.000 Euro FARA COMISION LA CUMPARATORI ! Bloc finalizat in 2016, construit la standarde foarte bune, amplasat pe Bulevardul Dem Radulescu, vis a vis de Lidl si foarte aproape de noua zona comerciala, retras de la strada, cat sa beneficieze de linistea mult dorita a unei locuinte. Este un bloc boutique, P+3, avand putine apartamente, o comunitate de calitate. Apartamentul, are o suprafata totala de 109 mp, incluzand doua balcoane de 19 mp, suprafata ce este foarte bine distribuita cu separare zona de zi de zona de noapte. La intrare avem un spatiu larg cu mobilier adaptat pentru haine si incaltaminte. Zona de zi este una deschisa, living plus bucatarie, 48 mp ce comunica printr-o suprafata vitrata mare cu un balcon ce ofera o priveliste minunata, bulevardul in plan apropiat si muntii in plan departat. Zona de noapte are 2 dormitoare bine proportionate, ambele cu iesire spre balcoane, iar intre ele o baie amenajata foarte frumos cu 2 lavoare, dus si toaleta, plus suficient spatiu pentru masina de spalat, beneficiind si de geam exterior pentru aerisire. Delimitarile sunt realizate de cateva riflaje de efect, tot apartamentul avand amenajari foarte bune, o combinatie de culori bine gandite si materiale folosite de calitate. In 2020 locuinta a fost renovata major, cu o imbunatatire evidenta estetica si de calitate fata de starea anterioara. Blocul are locuri de parcare delimitate pentru fiecare apartament si se ia in discutie in perioada urmatoare o refacere a drumului de acces. Va invitam sa va bucurati de suprafetele generoase ale acestui apartament si de toate avantajele unui bloc nou ! Nu mai este nevoie de alte investitii, va mutati direct ! Marius Statescu Aceasta oferta imobiliara este gestionata exclusiv de Imo Office Marius Statescu si este deschisa spre colaborare catre toate agentiile imobiliare !
Citește mai mult Citește mai puțin
Confort 1 Decomandat 2 Balcoane / Terase / Logii Centrală proprie 1 Parcare

Detalii apartament

ID anunț: X85110075 Copiat! 271537349 Copiat!
Actualizat în: 12 Februarie 2026
Suprafață utilă totală: 89 mp
Suprafață construită: 109 mp
Nr. bucătării: 1
Nr. băi: 1
Structură rezistență: Altele
Tip imobil: Bloc de apartamente
Regim înălțime: P+3E

Utilități

Destinație
Rezidențial
Pereți
Faianță Vopsea lavabilă
Podele
Parchet Gresie
Ușă intrare
Metal
Izolații termice
Exterior
Ferestre cu geam termopan
PVC
Bucătărie
Utilată Mobilată
Electrocasnice
Aragaz Hotă Frigider TV Hotă Mașină de spălat
Utilități
Apă Curent Gaze Canalizare Telefon CATV
Internet
Fibră optică
Amenajare străzi
Asfaltate
Comision
0%

Vecinătăți:

Scoala/gradinita, Fastfood, Supermarket, Zona comerciala, Autobuz

Puncte de interes

Mijloace transport
bus-station
Autogara 1 Mai
Stații autobuz aprox. 1026 m
bus-station
Statie ETA S.A./autocare curse judetene
Stații autobuz aprox. 1059 m
bus-station
Statia Seminar
Stații autobuz aprox. 1651 m
bus-station
Ramnicu Valcea
Stații autobuz aprox. 1711 m
Școală
school
SCOALA NR 9
Școli aprox. 519 m
school
Scoala nr. 9
Școli aprox. 528 m
school
Gradinita nr.2 Ostroveni
Școli aprox. 741 m
kindergarten
Clubul Jocuri si Engleza
Gradinițe aprox. 1025 m
Recreere
supermarket
Lidl
Supermarket aprox. 184 m
pub
Brother's Pub
Pub aprox. 184 m
sports-ground
Teren sportiv
Terenuri sport aprox. 828 m
park
Parc
Parcuri aprox. 1509 m

Detalii despre preț și costuri

Prețul pe piață

Preț cerut: 145.000 €

Preț min. zonă 50.000 €
Preț max. zonă 148.860 €

84% dintre proprietățile similare ca zonă și nr. camere au prețul cerut mai mic. mai multe...

Bine de știut: prețul unei proprietăți este influențat și de alte caracteristici, cum ar fi: vechime, localizare, vecinătăți, suprafață, compartimentare, amenajări, dotări, etc. mai puțin...

Costuri cu achiziția

Fără credit
7.883 RON
Credit ipotecar
9.611 RON
Noua casă
879 RON+ taxe notariale

i

Costuri adiționale mai puțin știute la achiziție: taxe notariale, comisioane etc.

Proprietăți recomandate

Detalii de contact

Abonează-te la newsletter să fii primul care primește cele mai noi recomandări de proprietăți și sfaturi de la experți.

CONTACT

Creează alertă

Salvează căutarea ca să primești pe email ultimele anunțuri publicate

Apartamente cu 3 camere de vânzare în zona Ostroveni, Râmnicu Vâlcea