Prima ta casa poate fi aceasta – 3 camere + gradina

113.900 €

Sânpetru, Județul Brașov

Nr. cam.:
3
Sup. utilă:
66,2 mp
Etaj:
Parter / 3
An constr.:
2024 (Finalizată)
  • • Comision 0%
  • • Locație exactă

Descriere apartament

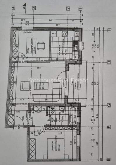
Daca iti doresti o locuinta moderna, intr-o zona linistita, dar nu vrei sa platesti TVA-ul crescut de 21% ca la dezvoltator, acum ai o oportunitate rara: apartament vandut de la persoana fizica, deci fara TVA. Intr-o zona sigura si verde din Sanpetru, aproape de Sala Sporturilor si la doar 10 minute de Mall Coresi, te asteapta un apartament cu 3 camere, pregatit sa devina noul tau camin. Avantaje clare: Fara TVA de 21% – economisesti zeci de mii de lei fata de ofertele noi de la dezvoltatori. 66,2 mp utili, compartimentare practica: dormitor matrimonial, camera pentru copil sau birou, living spatios, baie, bucatarie separata si spatiu de depozitare. Gradina proprie – ideala pentru relaxare, un colt verde sau o mica piscina pentru copil. 2 locuri de parcare -3.500 euro/loc. Bloc tip vila, cu doar cateva familii – liniste, confort si vecini selecti. Parter inalt – acces facil, dar si siguranta sporita. Localizare echilibrata: Acces facil si rapid spre Brasov. Aproape de natura, dar si de tot ce conteaza: magazine, scoli, transport, zone de agrement. Un pret mai bun, fara a renunta la confort sau la calitate. ‍‍ Daca iti doresti sa scapi de chirie si sa investesti inteligent in viitorul tau, acum e momentul potrivit. Suna acum pentru detalii sau o vizionare. Poate fi exact locul pe care il cauti — cu pretul corect, la timpul potrivit: .
Citește mai mult Citește mai puțin
Confort 1 Decomandat Nemobilat 1 Balcon / Terasă / Logie Curte Centrală proprie Încălzire prin pardoseală 2 Parcări

Detalii apartament

ID anunț: X7B1101BO Copiat! 271037114 Copiat!
Actualizat în: 22 Decembrie 2025
Suprafață construită: 79.2 mp
Nr. bucătării: 1
Nr. băi: 1
Structură rezistență: Cărămidă
Tip imobil: Bloc de apartamente
Regim înălțime: P+3E

Utilități

Destinație
Rezidențial
Pereți
Vopsea lavabilă Faianță
Podele
Parchet Gresie
Ușă intrare
Metal
Uși interior
Celulare
Izolații termice
Exterior
Ferestre cu geam termopan
PVC
Contorizare
Apometre Contor gaz
Alte spații utile
Terasă
Facilități imobil
Videointerfon
Utilități
Curent Apă Canalizare Gaze CATV Telefon
Amenajare străzi
Pietruite

Disponibilitate proprietate:

imediat

Puncte de interes

Mijloace transport
airport
Aerodromul Sanpetru-Brasov
Aeroporturi aprox. 1745 m
Recreere
restaurant
Hotel Bielmann
Restaurant aprox. 918 m
sports-ground
Teren sportiv
Terenuri sport aprox. 960 m
park
Loc de joaca
Parcuri aprox. 1067 m
restaurant
Hotel restaurant STOP
Restaurant aprox. 1815 m

Detalii despre preț și costuri

Prețul pe piață

Preț cerut: 113.900 €

Preț min. zonă 98.270 €
Preț max. zonă 169.000 €

55% dintre proprietățile similare ca zonă și nr. camere au prețul cerut mai mare. mai multe...

Bine de știut: prețul unei proprietăți este influențat și de alte caracteristici, cum ar fi: vechime, localizare, vecinătăți, suprafață, compartimentare, amenajări, dotări, etc. mai puțin...

Costuri cu achiziția

Fără credit
6.766 RON
Credit ipotecar
8.362 RON
Noua casă
721 RON+ taxe notariale

i

Costuri adiționale mai puțin știute la achiziție: taxe notariale, comisioane etc.

Proprietăți recomandate

Detalii de contact

Kronhouse Real Estate

Cati Anghel Agent imobiliar

Kronhouse Real Estate
PRO

Abonează-te la newsletter să fii primul care primește cele mai noi recomandări de proprietăți și sfaturi de la experți.

CONTACT

Creează alertă

Salvează căutarea ca să primești pe email ultimele anunțuri publicate

Apartamente noi cu 3 camere de vânzare în Sânpetru, Județul Brașov