Vânzare Apartament Nou 2 Camere Cortina North | Pipera

152.000 €

Aviației, București

Nr. cam.:
2
Sup. utilă:
50 mp
Etaj:
3
Tip prop.:
Bloc de apartamente
  • • Locație aproximativă

Descriere apartament

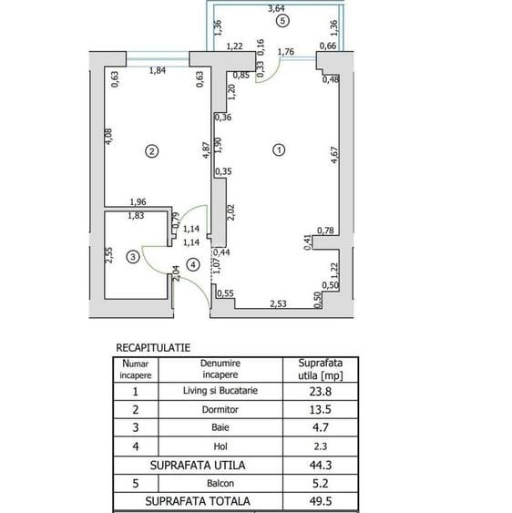
Va propunem spre Vânzare Apartament Nou cu 2 Camere, situat în complexul CORTINA NORTH din PIPERA compartimentare: living spațios bucătărie open-space, dormitor, baie și terasă suprafață totală 50 mp, decomandat, etajul 3, imobil nou finisaje de înaltă calitate! Tâmplărie aluminiu Schuco cu geam tripan, Gresie și faianță Porcelanosa, Parchet triplustratificat de calitate premium, Centrală proprie Ariston Complexul beneficiază de o paleta largă de facilitați: Centru de Fitness/ Wellness, Bazin semiolimpic de înot, pista de alergare, zone comerciale Pret: 153.000€ Echipa noastră de profesioniști vă stă la dispoziție pentru vizionări!
0735.**** Vezi tot numărul
SKY IMOBILIARE
Citește mai mult Citește mai puțin
Confort lux Decomandat Nemobilat Curte

Detalii apartament

ID anunț: XFDM102BG Copiat! 275204978 Copiat!
Actualizat în: 05 Martie 2026
Nr. bucătării: 1
Nr. băi: 1
Structură rezistență: Beton
Nr. terase: 1

Utilități

Contorizare
Apometre Contor căldură Contor gaz
Diverse
Telecomandă poartă acces auto
Alte spații utile
Terasă
Facilități imobil
Lift Spații agrement Videointerfon
Utilități
Curent Apă Canalizare CATV Gaze Telefon
Internet
Cablu Wireless
Servicii imobil
Pază Supraveghere video
Amenajare străzi
Iluminat stradal Mijloace de transport în comun Asfaltate
Comision
standard

Disponibilitate proprietate:

Imediat

Puncte de interes

Mijloace transport
bus-station
Capat C.F.R Constanta linii : 112,135,445
Stații autobuz aprox. 541 m
tram-station
Statia Rocin, linia 16, 36
Stații tramvai aprox. 1133 m
metro-station
Pipera (M2)
Stații metrou aprox. 1235 m
airport
Aeroportul Internațional Băneasa (Aurel Vlaicu) - LRBS (BBU)
Aeroporturi aprox. 1522 m
Școală
kindergarten
Gradinita Zece
Gradinițe aprox. 1422 m
school
Colegiul Tehnic Edmond Nicolau, fostul Electronica
Școli aprox. 1469 m
school
Grupul Scolar Industrial Constantin Brancusi (en)
Școli aprox. 1565 m
kindergarten
Gradinita Miniterra
Gradinițe aprox. 1878 m
Recreere
restaurant
Q's Inn
Restaurant aprox. 753 m
park
spatiu verde
Parcuri aprox. 809 m
supermarket
Pipera Plaza
Supermarket aprox. 1061 m
sports-ground
Teren sportiv
Terenuri sport aprox. 1197 m

Detalii despre preț și costuri

Prețul pe piață

Preț cerut: 152.000 €

Preț min. zonă 139.000 €
Preț max. zonă 265.000 €

74% dintre proprietățile similare ca zonă și nr. camere au prețul cerut mai mare. mai multe...

Bine de știut: prețul unei proprietăți este influențat și de alte caracteristici, cum ar fi: vechime, localizare, vecinătăți, suprafață, compartimentare, amenajări, dotări, etc. mai puțin...

Costuri cu achiziția

Fără credit
8.119 RON
Credit ipotecar
9.877 RON
Noua casă
914 RON+ taxe notariale

i

Costuri adiționale mai puțin știute la achiziție: taxe notariale, comisioane etc.

Proprietăți recomandate

Detalii de contact

SKY Imobiliare

Emilian Paraschiv Agent

SKY Imobiliare
PRO

Abonează-te la newsletter să fii primul care primește cele mai noi recomandări de proprietăți și sfaturi de la experți.

CONTACT

Creează alertă

Salvează căutarea ca să primești pe email ultimele anunțuri publicate

Apartamente cu 2 camere de vânzare în zona Aviației, Sector 1