REA1020060 Apartament 3 camere de vanzare Aviatiei

275.000 € + TVA

Aviației, București

Nr. cam.:
3
Sup. utilă:
117 mp
Etaj:
4 / 5
An constr.:
2024 (În construcție)
  • • Locație aproximativă
  • • Vizionare prin apel video

Descriere apartament

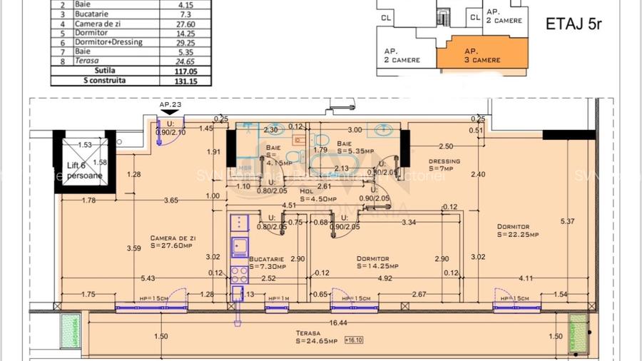
Va propun spre vanzare apartamente de 2, 3, si 4 camere intr-un imobil S+P+4+5R in curs de finalizare pana la sfarsitul anului, situat intr-o zona ravnita din Nordul Capitalei. Imobilul va fi finisat Premium astfel: -Constructie realizata pe cadre de beton -Caramida Porotherm Austria Beton b400 -Centrala propfie Viessman -Tamplarie 7 camere Synego geam tripan -Incalzire in -pardoseala Tecce Germania -Instalatii electrice Gewiss Germania -Glafuri din granit Granit si marmura casa scarii -Video interfon cu Touchscreen -Balcoane din sticla Securizata -Izolatii fatade - Lift Schindler -Usi interioare Pinum Italia Etc Apartamentele se predau la cheie, intr-un buget stabilit. Preturile variaza in functie de plata. Localizarea in cartierul Aviatiei iti ofera acces facil la mijloace de transport in comun, inclusiv statia de metrou Aurel Vlaicu, magazine, farmacii si centrul de afaceri din jurul mall-ului Promenada. Pentru detalii si vizionari, nu ezitati sa ma contactati.
Citește mai mult Citește mai puțin
Confort 1 Semidecomandat Acceptă animale de companie Încălzire prin pardoseală

Detalii apartament

ID anunț: X658004FI Copiat! 274218241 Copiat!
Actualizat în: 02 Martie 2026
Suprafață utilă totală: 134 mp
Suprafață construită: 134 mp
Nr. bucătării: 1
Nr. băi: 1
Structură rezistență: Beton
Tip imobil: Bloc de apartamente
Regim înălțime: P+5E

Utilități

Destinație
Rezidențial
Pereți
Faianță
Podele
Gresie Parchet
Ferestre cu geam termopan
PVC
Facilități imobil
Interfon Lift
Utilități
Gaze CATV Curent
Internet
Wireless
Servicii imobil
Supraveghere video
Comision
Standard

Certificat energetic:

Clasa energetică: A

Vicii:

Fără vicii.

Disponibilitate proprietate:

Disponibil din 02/03/2026.

Puncte de interes

Mijloace transport
tram-station
Apicola
Stații tramvai aprox. 338 m
bus-station
statie Apicola 605, 301, 112
Stații autobuz aprox. 403 m
metro-station
Metrorex. Stația Aurel Vlaicu (M2)(1987)
Stații metrou aprox. 1448 m
airport
Aeroportul Internațional Băneasa (Aurel Vlaicu) - LRBS (BBU)
Aeroporturi aprox. 1600 m
Școală
school
Scoala primara si gimnaziala MEA
Școli aprox. 213 m
school
Grup Scolar Industrial Henri Coanda
Școli aprox. 289 m
kindergarten
Gradinita
Gradinițe aprox. 535 m
university
Școala Superioară de Aviație Civilă - S.S.Av.C.
Universități aprox. 907 m
Recreere
restaurant
EL BACHA Lebanese Restaurant
Restaurant aprox. 306 m
supermarket
Lidl
Supermarket aprox. 361 m
park
Parc
Parcuri aprox. 567 m
sports-ground
Teren sportiv
Terenuri sport aprox. 1062 m

Detalii despre preț și costuri

Prețul pe piață

Preț cerut: 275.000 €

Preț min. zonă 179.500 €
Preț max. zonă 425.000 €

93% dintre proprietățile similare ca zonă și nr. camere au prețul cerut mai mare. mai multe...

Bine de știut: prețul unei proprietăți este influențat și de alte caracteristici, cum ar fi: vechime, localizare, vecinătăți, suprafață, compartimentare, amenajări, dotări, etc. mai puțin...

Costuri cu achiziția

Fără credit
14.323 RON
Credit ipotecar
16.848 RON
Noua casă
1.835 RON+ taxe notariale

i

Costuri adiționale mai puțin știute la achiziție: taxe notariale, comisioane etc.

Proprietăți recomandate

Detalii de contact

SVN Romania | Residentialist | Victoriei

Dan Ghita Associated Advisor

4.00(3 review-uri)

SVN Romania | Residentialist | Victoriei
PRO

Abonează-te la newsletter să fii primul care primește cele mai noi recomandări de proprietăți și sfaturi de la experți.

CONTACT

Creează alertă

Salvează căutarea ca să primești pe email ultimele anunțuri publicate

Apartamente cu 3 camere de vânzare în zona Aviației, Sector 1