Apartament 2 camere Upground

225.000 €

Aviației, București

Nr. cam.:
2
Sup. utilă:
74 mp
Etaj:
6 / 14
An constr.:
2010 (Finalizată)
  • • Locație exactă

Descriere apartament

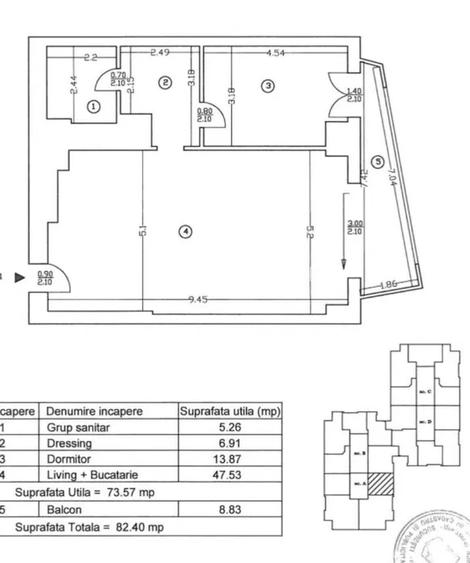
Vă propun spre vânzare un apartament cu 2 camere, situat în complexul rezidențial Upground, ideal pentru un stil de viață modern. Apartamentul este spațios, având o suprafață utilă totală de 82 mp și este compartimentat eficient astfel: living generos cu bucătărie open space în suprafață de 47,5 mp, dormitor confortabil, dressing, baie și balcon. Proprietatea se vinde complet mobilată și utilată, fiind pregătită pentru mutare imediată. Designul interior este modern, iar spațiile sunt bine optimizate pentru confort și funcționalitate. Situat la etajul 6 din 14, apartamentul beneficiază de lumină naturală din abundență și o vedere plăcută. Separat, se poate achiziționa loc de parcare. Complexul Upground oferă acces securizat, pază permanentă și proximitate față de zone de business, restaurante, centre comerciale și mijloace de transport.
Citește mai mult Citește mai puțin
Confort 1 Decomandat Mobilat 1 Balcon / Terasă / Logie Aer condiționat Calorifere Centrală imobil 1 Parcare Bine întreținut (Bună)

Detalii apartament

ID anunț: XEGH1042L Copiat! 275312168 Copiat!
Actualizat în: 21 Martie 2026
Suprafață construită: 100 mp
Nr. bucătării: 1
Nr. băi: 1
Tip imobil: Bloc de apartamente
Regim înălțime: P+14E

Utilități

Pereți
Vopsea lavabilă Faianță
Podele
Parchet Gresie
Ușă intrare
Metal
Uși interior
Lemn
Ferestre cu geam termopan
PVC
Bucătărie
Mobilată Utilată
Electrocasnice
Mașină de spălat Frigider TV Hotă
Alte spații utile
Terasă
Facilități imobil
Interfon Lift Spații agrement
Utilități
Curent Apă Canalizare Gaze
Servicii imobil
Supraveghere video
Amenajare străzi
Asfaltate Iluminat stradal Mijloace de transport în comun

Puncte de interes

Mijloace transport
tram-station
Electronica
Stații tramvai aprox. 277 m
metro-station
Metrorex. Stația Pipera (M2)(1987)
Stații metrou aprox. 278 m
tram-station
Statia Electronica, linia 16,36
Stații tramvai aprox. 305 m
bus-station
Statia Soseaua Fabrica de Glucoza, linia 135, N119
Stații autobuz aprox. 653 m
Școală
school
Colegiul Tehnic Edmond Nicolau, fostul Electronica
Școli aprox. 583 m
school
Grupul Scolar Industrial Constantin Brancusi (en)
Școli aprox. 632 m
kindergarten
Gradinita SOS Satul Copiilor
Gradinițe aprox. 1028 m
university
Facultatea de Constructii Civile
Universități aprox. 1795 m
Recreere
restaurant
Subway Pipera (en)
Restaurant aprox. 4 m
supermarket
Carrefour
Supermarket aprox. 343 m
park
Parc
Parcuri aprox. 361 m
sports-ground
Teren sportiv
Terenuri sport aprox. 773 m

Detalii despre preț și costuri

Prețul pe piață

Preț cerut: 225.000 €

Preț min. zonă 139.000 €
Preț max. zonă 265.000 €

74% dintre proprietățile similare ca zonă și nr. camere au prețul cerut mai mare. mai multe...

Bine de știut: prețul unei proprietăți este influențat și de alte caracteristici, cum ar fi: vechime, localizare, vecinătăți, suprafață, compartimentare, amenajări, dotări, etc. mai puțin...

Costuri cu achiziția

Fără credit
10.626 RON
Credit ipotecar
12.694 RON
Noua casă
1.286 RON+ taxe notariale

i

Costuri adiționale mai puțin știute la achiziție: taxe notariale, comisioane etc.

Proprietăți similare

Apartament cu 3 camere decomandat în Aviației
245.000 €
București, Aviației
3 camere
85 mp
Etaj 2
Apartament cu 2 camere semidecomandat, mobilat în Aviației
230.000 € + TVA
București, Aviației
2 camere
58 mp
Etaj 1
Apartament cu 2 camere decomandat în Aviației
215.000 €
București, Aviației
2 camere
62 mp
Etaj 5

Detalii de contact

Abonează-te la newsletter să fii primul care primește cele mai noi recomandări de proprietăți și sfaturi de la experți.

CONTACT

Creează alertă

Salvează căutarea ca să primești pe email ultimele anunțuri publicate

Apartamente cu 2 camere de vânzare în zona Aviației, Sector 1