3

Apartament luminos cu 3 camere | zona linistita

428.000 €

Aviatorilor, București

Nr. cam.:
3
Sup. utilă:
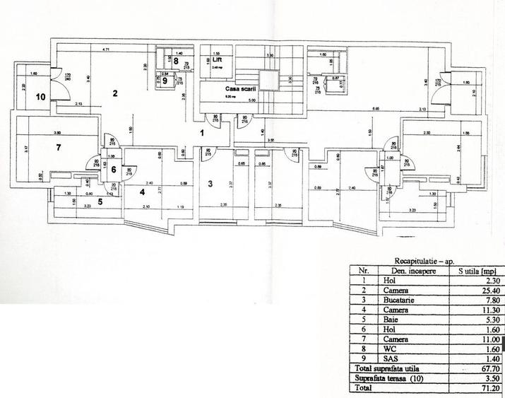
68 mp
Etaj:
3 / 4
An constr.:
2002 (Finalizată)
  • • Locație aproximativă

Descriere apartament

Situat in zona Aviatorilor, in apropriere de Parcul Herastrau si Piata Charles de Gaulle, acest apartament generos cu 3 camere se afla la etajul 3 unui imobil S+P+4. Are o suprafata totala de 90mp si 68p utili. Este compus din living luminos cu zona de dining si iesire pe terasa, bucatarie separat complet echipata si mobilata, grup sanitar, 2 dormitoare care impart o baie. Avand in vedere locatia premium si apropiata de multe puncte de interes si facilitatile oferite, este ideal pentru rezidenta.
Citește mai mult Citește mai puțin
Confort lux Decomandat Mobilat Mobilat 1 Balcon / Terasă / Logie Aeroterme Calorifere Centrală imobil

Detalii apartament

ID anunț: X1UR101LR Copiat! 65840685 Copiat!
Actualizat în: 12 Februarie 2026
Suprafață construită: 90 mp
Nr. bucătării: 1
Nr. băi: 2
Structură rezistență: Beton
Tip imobil: Bloc de apartamente
Regim înălțime: S+P+4E

Utilități

Pereți
Faianță Vopsea lavabilă
Podele
Gresie Parchet
Ușă intrare
Metal
Uși interior
Lemn
Izolații termice
Exterior
Ferestre cu geam termopan
Aluminiu
Contorizare
Apometre Contor căldură Contor gaz
Bucătărie
Mobilată Utilată
Electrocasnice
Aragaz Frigider Hotă Mașină de spălat Mașină spălat vase TV
Facilități imobil
Acoperiș Interfon Lift
Utilități
Curent Apă Canalizare CATV Gaze Telefon
Internet
Cablu Wireless
Servicii imobil
Pază Supraveghere video
Amenajare străzi
Iluminat stradal Mijloace de transport în comun Asfaltate

Disponibilitate proprietate:

Imediat

Puncte de interes

Mijloace transport
bus-station
Statia Arcul de Triumf, linia 131,282,330,331,335,783
Stații autobuz aprox. 130 m
metro-station
Statie metrou Aviatorilor
Stații metrou aprox. 505 m
tram-station
Statie Tramvai 41 - Casin
Stații tramvai aprox. 510 m
trolleybus-station
Statie Cimitirul Sf. Vineri 65, 97, 86
Stații troleibuz aprox. 1813 m
Școală
school
Scoala ambasadei Federatiei Ruse
Școli aprox. 244 m
kindergarten
Gradinita de Copii Nr. 52
Gradinițe aprox. 349 m
school
Gradinita de copii nr.52
Școli aprox. 352 m
university
Universitatea De Stiinte Agronomice Si Medical Veterinare
Universități aprox. 924 m
Recreere
park
Arcul de Triumf
Parcuri aprox. 213 m
sports-ground
Skatepark 1
Terenuri sport aprox. 310 m
supermarket
Mega Image
Supermarket aprox. 675 m
public-square
Piața Aviatorilor
Piețe publice aprox. 836 m

Detalii despre preț și costuri

Prețul pe piață

Preț cerut: 428.000 €

Preț min. zonă 149.000 €
Preț max. zonă 600.000 €

100% dintre proprietățile similare ca zonă și nr. camere au prețul cerut mai mic. mai multe...

Bine de știut: prețul unei proprietăți este influențat și de alte caracteristici, cum ar fi: vechime, localizare, vecinătăți, suprafață, compartimentare, amenajări, dotări, etc. mai puțin...

Costuri cu achiziția

Fără credit
17.590 RON
Credit ipotecar
20.519 RON
Noua casă
2.320 RON+ taxe notariale

i

Costuri adiționale mai puțin știute la achiziție: taxe notariale, comisioane etc.

Proprietăți recomandate

Detalii de contact

GOLDENKEY

Alina Radulescu Senior Consultant

5.00(3 review-uri)

GOLDENKEY
PRO

Abonează-te la newsletter să fii primul care primește cele mai noi recomandări de proprietăți și sfaturi de la experți.

CONTACT

Creează alertă

Salvează căutarea ca să primești pe email ultimele anunțuri publicate

Apartamente cu 3 camere de vânzare în zona Aviatorilor, Sector 1