Apartament 4 camere Aviatorilor | Imobil 2024 | Loc de parcare

685.000 €

Aviatorilor, București

Nr. cam.:
4
Sup. utilă:
125 mp
Etaj:
1 / 3
An constr.:
2024 (Finalizată)
  • • Comision 0%
  • • Exclusivitate
  • • Locație aproximativă

Descriere apartament

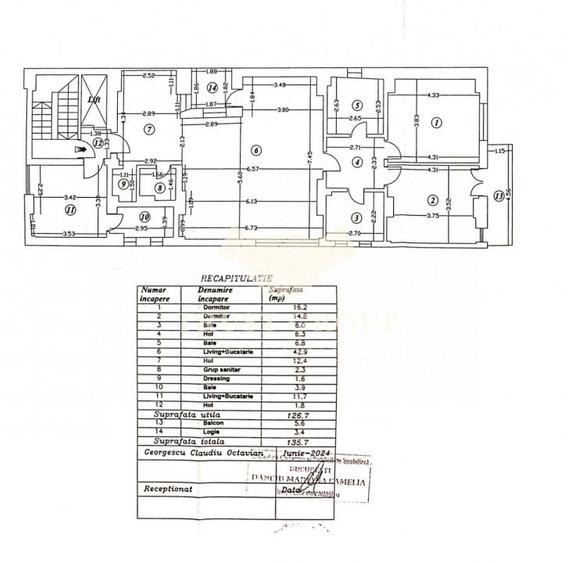
Situat in inima cartierului Aviatorilor, acest apartament luxos se remarca prin rafinament si eleganta. Cu o compartimentare decomandata, ofera un spatiu generos si luminos, perfect pentru confortul dumneavoastra. Cele patru camere, inclusiv livingul open space cu bucataria moderna, si cele trei dormitoare asigura spatiu suficient pentru intreaga familie sau pentru a va primi oaspetii cu stil. Fiecare dormitor este insotit de baia sa proprie, oferind intimitate si comoditate in acelasi timp. Cu o suprafata utila de 127 de metri patrati si un balcon incantator de 8 metri patrati, aveti posibilitatea de a va bucura de privelisti spectaculoase si de a savura momente de relaxare in aer liber. Situat la etajul 1 dintr-un total de 3 etaje, acest apartament ofera o atmosfera linistita si exclusivista, fiind singurul apartament de pe etajul sau, intr-un bloc cu doar trei unitati locative. In plus, beneficiind de un an de constructie recent - 2024, apartamentul se bucura de facilitati moderne si finisaje de cea mai inalta calitate. Blocul este dotat cu terase private pentru fiecare apartament, oferindu-va un spatiu suplimentar pentru relaxare si socializare. Ca locuitor al acestui apartament, veti avea privilegiul de a va numara printre vecinii unei comunitati selecte, ce cuprinde personalitati publice ale Bucurestiului si oameni de afaceri romani si straini. Disponibil imediat, inclusiv prin credit, acest apartament ofera o oportunitate rara de a trai intr-unul dintre cele mai prestigioase cartiere ale Bucurestiului. In plus, beneficiind si de un loc de parcare suprateran, acest apartament indeplineste toate criteriile pentru a deveni locuinta de vis a unei familii sau un punct de reper in portofoliul dumneavoastra imobiliar. Locul de parcare se achizitioneaza separat. Pentru a va convinge singuri de potentialul acestei proprietati, nu ezitati sa ne solicitati o vizionare. Program telefonic 09:00-22:00
Citește mai mult Citește mai puțin
Confort lux Semidecomandat Mobilat Mobilat 2 Balcoane / Terase / Logii Aer condiționat Calorifere Centrală proprie 1 Parcare 1 Parcare / Garaj / Parcare subterană

Detalii apartament

ID anunț: XEK510DNQ Copiat! 275210759 Copiat!
Actualizat în: 06 Martie 2026
Suprafață construită: 150 mp
Nr. bucătării: 1
Nr. băi: 3
Tip imobil: Bloc de apartamente
Regim înălțime: P+3E

Utilități

Destinație
Rezidențial
Pereți
Vopsea lavabilă Var Faianță
Podele
Parchet Gresie Marmură
Ușă intrare
Metal
Uși interior
Lemn
Izolații termice
Interior Bloc izolat termic
Utilități
Curent Apă Canalizare Gaze CATV Telefon
Bucătărie
Mobilată Utilată
Electrocasnice
Mașină de spălat Frigider Mașină spălat vase TV Hotă
Alte spații utile
Terasă WC Serviciu Debara
Facilități imobil
Interfon Lift
Amenajare străzi
Asfaltate Iluminat stradal Mijloace de transport în comun

Disponibilitate proprietate:

imediat

Puncte de interes

Mijloace transport
tram-station
Dr. Constantin Caracas
Stații tramvai aprox. 192 m
bus-station
Bd. Ion Mihalache
Stații autobuz aprox. 203 m
metro-station
Metrou Victoriei - iesire Aviatorilor
Stații metrou aprox. 654 m
trolleybus-station
Statie Soseaua Nicolae Titulescu 65, 97, 86
Stații troleibuz aprox. 772 m
Școală
school
Gradinita Little London
Școli aprox. 79 m
kindergarten
Gradinita nr. 248
Gradinițe aprox. 143 m
school
Scoala Generala Nr.3 "Nicolae Titulescu"
Școli aprox. 208 m
university
Universitatea Politehnica Bucuresti
Universități aprox. 657 m
Recreere
supermarket
Mega Image
Supermarket aprox. 271 m
park
Parc
Parcuri aprox. 355 m
mall
"METROPLIS CENTER"
Mall aprox. 1530 m
hypermarket
Intrarea in caminele C si D din grozavesti
Hipermarket aprox. 1643 m

Detalii despre preț și costuri

Prețul pe piață

Preț cerut: 685.000 €

Preț min. zonă 169.000 €
Preț max. zonă 779.990 €

100% dintre proprietățile similare ca zonă și nr. camere au prețul cerut mai mic. mai multe...

Bine de știut: prețul unei proprietăți este influențat și de alte caracteristici, cum ar fi: vechime, localizare, vecinătăți, suprafață, compartimentare, amenajări, dotări, etc. mai puțin...

Costuri cu achiziția

Fără credit
26.408 RON
Credit ipotecar
30.427 RON
Noua casă
3.629 RON+ taxe notariale

i

Costuri adiționale mai puțin știute la achiziție: taxe notariale, comisioane etc.

Proprietăți similare

Apartament cu 4 camere nedecomandat, mobilat în Aviatorilor
750.000 € + TVA
București, Aviatorilor
4 camere
137 mp
Etaj 2 / 4
Apartament cu 3 camere decomandat, mobilat în Aviatorilor
650.000 € + TVA
București, Aviatorilor
3 camere
135 mp
Parter / 5
Apartament cu 4 camere decomandat în Aviatorilor
750.000 € + TVA
București, Aviatorilor
4 camere
111,3 mp
Etaj 2 / 4

Detalii de contact

TRUST GROUP REAL ESTATE

Gabriel Maris Founder REALTOR

4.88(18 review-uri)

TRUST GROUP REAL ESTATE
PRO

Abonează-te la newsletter să fii primul care primește cele mai noi recomandări de proprietăți și sfaturi de la experți.

CONTACT

Creează alertă

Salvează căutarea ca să primești pe email ultimele anunțuri publicate

Apartamente noi cu 4+ camere de vânzare în zona Aviatorilor, Sector 1