OPORTUNITATE | 3 CAMERE | DECOMANDAT | LOC DE PARCARE | 2025

184.500 € + TVA

Băneasa, București

Nr. cam.:
3
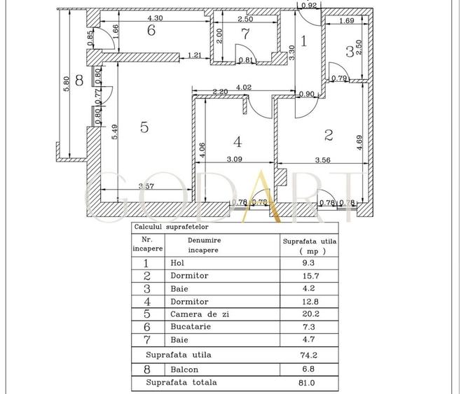
Sup. utilă:
74,2 mp
Etaj:
2 / 4
An constr.:
2025 (Finalizată)
  • • Exclusivitate
  • • Locație aproximativă

Descriere apartament

Acest apartament modern de 3 camere, situat într-un bloc nou finalizat în 2025, la etajul 2 al unei clădiri cu regim de înălțime P+4, oferă o suprafață utilă de 74,2 mp, la care se adaugă un balcon spațios de 6,8 mp, ajungând la o suprafață totală de 81 mp. Proiectat pentru confort și funcționalitate, spațiul se remarcă prin compartimentarea decomandată, luminozitatea naturală și atenția acordată fiecărui detaliu. Apartamentul este dotat cu centrală termică proprie și încălzire prin pardoseală, asigurând un confort termic ridicat și eficiență energetică pe tot parcursul anului. Ansamblul rezidențial este amplasat în Sectorul 1, în zona de nord a Capitalei, într-un cadru aerisit, cu multă verdeață, dar în același timp bine conectat la tot ceea ce înseamnă infrastructură urbană modernă. În apropiere se regăsesc toate facilitățile necesare unui stil de viață echilibrat: supermarketuri precum Mega Image și Lidl, magazinul Elvila, Spitalul Medicover, precum și diverse servicii și puncte de interes. Clădirea este modernă și bine echipată, beneficiaza de lift, element esențial pentru confortul de zi cu zi. Apartamentele se predau finisate, cu pereți drepți aduși la nivelul final de glet și primul strat de lavabil, balcoane placate cu plăci ceramice și balustrade elegante din sticlă securizată. Ușa metalică de la intrare subliniază nivelul de siguranță și calitate oferit. Întregul proiect este conceput cu grijă pentru durabilitate, eficiență și confort, punând accent pe materiale premium și o execuție atentă. În completarea locuinței, există posibilitatea achiziționării unui loc de parcare, disponibil separat la prețul de 10.000 euro + TVA, oferind un plus de comoditate și siguranță. Gândit pentru viitorul tău și al familiei tale, acest apartament îți oferă liniște, lumină și un spațiu primitor într-un ansamblu modern, potrivit atât pentru locuire, cât și pentru o investiție sigură într-o zonă aflată în plină dezvoltare.
Citește mai mult Citește mai puțin
Confort lux Decomandat Nemobilat 1 Balcon / Terasă / Logie Centrală proprie Încălzire prin pardoseală 1 Parcare

Detalii apartament

ID anunț: XG3S1007R Copiat! 275291441 Copiat!
Actualizat în: 16 Martie 2026
Nr. bucătării: 1
Nr. băi: 2
Structură rezistență: Beton
Tip imobil: Bloc de apartamente
Regim înălțime: P+4E

Utilități

Pereți
Faianță Vopsea lavabilă
Podele
Gresie Parchet
Ușă intrare
Metal
Ferestre cu geam termopan
PVC
Contorizare
Apometre Contor gaz
Diverse
Telecomandă poartă acces auto
Alte spații utile
WC Serviciu
Facilități imobil
Acoperiș Lift Videointerfon
Utilități
Curent Apă Canalizare CATV Gaze Telefon
Internet
Cablu
Servicii imobil
Supraveghere video
Amenajare străzi
Iluminat stradal Mijloace de transport în comun Asfaltate
Comision
standard

Disponibilitate proprietate:

Imediat

Puncte de interes

Mijloace transport
tram-station
Drumul Nisipoasa
Stații tramvai aprox. 442 m
bus-station
statie Apicola 605, 301, 112
Stații autobuz aprox. 840 m
airport
Aeroportul Internațional Băneasa (Aurel Vlaicu) - LRBS (BBU)
Aeroporturi aprox. 866 m
metro-station
Metrorex. Stația Aurel Vlaicu (M2)(1987)
Stații metrou aprox. 1891 m
Școală
school
Grupul Școlar de Aeronautică "Henri Coandă".
Școli aprox. 354 m
school
Parc avioane Grup Scolar de Aeronautica "H. Coanda"
Școli aprox. 385 m
kindergarten
Gradinita
Gradinițe aprox. 1022 m
university
Școala Superioară de Aviație Civilă - S.S.Av.C.
Universități aprox. 1178 m
Recreere
supermarket
Lidl
Supermarket aprox. 904 m
park
Parc
Parcuri aprox. 1164 m
mall
Baneasa Shopping Center
Mall aprox. 1605 m
sports-ground
Teren sportiv
Terenuri sport aprox. 1609 m

Detalii despre preț și costuri

Prețul pe piață

Preț cerut: 184.500 €

Preț min. zonă 155.000 €
Preț max. zonă 420.000 €

71% dintre proprietățile similare ca zonă și nr. camere au prețul cerut mai mare. mai multe...

Bine de știut: prețul unei proprietăți este influențat și de alte caracteristici, cum ar fi: vechime, localizare, vecinătăți, suprafață, compartimentare, amenajări, dotări, etc. mai puțin...

Costuri cu achiziția

Fără credit
10.565 RON
Credit ipotecar
12.625 RON
Noua casă
1.277 RON+ taxe notariale

i

Costuri adiționale mai puțin știute la achiziție: taxe notariale, comisioane etc.

Proprietăți similare

Apartament cu 2 camere semidecomandat, mobilat în Băneasa
199.500 €
București, Băneasa
2 camere
55 mp
Etaj 6
Apartament cu 2 camere decomandat în Băneasa
179.000 € + TVA
București, Băneasa
2 camere
58,1 mp
Etaj 2 / 6
Apartament cu 3 camere decomandat, mobilat în Băneasa
197.500 €
București, Băneasa
3 camere
64 mp
Etaj 10 / 11

Detalii de contact

GODART

Alexandra T

GODART
PRO

Abonează-te la newsletter să fii primul care primește cele mai noi recomandări de proprietăți și sfaturi de la experți.

CONTACT

Creează alertă

Salvează căutarea ca să primești pe email ultimele anunțuri publicate

Apartamente noi cu 3 camere de vânzare în zona Băneasa, Sector 1