Apartament 4 camere 83mp + 63mp curte | 0 comision | Sisesti

385.000 €

Băneasa, București

Nr. cam.:
4
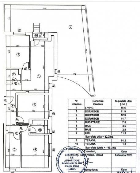
Sup. utilă:
83 mp
Sup. teren:
63 mp
Etaj:
Parter
  • • Comision 0%
  • • Locație exactă

Descriere apartament

0 Comision. Va oferim pentru achizitie fara comision un apartament de 4 camere de 83mp plus 63mp curtea localizat in Bucuresti, pe Soseaua Sisesti intr-un bloc finalizat in 2020. Apartamentul se vinde complet mobilat, partial utilat impreuna cu 2 locuri de parcare in subteran. Asa cum v-am obisnuit: - toate ofertele Monga Imobiliare sunt fara comision din partea cumparatorului - pentru ca iubim transparenta, toate preturile afisate de Monga Imobiliare includ TVA (daca se aplica). Pretul afisat de noi este intotdeauna pretul final pe care il vei achita. Acceseaza Monga Imobiliare (Monga RO) pentru mai mai multe poze si pentru intreg portofoliul nostru de case si apartamente din Otopeni, Tunari, Balotesti, Corbeanca, Pipera si nordul Bucurestiului. Punctul forte al acestui apartament il reprezinta locatia lintr-o zona premium din nordul capitalei. Se vinde mobilat si partial utilat ceea ce permite a fi utilizat imediat cu investitii minime. Despre spatiu Accesul se face intr-un hol ce comunica cu bucataria, un dormitor matrimonial cu baie proprie, inca doua dormitoare, o baie si zona de living. Din living se acceseaza curtea. Se vinde finisat si mobilat impreuna cu o parte din electrocasnice. Utilitati: - blocul este conectat la toate utilitatile. - centrala proprie Alte detalii: - constructie solida din beton armat - mobilat si partial utilat - 2 locuri de parcare in subteran Despre locatie: - in aprpiere avem zone comerciale, restaurante, transport in comun. Apeleaza cu incredere la Monga Imobiliare. Suntem alaturi de tine pana la finalizarea tranzactiei si te ajutam sa treci cu incredere si in cunostinta de cauza prin toti pasii necesari. Te putem ajuta in pregatirea documentelor, selectia notarului, obtinerea finantarii, si altele. Te asteptam sa ne contactezi..
Citește mai mult Citește mai puțin
Mobilat Calorifere Centrală proprie 2 Parcări Bine întreținut (Bună)

Detalii apartament

ID anunț: XFHP1005V Copiat! 275279664 Copiat!
Actualizat în: 14 Martie 2026
Nr. bucătării: 1
Nr. băi: 2
An construcție: 2020
Tip imobil: Bloc de apartamente
Nr. terase: 1

Utilități

Podele
Parchet Gresie
Bucătărie
Mobilată Parțial utilată
Utilități
Curent Apă Canalizare Gaze
Amenajare străzi
Asfaltate
Comision
0%

Puncte de interes

Mijloace transport
bus-station
Statia Drumul Regimentului linii : 205
Stații autobuz aprox. 101 m
bus-station
Statia Darmanesti, linia 205
Stații autobuz aprox. 382 m
tram-station
Statie Cartier Damaroaia Tv24
Stații tramvai aprox. 1634 m
metro-station
Laminorului (M4)
Stații metrou aprox. 1725 m
Școală
school
International School for Primary Education, Bucharest (en)
Școli aprox. 820 m
school
Scoala Generala Nr. 8
Școli aprox. 883 m
university
Universitatea Bioterra
Universități aprox. 1009 m
kindergarten
Gradinita Ursuletu
Gradinițe aprox. 1757 m
Recreere
restaurant
Vatra Noua
Restaurant aprox. 589 m
park
Parc
Parcuri aprox. 774 m
sports-ground
Teren sportiv
Terenuri sport aprox. 885 m
supermarket
CRIS-TIM
Supermarket aprox. 1744 m

Detalii despre preț și costuri

Prețul pe piață

Preț cerut: 385.000 €

Preț min. zonă 171.000 €
Preț max. zonă 560.000 €

100% dintre proprietățile similare ca zonă și nr. camere au prețul cerut mai mic. mai multe...

Bine de știut: prețul unei proprietăți este influențat și de alte caracteristici, cum ar fi: vechime, localizare, vecinătăți, suprafață, compartimentare, amenajări, dotări, etc. mai puțin...

Costuri cu achiziția

Fără credit
16.116 RON
Credit ipotecar
18.863 RON
Noua casă
2.101 RON+ taxe notariale

i

Costuri adiționale mai puțin știute la achiziție: taxe notariale, comisioane etc.

Proprietăți similare

Apartament cu 3 camere decomandat, mobilat în Băneasa
350.000 €
București, Băneasa
3 camere
90,75 mp
Parter / 5
Apartament cu 4 camere decomandat în Băneasa
348.000 €
București, Băneasa
4 camere
119 mp
Parter / 8
Apartament cu 3 camere decomandat, mobilat în Băneasa
350.000 €
București, Băneasa
3 camere
91 mp
Parter

Detalii de contact

MONGA

Razvan Daniel Ceapa

MONGA
PRO

Abonează-te la newsletter să fii primul care primește cele mai noi recomandări de proprietăți și sfaturi de la experți.

CONTACT

Creează alertă

Salvează căutarea ca să primești pe email ultimele anunțuri publicate

Apartamente cu 4+ camere de vânzare în zona Băneasa, Sector 1