6

Comision 0/Ap.3 camere/Curte proprie

265.900 €

Bucureștii Noi, București

Nr. cam.:
3
Sup. utilă:
85 mp
Etaj:
Parter / 2
An constr.:
2023 (Finalizată)
  • • Locație exactă

Descriere apartament

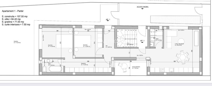
Vă propunem spre vânzare apartament cu trei camere, decomandat 85 mp utili cu o curte generoasă de 78 mp dispusă pe două laturi în imediata vecinătate a Parcului Bazilescu.(str Miercani26) Blocul este situat într-o zonă liniștită de case, la doar cinci minute de mijloacele de transport în comun, metrou autobuz,troleibuz și este realizat pe structură de grinzi de beton armat și pereți de cărămidă Porotherm. Bloc cu regim redus de înălțime P+2, cu doar trei unități locative Compartimentarea cât și suprafețele le regăsiți anexate la fotografiile de prezentare. Loc de parcare inclus în incinta imobilului. Pentru informații detaliate și vizionari vă stăm la dispoziție.
Citește mai mult Citește mai puțin
Confort 1 Decomandat 1 Balcon / Terasă / Logie Grădină Curte Centrală proprie Încălzire prin pardoseală 1 Parcare Renovat

Detalii apartament

ID anunț: XD1O0001L Copiat! 274600327 Copiat!
Actualizat în: 28 Ianuarie 2026
Suprafață utilă totală: 156 mp
Nr. bucătării: 1
Nr. băi: 2
Structură rezistență: Beton
Tip imobil: Bloc de apartamente
Regim înălțime: P+2E

Utilități

Destinație
Rezidențial
Pereți
Vopsea lavabilă Faianță
Podele
Gresie Parchet
Ușă intrare
Metal
Uși interior
Celulare
Izolații termice
Exterior Interior
Ferestre cu geam termopan
PVC
Contorizare
Contor gaz Apometre Contor căldură
Alte spații utile
Terasă
Facilități imobil
Interfon
Utilități
Gaze Telefon Curent Canalizare Apă
Internet
Fibră optică Cablu
Amenajare străzi
Asfaltate

Certificat energetic:

Clasa energetică: A

Puncte de interes

Mijloace transport
metro-station
Laminorului (M4)
Stații metrou aprox. 612 m
bus-station
Statia Laromet, linia 97,N117, 304
Stații autobuz aprox. 624 m
tram-station
Laromet
Stații tramvai aprox. 663 m
metro-station
Acces stația Parc Bazilescu (M4)
Stații metrou aprox. 1072 m
Școală
kindergarten
Gradinita Ursuletu
Gradinițe aprox. 766 m
school
Scoala numarul 179 clasele I-VIII
Școli aprox. 840 m
kindergarten
Gradinita de copii nr.47
Gradinițe aprox. 843 m
university
Universitatea Biotera
Universități aprox. 1858 m
Recreere
sports-ground
Teren sportiv
Terenuri sport aprox. 209 m
park
Parc
Parcuri aprox. 362 m
cafe
Cafe Bar
Cafenea aprox. 608 m
supermarket
CRIS-TIM
Supermarket aprox. 621 m

Detalii despre preț și costuri

Prețul pe piață

Preț cerut: 265.900 €

Preț min. zonă 109.500 €
Preț max. zonă 299.000 €

84% dintre proprietățile similare ca zonă și nr. camere au prețul cerut mai mic. mai multe...

Bine de știut: prețul unei proprietăți este influențat și de alte caracteristici, cum ar fi: vechime, localizare, vecinătăți, suprafață, compartimentare, amenajări, dotări, etc. mai puțin...

Costuri cu achiziția

Fără credit
12.029 RON
Credit ipotecar
14.270 RON
Noua casă
1.495 RON+ taxe notariale

i

Costuri adiționale mai puțin știute la achiziție: taxe notariale, comisioane etc.

Proprietăți recomandate

Detalii de contact

Abonează-te la newsletter să fii primul care primește cele mai noi recomandări de proprietăți și sfaturi de la experți.

CONTACT

Creează alertă

Salvează căutarea ca să primești pe email ultimele anunțuri publicate

Apartamente noi cu 3 camere de vânzare în zona Bucureștii Noi, Sector 1