Apartament 3 camere si Balcon 8,10mpI Lux I Parcul Verdi-FloreascaI

520.000 € + TVA

Floreasca, București

Nr. cam.:
3
Sup. utilă:
100,1 mp
Etaj:
5 / 8
An constr.:
2020 (Finalizată)
  • • Locație aproximativă

Descriere apartament

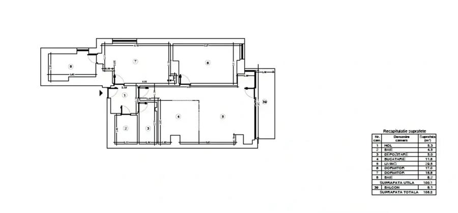
Opțiune foarte atrăgătoare pentru clientii care caută un stil de viață rafinat în București. Arhitectura impresionantă și finisajele de calitate ale imobilului contribuie la crearea unui ambient plăcut și confortabil. Apartamentul cu trei camere, decomandat, și bucătărie open space, are o suprafață utilă totală de 108,20 mp, din care balcon de 8,10 mp oferă un avantaj considerabil. Această dimensiune generoasă permite o amenajare confortabilă și practică în interior, dar și crearea unui spațiu exterior plăcut. Balconul devine astfel un loc perfect pentru a savura o cafea dimineața sau pentru a te bucura de aerul liber. De asemenea, designul decomandat asigură intimitate în fiecare cameră, ceea ce este esențial pentru un stil de viață modern și confortabil. Dormitorul matrimonial cu baie proprie adaugă un plus de confort și intimitate apartamentului. Astfel, acest tip de amenajare favorizează un sentiment de lux și intimitate, fiind perfect pentru cupluri sau pentru cei care doresc să aibă un refugiu personal în cadrul propriului cămin. Acest apartament este o alegere excelentă pentru cupluri cât și pentru familii cu, copii care apreciază confortul și funcționalitatea. Finisaje interioare : - Tamplarie Aluminiu - Brand Alumil - Ceramica - Marazzi - Parchet - Bauwerk triplu stratificat - Grupuri sanitare - Villeroy & Boch, Grohe, Savini - Centrala termica de bloc & incalzire pardoseala - Vaillant, TECE - Aer Conditionat - LG VR-F - Usi interior - Dierre tip Filopanelo cu inchidere magnetica Fatada: Fatada executata combinat : fatada ventilata din EQUITONE (izolatie din vata minerala) respectiv FORMICA (izolatie din vata minerala) si termosistem finisat BAUMIT. Ansamblul rezidential se bucură de o localizare privilegiată în zona Floreasca, una dintre cele mai căutate și vibrante cartiere din București. Această zonă este recunoscută pentru combinația sa de facilități moderne, spații verzi generoase și acces facil la diverse opțiuni de transport. Pret apartament : 520000 euro + tva LOCURI DE PARCARE: - Loc de parcare individual: 24.000 Euro +TVA - Loc de parcare Sistem Klaus (2 locuri de parcare) : 30.000 Euro + TVA. Pentru vizionare si detalii suplimentare va stam la dispozitie cu placere! Oana Sipoteanu VAUNT ID: 111023
Citește mai mult Citește mai puțin
Confort 1 Decomandat 1 Balcon / Terasă / Logie Centrală imobil Încălzire prin pardoseală

Detalii apartament

ID anunț: X7QH201LF Copiat! 275255693 Copiat!
Actualizat în: 11 Martie 2026
Suprafață utilă totală: 100.1 mp
Nr. bucătării: 1
Nr. băi: 2
Structură rezistență: Beton
Tip imobil: Bloc de apartamente
Regim înălțime: S+P+8E

Utilități

Destinație
Rezidențial
Pereți
Vopsea lavabilă Faianță
Podele
Gresie
Ușă intrare
Parchet Metal
Izolații termice
Exterior
Ferestre cu geam termopan
Aluminiu Lemn
Contorizare
Apometre Contor căldură Contor gaz
Facilități imobil
Interfon Lift
Utilități
Gaze Curent Apă Canalizare
Internet
Fibră optică
Servicii imobil
Pază Supraveghere video
Amenajare străzi
Iluminat stradal Mijloace de transport în comun Asfaltate

Certificat energetic:

Clasa energetică: A

Puncte de interes

Mijloace transport
bus-station
Statia Ancuta Baneasa, linia 135, N119
Stații autobuz aprox. 176 m
tram-station
Giuseppe Verdi
Stații tramvai aprox. 347 m
bus-station
Statia Calea Floreasca / Ceaikovski / Mircea Eliade, linia 135, 182, 282, N119, N123
Stații autobuz aprox. 419 m
metro-station
Aurel Vlaicu (M2)
Stații metrou aprox. 1242 m
Școală
school
LICEUL TEORETIC "C.A. ROSETTI"
Școli aprox. 105 m
school
Liceul C.A. Rosetti
Școli aprox. 105 m
kindergarten
Gradinita nr. 12 Albinuta
Gradinițe aprox. 508 m
university
Athenaeum University (en)
Universități aprox. 794 m
Recreere
park
Parcul Verdi
Parcuri aprox. 252 m
sports-ground
Teren sportiv
Terenuri sport aprox. 533 m
supermarket
BILLA - B. Vacarescu
Supermarket aprox. 592 m
mall
"METROPLIS CENTER"
Mall aprox. 1909 m

Detalii despre preț și costuri

Prețul pe piață

Preț cerut: 520.000 €

Preț min. zonă 142.000 €
Preț max. zonă 530.000 €

99% dintre proprietățile similare ca zonă și nr. camere au prețul cerut mai mic. mai multe...

Bine de știut: prețul unei proprietăți este influențat și de alte caracteristici, cum ar fi: vechime, localizare, vecinătăți, suprafață, compartimentare, amenajări, dotări, etc. mai puțin...

Costuri cu achiziția

Fără credit
24.502 RON
Credit ipotecar
28.286 RON
Noua casă
3.346 RON+ taxe notariale

i

Costuri adiționale mai puțin știute la achiziție: taxe notariale, comisioane etc.

Proprietăți similare

Apartament cu 4 camere semidecomandat în Floreasca
490.000 € + TVA
București, Floreasca
4 camere
108,97 mp
Etaj 17 / 21
Apartament cu 3 camere decomandat, mobilat în Floreasca
548.000 € + TVA
București, Floreasca
3 camere
85 mp
Etaj 11
Apartament cu 3 camere decomandat, mobilat în Floreasca
489.999 € + TVA
București, Floreasca
3 camere
96 mp
Etaj 6 / 12

Detalii de contact

R&D ADVISERS

Oana Sipoteanu Project Manager

4.33(9 review-uri)

R&D ADVISERS
PRO

Abonează-te la newsletter să fii primul care primește cele mai noi recomandări de proprietăți și sfaturi de la experți.

CONTACT

Creează alertă

Salvează căutarea ca să primești pe email ultimele anunțuri publicate

Apartamente cu 3 camere de vânzare în zona Floreasca, Sector 1