Apartament spectaculos complet mobilat. Parcare și boxă incluse.

455.000 € + TVA

Floreasca, București

Nr. cam.:
3
Sup. utilă:
92,1 mp
Etaj:
6 / 12
An constr.:
2025 (Finalizată)
  • • Locație exactă

Descriere apartament

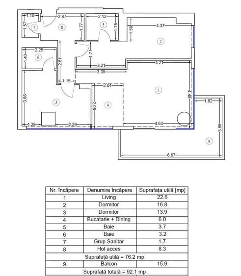
Descoperă un apartament excepțional situat în UP-Site Floreasca, cel mai exclusivist proiect rezidențial din nordul Capitalei, dezvoltat de Atenor. Poziționat la etajul 6, apartamentul oferă o vedere panoramică spectaculoasă către zona de vile și spațiile verzi din jur, într-un cadru modern și elegant. Proiectul UP-Site, cu fațade din sticlă integrală, design arhitectural contemporan și dotări premium, redefinește standardele de locuire urbană. Apartamentul are o suprafață utilă de 76 mp, completată de o terasă de aproximativ 16 mp. Un spațiu generos și luminos, perfect pentru relaxare sau pentru seri în aer liber cu priveliști deschise. Interiorul este organizat inteligent, cu living amplu și zonă de dining, bucătărie deschisă, două dormitoare, două băi și un grup sanitar. Spațiile sunt finisate cu materiale de înaltă calitate, beneficiind de tavane înalte, vitraje ample și un sentiment autentic de confort și rafinament. Proprietatea include un loc de parcare subteran și o boxă de depozitare, ambele incluse în preț. Imobilul este finalizat, locuit și recunoscut pentru calitatea construcției, tehnologia smart-home integrată și serviciile moderne disponibile rezidenților. Situat în imediata apropiere a zonelor de birouri, parcuri, restaurante și centre comerciale, acest apartament reprezintă o alegere ideală atât pentru locuire, cât și pentru investiție. Este mai mult decât un apartament — este o adresă de prestigiu, o expresie a unui stil de viață rafinat, în cel mai căutat proiect al momentului din Floreasca: UP-Site.
Citește mai mult Citește mai puțin
Lux 1 Parcare 1 Garaj

Detalii apartament

ID anunț: X14D102JK Copiat! 275275762 Copiat!
Actualizat în: 13 Martie 2026
Nr. bucătării: 1
Nr. băi: 3
Tip imobil: Bloc de apartamente
Regim înălțime: S+P+12E
Nr. terase: 1

Utilități

Bucătărie
Mobilată Utilată
Alte spații utile
Terasă
Utilități
Curent Apă Canalizare CATV Gaze Telefon
Internet
Cablu
Amenajare străzi
Iluminat stradal Mijloace de transport în comun Asfaltate
Comision
standard

Vecinătăți:

Mall Promenada

Disponibilitate proprietate:

Imediat

Puncte de interes

Mijloace transport
bus-station
Statia Soseaua Fabrica de Glucoza, linia 135, N119
Stații autobuz aprox. 88 m
tram-station
Muzeul Aviatiei
Stații tramvai aprox. 322 m
bus-station
Statia Soseaua Fabrica de Glucoza, linia 135, N119
Stații autobuz aprox. 353 m
metro-station
Aurel Vlaicu (M2)
Stații metrou aprox. 418 m
Școală
kindergarten
Gradinita SOS Satul Copiilor
Gradinițe aprox. 134 m
school
Grupul Scolar Industrial Constantin Brancusi (en)
Școli aprox. 441 m
kindergarten
Gradinita Miniterra
Gradinițe aprox. 920 m
university
Universitatea Atenaeum
Universități aprox. 1629 m
Recreere
cafe
Spazi Caffe Promenada
Cafenea aprox. 167 m
sports-ground
Teren sportiv
Terenuri sport aprox. 202 m
supermarket
Promenada
Supermarket aprox. 245 m
park
Cimitirul Eroilor Rusi
Parcuri aprox. 547 m

Detalii despre preț și costuri

Prețul pe piață

Preț cerut: 455.000 €

Preț min. zonă 142.000 €
Preț max. zonă 530.000 €

97% dintre proprietățile similare ca zonă și nr. camere au prețul cerut mai mic. mai multe...

Bine de știut: prețul unei proprietăți este influențat și de alte caracteristici, cum ar fi: vechime, localizare, vecinătăți, suprafață, compartimentare, amenajări, dotări, etc. mai puțin...

Costuri cu achiziția

Fără credit
21.797 RON
Credit ipotecar
25.246 RON
Noua casă
2.945 RON+ taxe notariale

i

Costuri adiționale mai puțin știute la achiziție: taxe notariale, comisioane etc.

Proprietăți similare

Apartament cu 3 camere decomandat în Floreasca
438.654 € + TVA
București, Floreasca
3 camere
92 mp
Etaj 13 / 25
Apartament cu 3 camere decomandat, mobilat în Floreasca
490.000 € + TVA
București, Floreasca
3 camere
74 mp
Etaj 6 / 9
Apartament cu 3 camere decomandat, mobilat în Floreasca
425.000 €
București, Floreasca
3 camere
76 mp
Etaj 9 / 11

Detalii de contact

Abonează-te la newsletter să fii primul care primește cele mai noi recomandări de proprietăți și sfaturi de la experți.

CONTACT

Creează alertă

Salvează căutarea ca să primești pe email ultimele anunțuri publicate

Apartamente noi cu 3 camere de vânzare în zona Floreasca, Sector 1