4

APARTAMENT LUX | HERASTRAU - CARTIERUL FRANCEZ | 2 LOCURI PARCARE

485.000 €

Herăstrău, București

Nr. cam.:
3
Sup. utilă:
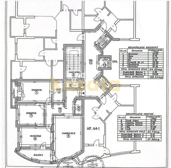
114 mp
Etaj:
4 / 6
An constr.:
2010 (Finalizată)
  • • Exclusivitate
  • • Locație aproximativă

Descriere apartament

Vă prezentăm un apartament exclusivist cu 3 camere, situat în prestigiosul Cartier Francez, Herăstrău, ce redefinește confortul și rafinamentul urban. Cu un design modern, finisaje premium și facilități de top, această proprietate este perfectă pentru cei care apreciază luxul și siguranța. Detalii proprietate: Suprafață utilă: 114 mp Balcoane: 2 balcoane spațioase (suprafață totală 15 mp) Locuri de parcare: 2 locuri mari în parcarea subterană Depozitare: 1 boxă inclusă în preț Caracteristici și dotări: Finisaje de lux: Materiale de înaltă calitate, design modern și detalii rafinate Mobilat și utilat complet: Mobilier premium și electrocasnice de ultimă generație Centrala proprie: Eficiență energetică și confort termic optim Acces securizat: Imobil dotat cu sistem de recunoaștere facială pentru intrare Bloc cu pază și recepție: Asigură un mediu sigur și exclusivist pentru rezidenți Avantaje: Localizare de excepție: În inima Cartierului Francez, la câțiva pași de Parcul Herăstrău Facilități incluse: Locuri de parcare generoase și boxă pentru depozitare Siguranță și confort: Bloc modern, cu servicii premium și tehnologie de acces avansată Ideal pentru locuire sau investiție: O proprietate unică într-una dintre cele mai căutate zone din București Această proprietate oferă nu doar un stil de viață exclusivist, ci și liniștea și siguranța de care aveți nevoie. Pentru mai multe detalii sau pentru a programa o vizionare, vă rugăm să ne contactați!
Citește mai mult Citește mai puțin
Confort lux Decomandat 2 Balcoane / Terase / Logii Curte comună Aer condiționat Calorifere Centrală proprie

Detalii apartament

ID anunț: XDEJ1030E Copiat! 268404507 Copiat!
Actualizat în: 12 Ianuarie 2026
Nr. bucătării: 1
Nr. băi: 2
Structură rezistență: Beton
Tip imobil: Bloc de apartamente
Regim înălțime: P+6E

Utilități

Destinație
Rezidențial
Pereți
Faianță Vopsea lavabilă
Podele
Gresie Parchet
Ușă intrare
Metal
Uși interior
Celulare
Izolații termice
Exterior
Ferestre cu geam termopan
PVC
Contorizare
Apometre Contor gaz
Bucătărie
Mobilată Utilată
Electrocasnice
Aragaz Frigider Hotă Mașină de spălat Mașină spălat vase TV
Facilități imobil
Interfon Lift Videointerfon
Utilități
Curent Apă Canalizare CATV Gaze Telefon
Internet
Cablu
Servicii imobil
Supraveghere video
Amenajare străzi
Iluminat stradal Mijloace de transport în comun Asfaltate Betonate
Comision
3%

Disponibilitate proprietate:

Imediat

Puncte de interes

Mijloace transport
bus-station
Carutasilor / Pasajul Aviatiei statie 301, 112
Stații autobuz aprox. 234 m
bus-station
Pasaj Baneasa statie 605, 5
Stații autobuz aprox. 451 m
tram-station
Maguricea
Stații tramvai aprox. 563 m
metro-station
Metrorex. Stația Aurel Vlaicu (M2)(1987)
Stații metrou aprox. 1000 m
Școală
kindergarten
Grădinița Mary Poppins
Gradinițe aprox. 75 m
kindergarten
Grădinița Pentru Hipoacuzici NR. 65
Gradinițe aprox. 517 m
school
Scoala generala nr.12
Școli aprox. 714 m
university
Școala Superioară de Aviație Civilă - S.S.Av.C.
Universități aprox. 1389 m
Recreere
park
Parc
Parcuri aprox. 147 m
supermarket
ART Business Center 5
Supermarket aprox. 260 m
sports-ground
Teren sportiv
Terenuri sport aprox. 487 m
public-square
Piata Montreal
Piețe publice aprox. 1781 m

Detalii despre preț și costuri

Prețul pe piață

Preț cerut: 485.000 €

Preț min. zonă 209.990 €
Preț max. zonă 625.000 €

65% dintre proprietățile similare ca zonă și nr. camere au prețul cerut mai mic. mai multe...

Bine de știut: prețul unei proprietăți este influențat și de alte caracteristici, cum ar fi: vechime, localizare, vecinătăți, suprafață, compartimentare, amenajări, dotări, etc. mai puțin...

Costuri cu achiziția

Fără credit
93.665 RON
Credit ipotecar
96.836 RON
Noua casă
2.611 RON+ taxe notariale

i

Costuri adiționale mai puțin știute la achiziție: taxe notariale, comisioane etc.

Proprietăți recomandate

Detalii de contact

KASATA ADVISORS

Bogdan Atudosiei Consultant Imobiliar

4.54(10 review-uri)

KASATA ADVISORS
PRO

Abonează-te la newsletter să fii primul care primește cele mai noi recomandări de proprietăți și sfaturi de la experți.

CONTACT

Creează alertă

Salvează căutarea ca să primești pe email ultimele anunțuri publicate

Apartamente cu 3 camere de vânzare în zona Herăstrău, Sector 1