1

REA1026072 Apartament 4 camere I Intrare directa in parc I Cartierul Francez

537.700 €

Herăstrău, București

Nr. cam.:
4
Sup. utilă:
118 mp
Etaj:
Parter
An constr.:
2009
  • • Locație aproximativă
  • • Vizionare prin apel video

Descriere apartament

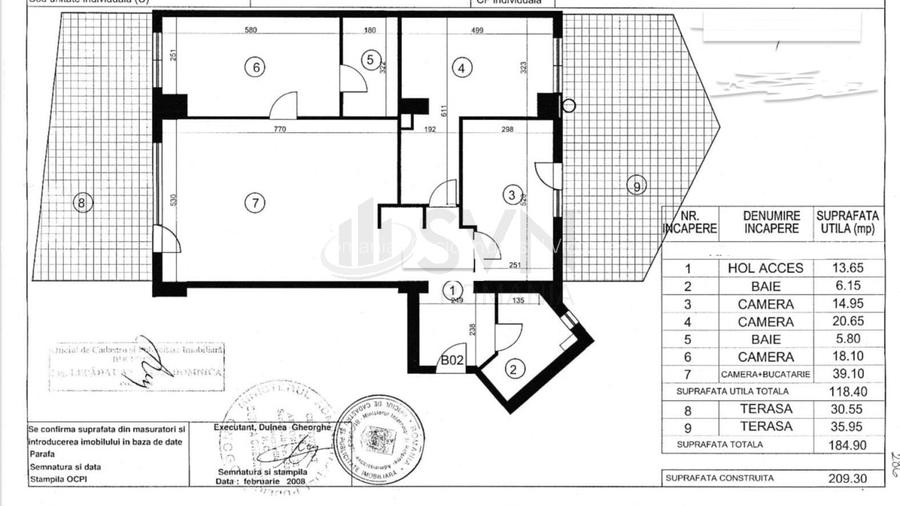
SVN Romania va propune spre vanzare un apartament deosebit cu 4 camere, decomandat, confort lux, situat in zona Herastrau. Imobilul este construit in anul 2009 si este disponibil la parterul unui bloc cu 7 etaje, cu o suprafata totala de 184,90 mp din care 66,50 mp terasele. Apartamentul dispune de un living generos cu bucatarie open space si dinning, 1 dormitor matrimonial cu zona de dressing, baie proprie si iesire pe terasa de 30,55 mp, inca 2 dormitoare secundare cu iesire la o alta terasa generoasa de 35,95mp si 2 bai. Imobilul dispune de receptie cu paza 24/7 si este situat chiar la intrarea in parc in cea mai selecta zona a Bucurestiului si are in apropiere saloane, restaurante dar si supermarketuri. Pretul apartamentului la vanzare este 537.700 euro. Apartamentul este inchiriat in prezent cu 2000 euro/luna deci este ideal ca investitie. Certificatul energetic va fi disponibil la momentul vanzarii. *fotografiile sunt cu titlu de prezentare, in prezent apartamentul e inchiriat si mobilat conform necesitatilor chiriasului. Pentru alte detalii sau stabilirea unei vizionari, nu ezitati sa ne contactati. **Vizionarea acestui imobil se face doar in baza semnarii unui acord de vizionare conform codului civil art 2.096-2.102.
Citește mai mult Citește mai puțin
Confort 1 Decomandat Acceptă animale de companie 2 Balcoane / Terase / Logii Aer condiționat Calorifere

Detalii apartament

ID anunț: X658006N2 Copiat! 275277109 Copiat!
Actualizat în: 13 Martie 2026
Suprafață utilă totală: 184 mp
Suprafață construită: 185 mp
Nr. bucătării: 1
Nr. băi: 2
Structură rezistență: Beton
Tip imobil: Bloc de apartamente
Regim înălțime: P+7E

Utilități

Destinație
Rezidențial
Pereți
Faianță
Podele
Gresie Parchet
Ferestre cu geam termopan
PVC
Contorizare
Contor căldură Apometre
Diverse
Sistem de alarmă
Alte spații utile
WC Serviciu
Facilități imobil
Interfon Lift
Utilități
Gaze Telefon internațional CATV Curent
Internet
Cablu Fibră optică Wireless
Servicii imobil
Supraveghere video Pază
Comision
Standard

Vicii:

Fără vicii.

Disponibilitate proprietate:

Disponibil din 23/01/2026.

Puncte de interes

Mijloace transport
bus-station
statie Bd. Ficusului 205, 261, 335, N113
Stații autobuz aprox. 221 m
bus-station
statie Horia Macelariu 205, 261, 335, N113
Stații autobuz aprox. 335 m
tram-station
Apicola
Stații tramvai aprox. 536 m
metro-station
Metrorex. Stația Aurel Vlaicu (M2)(1987)
Stații metrou aprox. 1425 m
Școală
school
Grupul Scolar "Viaceslav Harnaj"
Școli aprox. 346 m
kindergarten
Grădinița Mary Poppins
Gradinițe aprox. 400 m
school
Gradinita nr.283
Școli aprox. 637 m
university
Școala Superioară de Aviație Civilă - S.S.Av.C.
Universități aprox. 923 m
Recreere
park
Parc
Parcuri aprox. 279 m
supermarket
Mega Image
Supermarket aprox. 524 m
sports-ground
Teren sportiv
Terenuri sport aprox. 557 m
public-square
Piata Montreal
Piețe publice aprox. 1875 m

Detalii despre preț și costuri

Prețul pe piață

Preț cerut: 537.700 €

Preț min. zonă 106.998 €
Preț max. zonă 449.000 €

i

Proprietate cu prețul cerut în afara intervalului mai multe...

Posibile explicații pentru faptul că prețul proprietății este peste cel maxim: imobil nou cu suprafață mare, are dotări și finisaje de lux.
Bine de știut: prețul unei proprietăți este influențat și de alte caracteristici, cum ar fi: vechime, localizare, vecinătăți, suprafață, compartimentare, amenajări, dotări, etc.

Costuri cu achiziția

Fără credit
21.356 RON
Credit ipotecar
24.751 RON
Noua casă
2.879 RON+ taxe notariale

i

Costuri adiționale mai puțin știute la achiziție: taxe notariale, comisioane etc.

Proprietăți similare

Apartament cu 3 camere decomandat, mobilat în Herăstrău
530.000 €
București, Herăstrău
3 camere
140 mp
Etaj 3 / 5
Apartament cu 5 camere decomandat, mobilat în Herăstrău
525.000 €
București, Herăstrău
5 camere
164 mp
Etaj 2 / 5
Apartament cu 4 camere decomandat în Herăstrău
530.000 €
București, Herăstrău
4 camere
145 mp
Etaj 5

Detalii de contact

SVN Romania | Residentialist | Victoriei

Cristian Vasile Associated Advisor

4.71(7 review-uri)

SVN Romania | Residentialist | Victoriei
PRO

Abonează-te la newsletter să fii primul care primește cele mai noi recomandări de proprietăți și sfaturi de la experți.

CONTACT

Creează alertă

Salvează căutarea ca să primești pe email ultimele anunțuri publicate

Apartamente cu 4+ camere de vânzare în zona Herăstrău, Sector 1