4

Apartament 2 camere 60mp | Belair Lake Pipera | 0 comision | Parcare

195.000 €

Iancu Nicolae, București

Nr. cam.:
2
Sup. utilă:
60 mp
Etaj:
2 / 5
An constr.:
2022 (Finalizată)
  • • Comision 0%
  • • Locație exactă

Descriere apartament

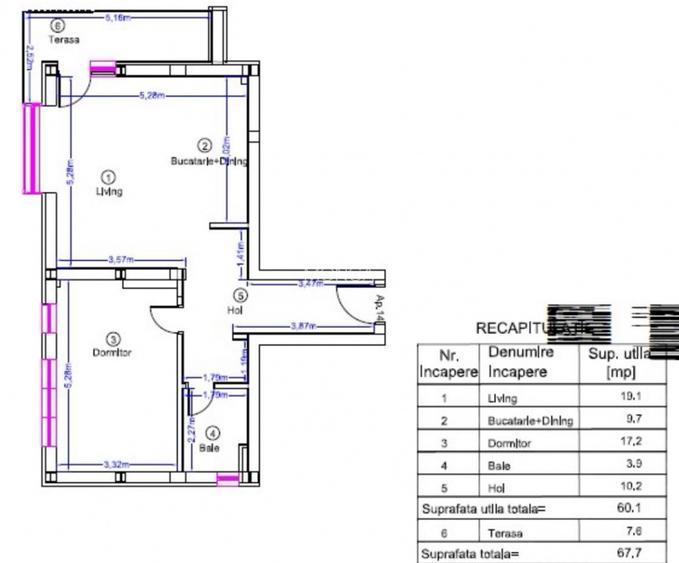
0 comision. Nu se adauga TVA. Va oferim spre achizitie fara comision un apartament cu doua camere, spatios si luminos, in zona Baneasa pe Iancu Nicolae, in complexul Belair Lake. Apartamentul beneficiaza si de o terasa privesliste catre lac. Pretul include un loc de parcare subteran. Asa cum v-am obisnuit: - toate ofertele Monga Imobiliare sunt fara comision din partea cumparatorului - pentru ca iubim transparenta, toate preturile afisate de Monga Imobiliare includ TVA (daca se aplica). Pretul afisat de noi este intotdeauna pretul final pe care il vei achita. Acceseaza Monga Imobiliare (Monga RO) pentru mai mai multe poze si pentru intreg portofoliul nostru de case si apartamente din Otopeni, Tunari, Balotesti, Corbeanca, Pipera si chiar nordul Bucurestiului. Punctele forte ale acestui apartament, in afara de suprafata generoasa, il reprezinta terasele cu vedere catre lac si localizarea intr-o zona premium in Baneasa, zona Iancu Nicolae. Apartamentul este ideal pentru o persoana sau un cuplu, sau ca investitie pentru inchiriere. Despre spatiu: Accesul se face intr-un hol ce comunica cu baia, dormitorul, si apoi zona de living-dining cu bucatarie deschisa avand o suprafata de 29mp. Terasa poate fi accesata din living. Beneficiaza de un loc de parcare. Apartamentul beneficiaza de finisaje super premium si se afla intr-o zona selecta cu acces facil catre nordul Bucurestiului si Pipera. Cambridge school se afla la 5 minute de mers pe jos. Apeleaza cu incredere la Monga Imobiliare. Suntem alaturi de tine pana la finalizarea tranzactiei si te ajutam sa treci cu incredere si in cunostinta de cauza prin toti pasii necesari. Te putem ajuta in pregatirea documentelor, selectia notarului, obtinerea finantarii, si altele. Te asteptam sa ne contactezi.
Citește mai mult Citește mai puțin
Centrală proprie Încălzire prin pardoseală 1 Parcare

Detalii apartament

ID anunț: XFHP1004H Copiat! 269790838 Copiat!
Actualizat în: 14 Februarie 2026
Nr. bucătării: 1
Nr. băi: 1
Structură rezistență: Beton
Tip imobil: Bloc de apartamente
Regim înălțime: P+5E

Utilități

Destinație
Rezidențial
Utilități
Curent Apă Canalizare Gaze
Ușă intrare
Metal
Ferestre cu geam termopan
PVC
Amenajare străzi
Asfaltate

Disponibilitate proprietate:

imediat

Puncte de interes

Mijloace transport
airport
Aeroportul Internațional Băneasa (Aurel Vlaicu) - LRBS (BBU)
Aeroporturi aprox. 904 m
bus-station
Jolie Ville Baneasa
Stații autobuz aprox. 1011 m
bus-station
Statia Restaurant Baneasa, linia 148,301
Stații autobuz aprox. 1121 m
tram-station
Drumul Nisipoasa
Stații tramvai aprox. 1536 m
Școală
school
Mark Twain International School
Școli aprox. 1218 m
school
Ferma Liceului Viaceslav Harnaj
Școli aprox. 1806 m
Recreere
park
Parc
Parcuri aprox. 313 m
restaurant
Phill
Restaurant aprox. 381 m
supermarket
Jolie Ville Galleria
Supermarket aprox. 1005 m
mall
Baneasa Shopping Center
Mall aprox. 1380 m

Detalii despre preț și costuri

Prețul pe piață

Preț cerut: 195.000 €

Preț min. zonă 112.000 €
Preț max. zonă 250.000 €

74% dintre proprietățile similare ca zonă și nr. camere au prețul cerut mai mic. mai multe...

Bine de știut: prețul unei proprietăți este influențat și de alte caracteristici, cum ar fi: vechime, localizare, vecinătăți, suprafață, compartimentare, amenajări, dotări, etc. mai puțin...

Costuri cu achiziția

Fără credit
9.598 RON
Credit ipotecar
11.538 RON
Noua casă
1.134 RON+ taxe notariale

i

Costuri adiționale mai puțin știute la achiziție: taxe notariale, comisioane etc.

Proprietăți recomandate

Detalii de contact

MONGA

Razvan Ceapa Managing Partner

5.00(3 review-uri)

MONGA
PRO

Abonează-te la newsletter să fii primul care primește cele mai noi recomandări de proprietăți și sfaturi de la experți.

CONTACT

Creează alertă

Salvează căutarea ca să primești pe email ultimele anunțuri publicate

Apartamente noi cu 2 camere de vânzare în zona Iancu Nicolae, Sector 1