2

Apartament 2 camere Cortina North | Pipera

131.900 € + TVA

Pipera, București

Nr. cam.:
2
Sup. utilă:
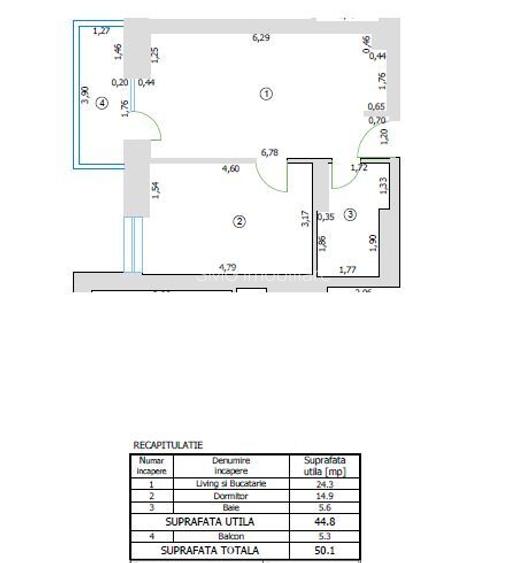
50 mp
Etaj:
8 / 10
An constr.:
2023 (Finalizată)
  • • Comision 0%
  • • Locație exactă

Descriere apartament

Va propunem spre achizitie un apartament modern cu 2 camere situat în ansamblul Cortina North, Pipera. — ideal pentru locuință sau investiție — Suprafata 49.9 mp din care balcon de 5.3 mp cu vedere libera catre zona de case. Se poate achizitiona separat si loc de parcare suprateran:pentru persoana juridica 16.500 euro fara tva, pentru persoana fizica 16.500 euro plus tva 21%. • Apartamentul este liber și disponibil imediat. Ansamblul ofera un stil de viata premium, activ si sanatos, cu facilitati unice:centru fitness si wellness cu bazin de inot, pista de alergare de 1,5 km,peste 10.000 mp de spatii verzi, galerii comerciale, parcari private si acces controlat. Oferim consultanta completa pe toata durata procesului de achizitie – de la vizionare pana la semnarea actelor notariale – si sprijin in obtinerea unui credit ipotecar. Pentru mai multe detalii și programarea unei vizionări, nu ezitați să ne contactați!
Citește mai mult Citește mai puțin
Semidecomandat 1 Balcon / Terasă / Logie

Detalii apartament

ID anunț: XFR90004B Copiat! 273958653 Copiat!
Actualizat în: 08 Ianuarie 2026
Suprafață utilă totală: 50 mp
Nr. bucătării: 1
Nr. băi: 1
Structură rezistență: Beton
Tip imobil: Bloc de apartamente
Regim înălțime: P+10E

Utilități

Comision
0%

Puncte de interes

Mijloace transport
bus-station
Capat C.F.R Constanta linii : 112,135,445
Stații autobuz aprox. 400 m
tram-station
Statia Rocin, linia 16, 36
Stații tramvai aprox. 951 m
metro-station
Pipera (M2)
Stații metrou aprox. 1076 m
airport
Aeroportul Internațional Băneasa (Aurel Vlaicu) - LRBS (BBU)
Aeroporturi aprox. 1710 m
Școală
school
Colegiul Tehnic Edmond Nicolau, fostul Electronica
Școli aprox. 1378 m
kindergarten
Gradinita Zece
Gradinițe aprox. 1467 m
school
Grupul Scolar Industrial Constantin Brancusi (en)
Școli aprox. 1477 m
kindergarten
Gradinita Miniterra
Gradinițe aprox. 1890 m
Recreere
restaurant
Q's Inn
Restaurant aprox. 657 m
park
spatiu verde
Parcuri aprox. 726 m
supermarket
Kaufland
Supermarket aprox. 946 m
sports-ground
Teren sportiv
Terenuri sport aprox. 1156 m

Detalii despre preț și costuri

Prețul pe piață

Preț cerut: 131.900 €

Preț min. zonă 112.000 €
Preț max. zonă 250.000 €

59% dintre proprietățile similare ca zonă și nr. camere au prețul cerut mai mare. mai multe...

Bine de știut: prețul unei proprietăți este influențat și de alte caracteristici, cum ar fi: vechime, localizare, vecinătăți, suprafață, compartimentare, amenajări, dotări, etc. mai puțin...

Costuri cu achiziția

Fără credit
8.383 RON
Credit ipotecar
10.173 RON
Noua casă
954 RON+ taxe notariale

i

Costuri adiționale mai puțin știute la achiziție: taxe notariale, comisioane etc.

Proprietăți similare

Apartament cu 2 camere decomandat în Pipera
139.900 €
București, Pipera
2 camere
51 mp
Parter / 5
Apartament cu 2 camere în Pipera
138.000 € + TVA
București, Pipera
2 camere
63 mp
Etaj 2
Apartament cu 2 camere semidecomandat în Pipera
138.000 € + TVA
București, Pipera
2 camere
83,73 mp
Etaj 4 / 7

Detalii de contact

SMG Imobiliare

Alex Cristian Tomescu

4.42(8 review-uri)

SMG Imobiliare
PRO

Abonează-te la newsletter să fii primul care primește cele mai noi recomandări de proprietăți și sfaturi de la experți.

CONTACT

Creează alertă

Salvează căutarea ca să primești pe email ultimele anunțuri publicate

Apartamente noi cu 2 camere de vânzare în zona Pipera, Sector 1