Vă propun spre achiziție un apartament tip duplex exclusivist, situat într-o zonă rezidențială de top – Erou Iancu Nicolae, în imediata apropiere a complexului Jolie Ville Galleria. Locația oferă acces rapid către unele dintre cele mai prestigioase școli internaționale din București, precum Cambridge School și Mark Twain, dar și către Băneasa Shopping City, Grădina Zoologică și alte puncte de interes din nordul orașului.
Apartamentul face parte dintr-un proiect boutique format din două imobile cu regim de înălțime P+3, cu doar câteva unități locative, ceea ce asigură un grad ridicat de intimitate și confort. Clădirile sunt prevăzute cu parcare subterană generoasă și acces securizat, iar fiecare apartament este dispus pe două niveluri – parter + etaj 1 sau etaj 2 + etaj 3, cu intrare individuală de la sol sau de la ultimul nivel.
Construcția beneficiază de înălțimi interioare peste medie, de 3.00 m în zona de zi și 2.80 m în dormitoare, iar planșeele sunt realizate fără grinzi, folosind un sistem modern cu cabluri pretensionate. Această soluție permite o eventuală recompartimentare ulterioară, fără constrângeri de structură.
Apartamentele dispun de camere generoase, terase și balcoane largi cu multiple posibilități de amenajare, iar unele unități beneficiază de acces direct către pădure. Ansamblul include zone verzi, lobby elegant, lifturi Schindler și sistem de supraveghere video 24/7.
Parcarea subterană este înaltă, fiind potrivită pentru montarea unui sistem de tip Klaus. Accesul se face ușor, iar rampa este echipată cu sistem de degivrare.
În ceea ce privește calitatea construcției și a finisajelor, proiectul se remarcă prin fațade ventilate izolate cu vată minerală bazaltică, placate cu panouri decorative cu aspect de lemn, zidărie Porotherm groasă (30 cm la exterior, 25 cm între apartamente), finisaje premium și zugrăveli lavabile de calitate superioară.
Apartamentul beneficiază de un sistem Smart Home complet integrat, ceramică premium import Italia, obiecte sanitare de lux, uși interioare înalte (Grecia), tâmplărie din aluminiu cu geam tripan low-E (profil Belgia), și aparataj electric inteligent, controlabil prin telefon mobil.
Încălzirea se face prin pardoseală, cu ajutorul pompelor de căldură Hitachi. Fiecare cameră este dotată cu ventiloconvector și termostat digital, ceea ce permite control individual al temperaturii prin smartphone.
Detalii apartament:
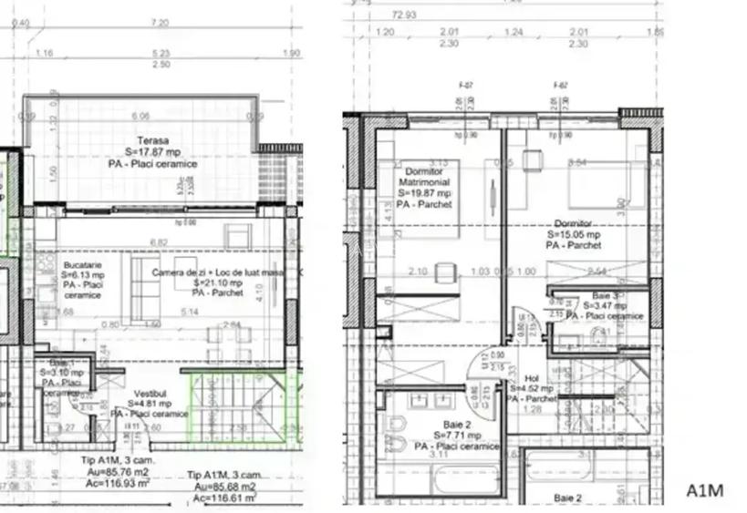
Suprafață construită: 116,93 mp
Suprafață utilă: 85,76 mp
Terasă: 19,45 mp
Suprafață utilă totală: 105,21 mp
Acces prin etajul 3, cu scară interioară
Prețuri și condiții:
Preț apartament: 326.142 EUR + TVA
Loc de parcare subteran (înalt, pentru sistem Klaus): 25.000 EUR + TVA
Comision 0% pentru cumpărător
Acest apartament este o alegere ideală pentru cei care își doresc o locuință elegantă, modernă, într-o zonă verde, exclusivistă și excelent conectată. Este o proprietate premium, potrivită atât pentru locuit, cât și pentru investiție.
Pentru mai multe detalii sau pentru a programa o vizionare, nu ezitați să ne contactați.
VAUNT ID: 102343
Citește mai mult
Citește mai puțin
Confort lux
Semidecomandat
1 Balcon / Terasă / Logie
Curte comună
Aer condiționat
Ventiloconvectoare
Încălzire prin pardoseală
64%dintre proprietățile similare ca zonă și nr. camere au prețul cerutmai mic.
mai multe...
Bine de știut: prețul unei proprietăți este influențat și de alte caracteristici, cum ar fi: vechime, localizare, vecinătăți, suprafață, compartimentare, amenajări, dotări, etc.
mai puțin...
Costuri cu achiziția
Fără credit
16.448 RON
Credit ipotecar
19.236 RON
Noua casă
2.151 RON+ taxe notariale
i
Costuri adiționale mai puțin știute la achiziție: taxe notariale, comisioane etc.
Calculul ipotecarului
Proprietăți recomandate
Pornind de la căutarea ta îți recomandăm următoarele anunțuri
338.000 € + TVA
București, Pipera
3 camere
108 mp
Etaj 2
326.142 € + TVA
București, Iancu Nicolae
3 camere
105 mp
Etaj 1
320.000 € + TVA
București, Pipera
3 camere
95 mp
Etaj 1
307.296 € + TVA
București, Iancu Nicolae
3 camere
77,6 mp
Etaj 3
326.142 € + TVA
București, Pipera
3 camere
116,93 mp
Etaj 1
307.268 € + TVA
București, Pipera
3 camere
85 mp
Etaj 2
399.900 € + TVA
București, Pipera
4 camere
136,4 mp
Etaj 5
580.000 €
București, Iancu Nicolae
4 camere
103,6 mp
Etaj 2 / 3
300.000 € + TVA
București, Iancu Nicolae
3 camere
98,9 mp
Etaj 2
Detalii de contact
Acestă agenție te poate ajuta să obții o soluție de finanțare potrivită nevoilor tale. Solicită-i informații suplimentare.
Sediul central - Timișoara
Bulevardul Victor Babeș nr. 2, 300230, Timișoara, România
Tel: +40.374.40.44.98 / Fax: +40.256.401.179
Email: suport@imobiliare.ro
Luni - Vineri 08:00 - 20:00
Punct de lucru - București: Iride Business Park, Bld. Dimitrie
Pompeiu 9-9A, Clădirea B2B,
020335, Sector 2, București, România
CONTACT
Sediul central - Timișoara
Bulevardul Victor Babeș nr. 2, 300230, Timișoara, România
Tel: +40.374.40.44.98 / Fax: +40.256.401.179
Email: suport@imobiliare.ro
Luni - Vineri 08:00 - 20:00
Punct de lucru - București: Iride Business Park, Bld. Dimitrie
Pompeiu 9-9A, Clădirea B2B,
020335, Sector 2, București, România
Asigurare de viață/lună Costul este variabil. În funcție de banca aleasă, procentul variază între 0.0259% și 0.035% din soldul creditului.
Costuri cu achiziția19.236 RON
Comision agenție Întreabă agenţia
Onorariu notarial13.432 RON
Taxă întabulare OCPI3.016 RON
Autentificare contract credit2.788 RON
Preț de achiziție2.010.688 RON
Preț locuință1.661.726 RON
TVA 21%348.962 RON
Preț de achiziție2.010.688 RON
Preț locuință1.661.726 RON
TVA 21%
348.962 RON
Avans minim1.404.371 RON
Credit pe 30 de ani606.317 RON
Cost achitat în prima lună
Taxa evaluare imobil(până la)
575 RON
Rata lunară (variabilă)4.260 RON
Depozit colateral12.780 RON
Comision de garantare FNGCIMM168 RON
Asigurare anuală imobil2.011 RON
Poliță PAD130 RON
Tarif arhivă electronică102 RON
Costuri adiționale2.151 RON + taxe notariale
Asigurare viață și complexă (opțională)Costul este variabil. În funcție de banca aleasă, procentul variază între 0.0259% și 0.035% din soldul creditului
Onorariu notarialconform tarif notarial
Taxă întabulare OCPI2.151 RON
i
Toate valorile de mai sus sunt estimative și nu reprezintă în mod obligatoriu costurile exacte pe care le veți primi de la companiile/instituțiile prin care veți încheia tranzacția.
Căutarea a returnat prea multe rezultate, ce pot reduce relevanța alertelor pe care le vei primi.
Îți recomandăm să aplici mai multe criterii de filtrare (ex: nr. camere, preț, zonă).