10

Apartament de Lux 3 Camere - Zona Nord Mobilat și Utilat - Loc de Parcare Inclus

236.000 €

Pipera, București

Nr. cam.:
3
Sup. utilă:
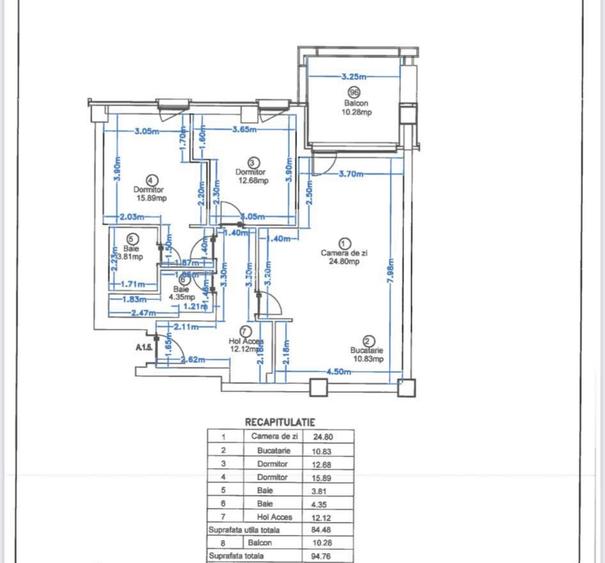
85 mp
Etaj:
1 / 5
An constr.:
2021
  • • Comision 0%
  • • Locație exactă

Descriere apartament

Vă propunem spre vânzare un apartament excelent, situat într-un complex de Lux din zona de Nord a Bucureștiului, ideal pentru cei care caută un stil de viață premium și acces rapid la facilitățile de top. Comision 0% Apartamentul se vinde exact ca în pozele de prezentare: complet mobilat și utilat, gata de mutat! ✨ Puncte de Atracție Design Premium: Se vinde mobilat și utilat la standarde înalte. Loc de Parcare Inclus: Beneficiați de 1 loc de parcare securizat la subteran, inclus în preț! Locație Exclusivă: Acces imediat la școli internaționale de prestigiu (American School, British School, Olga Gudynn, Mark Twain) mall-uri și cluburi sportive de elită (World Class Atlantis, Jollie Ville). Proximitatea Naturii: La doar câțiva pași de Pădure. 🛋️ Compartimentare și Facilități Spațiu Generos: Living luminos cu zonă de dining, bucătărie modernă, 2 dormitoare confortabile. Confort Sporit: 2 Băi elegante și Hol de acces. Aer Liber: Balcon spațios, ideal pentru relaxare. Parcare Inclusă: Apartamentul dispune de 1 loc de parcare la subteranul blocului (inclus în preț). 📍 Vecinătăți de Top Locația oferă acces privilegiat la: Educație: American School, British School, Mark Twain, Olga Gudynn. Shopping & Divertisment: Băneasa Shopping City, Jolie Ville, Strip Mall. Sport & Social: Stejarii Country Club, Atlantis Club, World Class (Jolie Ville). 🏗️ Detalii Tehnice Premium Blocul este construit la cele mai înalte standarde de calitate și izolare: Structură din beton armat, termosistem exterior. Izolație Fonică și Termică Superioară: Pereți între apartamente din cărămidă tip Brikston BKS 25 cm grosime. Finisaje de Lux: Parchet triplu stratificat tip BAUWERK, gresie/faianță porțelanată de calitate. Terasa Circulabilă: Acoperiș tip terasă termoizolată și hidroizolată de 10mp. 💰 Preț Preț Apartament (Mobilat Parțial) + Loc de Parcare Subteran INCLUS: 246.000 Euro Comision Cumpărător: 0% Contactați-ne pentru mai multe detalii și programarea unei vizionări!
Citește mai mult Citește mai puțin
Semidecomandat Lux 1 Balcon / Terasă / Logie 1 Parcare

Detalii apartament

ID anunț: XCVT0007P Copiat! 272274042 Copiat!
Actualizat în: 27 Ianuarie 2026
Suprafață utilă totală: 95 mp
Nr. bucătării: 1
Nr. băi: 2
Tip imobil: Bloc de apartamente
Regim înălțime: P+5E

Utilități

Destinație
Rezidențial
Bucătărie
Mobilată Utilată
Comision
0%

Puncte de interes

Școală
school
Happy Children Academy
Școli aprox. 142 m
kindergarten
Kindergarden
Gradinițe aprox. 608 m
school
Scoala Discovery
Școli aprox. 854 m
university
School American Bucharest-Voluntari
Universități aprox. 952 m
Recreere
supermarket
Mega Image Pipera Liziera
Supermarket aprox. 181 m
sports-ground
Teren sportiv
Terenuri sport aprox. 750 m
park
Parc
Parcuri aprox. 1163 m
cafe
Doncafe Brasserie
Cafenea aprox. 1230 m

Detalii despre preț și costuri

Prețul pe piață

Preț cerut: 236.000 €

Preț min. zonă 159.990 €
Preț max. zonă 395.000 €

54% dintre proprietățile similare ca zonă și nr. camere au prețul cerut mai mare. mai multe...

Bine de știut: prețul unei proprietăți este influențat și de alte caracteristici, cum ar fi: vechime, localizare, vecinătăți, suprafață, compartimentare, amenajări, dotări, etc. mai puțin...

Costuri cu achiziția

Fără credit
11.003 RON
Credit ipotecar
13.117 RON
Noua casă
1.342 RON+ taxe notariale

i

Costuri adiționale mai puțin știute la achiziție: taxe notariale, comisioane etc.

Proprietăți recomandate

Detalii de contact

View Properties

Cristina Ghinea Sales Manager

View Properties

Abonează-te la newsletter să fii primul care primește cele mai noi recomandări de proprietăți și sfaturi de la experți.

CONTACT

Creează alertă

Salvează căutarea ca să primești pe email ultimele anunțuri publicate

Apartamente noi cu 3 camere de vânzare în zona Pipera, Sector 1