REA1026048 Apartament 2 camere I IN RENOVARE COMPLETA I Barbu Vacarescu

152.990 €

Barbu Văcărescu, București

Nr. cam.:
2
Sup. utilă:
49 mp
Etaj:
2 / 7
An constr.:
1961 (Finalizată)
  • • Locație aproximativă
  • • Vizionare prin apel video

Descriere apartament

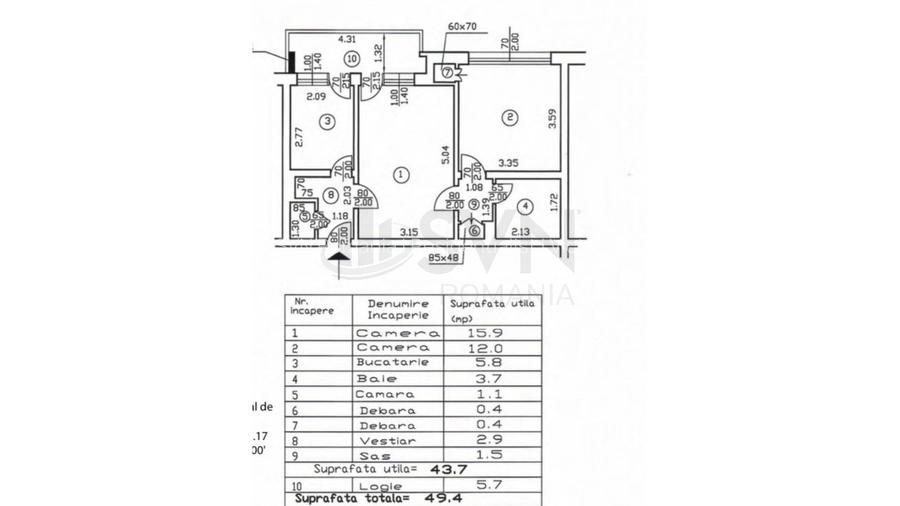
SVN Romania va propune spre vanzare un apartament de 2 camere situat pe Barbu Vacarescu, aflat in prag de renovare totala. Apartamentul are o suprafata de 49 mp si este amplasat la etajul 2 din 7, intr-un bloc reabilitat termic, expertizat si neincadrat in nicio clasa de risc seismic. Proprietatea este in prag de renovare completa, lucrarile incluzand inlocuirea integrala a instalatiilor electrice, sanitare si termice, montarea unui parchet nou, usi noi, finisaje moderne si refacerea completa a spatiului interior. Localizarea este una deosebita: statia de metrou Stefan cel Mare este accesibila in aproximativ 3 minute de mers pe jos. Totodata, Parcul Circului se afla la doar un minut distanta, oferind un spatiu ideal pentru plimbari si relaxare. Zona este una de interes major, cu acces rapid catre Piata Victoriei, Floreasca, Dorobanti si centrul orasului. In apropiere se regasesc numeroase magazine, restaurante, farmacii, clinici medicale si unitati de invatamant. Acest apartament reprezinta o optiune excelenta atat pentru locuinta personala, cat si pentru investitie datorita accesibilitatii dar si pozitiei sale centrale. Pentru mai multe informatii sau pentru programarea vizionarilor, contactul meu va sta la dispozitie!
Citește mai mult Citește mai puțin
Confort 1 Semidecomandat Acceptă animale de companie 1 Balcon / Terasă / Logie Calorifere Necesită renovare

Detalii apartament

ID anunț: X658006MV Copiat! 275277099 Copiat!
Actualizat în: 13 Martie 2026
Suprafață utilă totală: 54 mp
Suprafață construită: 56 mp
Nr. bucătării: 1
Nr. băi: 1
Structură rezistență: Beton
Tip imobil: Bloc de apartamente
Regim înălțime: P+7E

Utilități

Destinație
Rezidențial
Pereți
Faianță
Podele
Gresie Parchet
Izolații termice
Exterior
Ferestre cu geam termopan
PVC
Contorizare
Contor căldură Apometre
Facilități imobil
Interfon Lift
Utilități
CATV Curent
Comision
Standard

Vicii:

Fără vicii.

Disponibilitate proprietate:

Disponibil din 16/12/2025.

Puncte de interes

Mijloace transport
tram-station
Soseaua Stefan cel Mare
Stații tramvai aprox. 107 m
bus-station
Stefan cel Mare
Stații autobuz aprox. 165 m
metro-station
Metrorex. Stația Ștefan cel Mare (M1)(1989)
Stații metrou aprox. 176 m
trolleybus-station
Statia Calea Dorobantilor; Liniile:79, 86,
Stații troleibuz aprox. 905 m
Școală
school
Clubul Sportiv Dinamo Bucuresti
Școli aprox. 169 m
kindergarten
Gradinita nr. 138 cu program prelungit
Gradinițe aprox. 345 m
school
Scoala generala nr. 24
Școli aprox. 363 m
university
CROS - Universitatea Alternativa
Universități aprox. 634 m
Recreere
sports-ground
Stadionul Dinamo
Terenuri sport aprox. 264 m
park
Parcul Circului(1961)
Parcuri aprox. 443 m
supermarket
Mega Image - IANCU DE HUNEDOARA
Supermarket aprox. 668 m
mall
"METROPLIS CENTER"
Mall aprox. 702 m

Detalii despre preț și costuri

Prețul pe piață

Preț cerut: 152.990 €

Preț min. zonă 106.900 €
Preț max. zonă 280.000 €

63% dintre proprietățile similare ca zonă și nr. camere au prețul cerut mai mare. mai multe...

Bine de știut: prețul unei proprietăți este influențat și de alte caracteristici, cum ar fi: vechime, localizare, vecinătăți, suprafață, compartimentare, amenajări, dotări, etc. mai puțin...

Costuri cu achiziția

Fără credit
8.154 RON
Credit ipotecar
9.916 RON
Noua casă
919 RON+ taxe notariale

i

Costuri adiționale mai puțin știute la achiziție: taxe notariale, comisioane etc.

Proprietăți similare

Apartament cu 2 camere decomandat, mobilat în Barbu Văcărescu
156.900 €
București, Barbu Văcărescu
2 camere
45 mp
Etaj 1 / 10
Apartament cu 2 camere decomandat în Barbu Văcărescu
159.675 € + TVA
București, Barbu Văcărescu
2 camere
54 mp
Etaj 3 / 11
Apartament cu 3 camere decomandat în Barbu Văcărescu
155.000 €
București, Barbu Văcărescu
3 camere
60 mp
Parter

Detalii de contact

SVN Romania | Residentialist | Victoriei

Anamaria Enoiu Associated Advisor

SVN Romania | Residentialist | Victoriei
PRO

Abonează-te la newsletter să fii primul care primește cele mai noi recomandări de proprietăți și sfaturi de la experți.

CONTACT

Creează alertă

Salvează căutarea ca să primești pe email ultimele anunțuri publicate

Apartamente cu 2 camere de vânzare în zona Barbu Văcărescu, Sector 2