Apartament premium cu 3 camere, terasa generoasa si 2 locuri de parcare – Barbu Vacarescu | 102 The Address
Va propunem spre vanzare un apartament deosebit, situat intr-una dintre cele mai bine cotate zone ale Capitalei – Barbu Vacarescu, in cadrul ansamblului 102 The Address, un reper al locuirii moderne, cu acces rapid catre centrele de business, zonele de relaxare si punctele cheie ale orasului.
Apartamentul este amplasat la etajul 7 din 10, intr-un imobil finalizat in 2021, construit la standarde inalte de calitate, izolat termic, dotat cu videointerfon si lift modern, oferind un nivel ridicat de confort, siguranta si eficienta energetica (Clasa A).
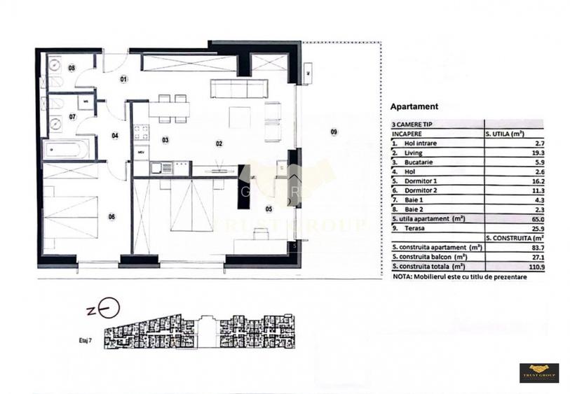
Compartimentare si suprafete
Locuinta dispune de o suprafata utila de 70 mp, la care se adauga o terasa spectaculoasa de 25 mp, rezultand o suprafata totala de 95 mp. Compartimentarea este eficienta si echilibrata, ideala atat pentru locuire personala, cat si pentru investitie:
• Living luminos, cu acces direct catre terasa
• Bucatarie complet mobilata si utilata
• Doua dormitoare confortabile
• Doua bai (inclusiv grup sanitar de serviciu)
• Hol generos, spatii de depozitare si dressing
Orientarea Sud–Vest asigura lumina naturala pe tot parcursul zilei si o atmosfera calda si primitoare.
Finisaje si dotari
Apartamentul se vinde complet mobilat si utilat, beneficiind de:
• Incalzire in pardoseala prin centrala proprie
• Aer conditionat
• Parchet si gresie de calitate superioara
• Ferestre din aluminiu cu geam termopan
• Usi interioare din lemn, usa metalica la intrare
In pret sunt incluse 2 locuri de parcare si 2 boxe, un avantaj important in aceasta zona.
Localizare si accesibilitate
Pozitionarea excelenta ofera acces rapid catre punctele de interes ale orasului:
• Metrou Stefan cel Mare sau Aurel Vlaicu – aproximativ 8–10 minute de mers pe jos
• Promenada Mall – aproximativ 10 minute de mers pe jos
• Restaurantele si cafenelele din Dorobanti – 5–7 minute cu masina sau ~15 minute pietonal
• Parcul Floreasca – aproximativ 10 minute de mers pe jos
• Parcul Circului – aproximativ 15 minute de mers pe jos
Zona este excelent deservita de mijloace de transport in comun si ofera acces rapid catre Pipera, Aviatorilor, Floreasca si centrul orasului.
Concluzie
Aceasta proprietate reprezinta alegerea ideala pentru cei care isi doresc un stil de viata urban, modern si confortabil, dar si o investitie sigura, intr-o zona cu cerere ridicata si potential excelent de inchiriere.
Pentru mai multe detalii sau pentru programarea unei vizionari, va stam la dispozitie zilnic, inclusiv in weekend.
Proprietate cu prețul cerut în afara intervalului mai multe...
Posibile explicații pentru faptul că prețul proprietății este peste cel maxim: imobil nou cu suprafață mare, are dotări și finisaje de lux.
Bine de știut: prețul unei proprietăți este influențat și de alte caracteristici, cum ar fi: vechime, localizare, vecinătăți, suprafață, compartimentare, amenajări, dotări, etc.
Costuri cu achiziția
Fără credit
21.776 RON
Credit ipotecar
25.222 RON
Noua casă
2.942 RON+ taxe notariale
i
Costuri adiționale mai puțin știute la achiziție: taxe notariale, comisioane etc.
Sediul central - Timișoara
Bulevardul Victor Babeș nr. 2, 300230, Timișoara, România
Tel: +40.374.40.44.98 / Fax: +40.256.401.179
Email: suport@imobiliare.ro
Luni - Vineri 08:00 - 20:00
Punct de lucru - București: Iride Business Park, Bld. Dimitrie
Pompeiu 9-9A, Clădirea B2B,
020335, Sector 2, București, România
CONTACT
Sediul central - Timișoara
Bulevardul Victor Babeș nr. 2, 300230, Timișoara, România
Tel: +40.374.40.44.98 / Fax: +40.256.401.179
Email: suport@imobiliare.ro
Luni - Vineri 08:00 - 20:00
Punct de lucru - București: Iride Business Park, Bld. Dimitrie
Pompeiu 9-9A, Clădirea B2B,
020335, Sector 2, București, România
Metrorex. Stația Obor (M1)(1989)(Fosta statie de tramvai subterana)
aprox.
1649 m
Piata Aviatorilor (M2)
aprox.
1923 m
Metrorex. Stația Universitate (M2)(1987)
aprox.
1962 m
Stefan cel Mare
aprox.
145 m
Statia Soseaua Stefan cel Mare / Stadion Dinamo, linia 1, 5, 46, N123
aprox.
156 m
Statia Soseaua Stefan cel Mare / Stadion Dinamo, linia N123,1, 5, 46
aprox.
175 m
Stefan cel Mare
aprox.
194 m
Statia Soseaua Stefan cel Mare, linia 135, N119, N123
aprox.
321 m
Statia Bd. Lacul Tei, linia 182, 282, N123,5
aprox.
331 m
Statia Vasile Lascar, linia 330, 335, 1, 46
aprox.
483 m
Statia Circul Bucuresti, linia 182, 282, N123
aprox.
546 m
Statia Liceul Ion Luca Caragiale, linia 131, 182, 330, 331, 335, N113, 301
aprox.
793 m
Statia Dr. Grozovici, linia 330, 335, 1, 46
aprox.
831 m
Statia Luigi Glavani, linia 182, 282, N123
aprox.
917 m
Mihai Eminescu
aprox.
1064 m
Piata Lahovari
aprox.
1068 m
Piata Dorobantilor
aprox.
1108 m
Statia Lizeanu / Soseaua Stefan cel Mare, linia 330, 335, 1, 16, 46
aprox.
1140 m
Statia Calea Dorobantilor; Liniile:79, 86,
aprox.
864 m
Statia Piata Romana linii : 79,86
aprox.
1009 m
Statia Teiul Doamnei, linia 66
aprox.
1899 m
Statia Foisorul de Foc linii : 79,86
aprox.
1975 m
Clubul Sportiv Dinamo Bucuresti
aprox.
124 m
Scoala generala nr. 24
aprox.
357 m
Scoala nr. 24
aprox.
365 m
Scoala Generala nr.28
aprox.
441 m
Scoala Generala nr. 28
aprox.
441 m
Scoala de teatru
aprox.
652 m
Scoala Americana
aprox.
675 m
Cambridge School
aprox.
732 m
Scoala nr. 15
aprox.
766 m
Liceul Teoretic "Alexandru Vlahuta"
aprox.
772 m
Cambridge School Of Bucharest (en)
aprox.
774 m
Liceul Tehnologic Special nr. 3
aprox.
779 m
Liceul Alexandru Vlahuta + Scoala 15 (en)
aprox.
779 m
Scoala Pentru Hipoacuzici
aprox.
780 m
Badulescu Aurelia (en)
aprox.
833 m
Gradinita nr. 138 cu program prelungit
aprox.
334 m
Gradinita nr. 252 cu program prelungit
aprox.
584 m
Gradinita cu program normal si prelungit Happy Kids
aprox.
602 m
Gradinita nr. 85
aprox.
734 m
Ioanid
aprox.
950 m
Gradinita numarul 133
aprox.
954 m
Gradinita Ioanid
aprox.
959 m
Paradisul Copiilor
aprox.
1026 m
Gradinita numarul 12 Albinuta
aprox.
1080 m
Gradinita nr. 12 Albinuta
aprox.
1091 m
Gradinita nr. 116
aprox.
1249 m
Gradinita numarul 257
aprox.
1253 m
Gradinita de copii nr.251
aprox.
1272 m
Grădinița nr. 252
aprox.
1297 m
Gradinita Numarul 7
aprox.
1323 m
CROS - Universitatea Alternativa
aprox.
606 m
Universitatea Atenaeum
aprox.
802 m
Athenaeum University (en)
aprox.
802 m
ASE - Cibernetica
aprox.
853 m
ASE Cibernetica (en)
aprox.
884 m
ASE - Sala de sport
aprox.
914 m
ASE - Facultatea de Comert
aprox.
916 m
ASE - Cladirea Cihoschi
aprox.
926 m
Amfiteatrele ASE
aprox.
951 m
ASE Cladirea Veche 1916 - 1926 (en)
aprox.
960 m
Academia de Studii Economice
aprox.
975 m
Scoala Nationala de Studii Politice si Administrative (SNSPA)
aprox.
998 m
Scoala Nationala de Studii Politice si Administrative
aprox.
998 m
SNSPA
aprox.
1004 m
Rectoratul UMF "Carol Davila"
aprox.
1359 m
Mega Image - IANCU DE HUNEDOARA
aprox.
620 m
BILLA - Dorobanti
aprox.
812 m
Bila Supermarket
aprox.
832 m
Mega Image
aprox.
927 m
Mario Plaza
aprox.
940 m
Mega Image
aprox.
943 m
Bacania Coco
aprox.
1135 m
Nic Dorobanti Non-Stop
aprox.
1144 m
Kaufland Barbu Vacarescu
aprox.
1167 m
Mega Image Concept Store
aprox.
1170 m
Stock Market
aprox.
1178 m
Mega Image - Icoanei
aprox.
1197 m
BILLA - B. Vacarescu
aprox.
1204 m
Mega Image Lizeanu Non-Stop
aprox.
1237 m
Mega Image Supermarket
aprox.
1242 m
"METROPLIS CENTER"
aprox.
653 m
Parcare
aprox.
134 m
Parcare
aprox.
229 m
Parcare privata
aprox.
277 m
Parcare spital
aprox.
330 m
Parcare
aprox.
330 m
Parcare
aprox.
397 m
Parcare
aprox.
471 m
Parcare
aprox.
577 m
Parcare
aprox.
624 m
Parcare Subterana Metropolis Center
aprox.
624 m
Parcare
aprox.
634 m
Parcare
aprox.
695 m
Parcare
aprox.
696 m
Parcare
aprox.
696 m
Parcare
aprox.
751 m
Stadionul Dinamo
aprox.
228 m
Teren sportiv
aprox.
322 m
Teren sportiv
aprox.
349 m
Teren sportiv
aprox.
369 m
Teren sportiv
aprox.
414 m
Teren sportiv
aprox.
480 m
Teren sportiv
aprox.
1070 m
Teren sportiv
aprox.
1115 m
ICSIM
aprox.
1349 m
Respawn B
aprox.
1394 m
Gradinita
aprox.
1426 m
Respawn A
aprox.
1450 m
Etaj 1 - Hala CQB
aprox.
1453 m
Parter - Hala mare
aprox.
1460 m
Teren sportiv
aprox.
1793 m
Parc
aprox.
447 m
Parc
aprox.
456 m
Perla park
aprox.
456 m
Parcul Circului(1961)
aprox.
491 m
Parcul Circului
aprox.
554 m
Parc
aprox.
671 m
Parc
aprox.
818 m
Parc
aprox.
833 m
Parc
aprox.
903 m
Parcul Floreasca Cinema
aprox.
903 m
Parcul Ion Voicu
aprox.
955 m
Parcul "Ioanid"
aprox.
956 m
Parc
aprox.
991 m
Automatica Park (en)
aprox.
1002 m
Parcul Piata Romana
aprox.
1044 m
Piața Romană
aprox.
1038 m
Piața Aviatorilor
aprox.
1628 m
Piata Bucur Obor
aprox.
1724 m
Piata Revolutiei
aprox.
1779 m
Piata Latina
aprox.
1958 m
Spitalul de Pneumoftiziologie Sfantul Stefan
aprox.
48 m
Syromed+
aprox.
113 m
Spitalul de Urgenta Floreasca
aprox.
274 m
Doctor Carmen Sturza
aprox.
276 m
Spitalul de Urgență Floreasca
aprox.
283 m
Clinica Gral Medical
aprox.
307 m
Spitalul Euroclinic
aprox.
315 m
Spitalul Euroclinic - Regina Maria
aprox.
324 m
Camera de Garda - Spitalul de Urgenta Floreasca
aprox.
325 m
Regina Maria Floreasca
aprox.
425 m
Puls
aprox.
476 m
Centrul Medical Hiperdia
aprox.
558 m
INFOSAN Clinica Oftalmologica
aprox.
561 m
PAVILIONUL H
aprox.
564 m
Ambulatoriul de specialitate al Spitalului de copii Grigore Alexandrescu
aprox.
571 m
Depofarm
aprox.
141 m
Produse naturale SECOM
aprox.
157 m
Catena Farmacie
aprox.
179 m
Sensiblu
aprox.
186 m
Farmaciile Polisano
aprox.
314 m
Farmacia Arta
aprox.
328 m
Farmacia Punkt
aprox.
382 m
SC. Farmed SRL
aprox.
399 m
Farmacia Dona 54
aprox.
416 m
Centrofarm 9
aprox.
445 m
Farmacia Dona 152
aprox.
451 m
Sensiblu
aprox.
522 m
Farmacia HelpNet
aprox.
537 m
Farmaciamerk 2 Pharma
aprox.
542 m
Farmacia Crisia
aprox.
568 m
Restaurant La Mama (en)
aprox.
78 m
La Mama
aprox.
94 m
Li-WU
aprox.
189 m
cofetaria Nicola
aprox.
251 m
Don Carlos
aprox.
268 m
Restaurant Cery-Lu
aprox.
277 m
Ganesha Garden
aprox.
306 m
Genin Shaorma
aprox.
367 m
La Placinte
aprox.
464 m
Torna Fratre
aprox.
503 m
Vivo Fusion Food Bar
aprox.
504 m
Balcic
aprox.
508 m
Restaurant Perla (en)
aprox.
513 m
Perla
aprox.
513 m
Fornetti
aprox.
546 m
Ganesha Cafe
aprox.
306 m
Fitto Cafe
aprox.
559 m
Smart Change
aprox.
589 m
Reader's Cafe
aprox.
661 m
Shiva
aprox.
683 m
Tucano Coffee - Dorobanti
aprox.
807 m
Tucano Coffee
aprox.
822 m
Mon Amour
aprox.
899 m
Music Rooms Cafe
aprox.
931 m
Randez Vous
aprox.
936 m
Cafe Boheme
aprox.
954 m
5 To Go Lahovari
aprox.
1060 m
Cafe 3
aprox.
1069 m
High Heels
aprox.
1096 m
Hathor Cafe
aprox.
1107 m
Open Pub
aprox.
313 m
Studio Martin
aprox.
570 m
Restaurant-pizzerie BONA DA ELENA
aprox.
763 m
Panik & Pub
aprox.
811 m
Waldo's
aprox.
890 m
OLD NICK PUB
aprox.
1065 m
Doncafe Brasserie
aprox.
1124 m
Smart's Pub & Bistro
aprox.
1328 m
Le Cafe Inmedio
aprox.
1730 m
Have a Cigar
aprox.
1802 m
Bluzz
aprox.
1918 m
Cup & Cake
aprox.
318 m
ACAB Pub
aprox.
647 m
Lokal
aprox.
703 m
Alan Dala
aprox.
726 m
Sky Bar
aprox.
804 m
Zappa Rock & More
aprox.
811 m
Happy Pub
aprox.
842 m
La Baraca
aprox.
880 m
Frame
aprox.
1093 m
Piua Book Bar
aprox.
1132 m
MIM Bistro
aprox.
1236 m
El Bistro
aprox.
1417 m
Trei Betivi
aprox.
1433 m
E... Varza
aprox.
1458 m
A1
aprox.
1519 m
Banca Transilvania - Ag. Stefan cel Mare
aprox.
179 m
Banca Transilvania
aprox.
182 m
Raiffeisen Bank
aprox.
182 m
BCR
aprox.
242 m
Banca Comerciala Carpatica
aprox.
250 m
ING Stefan cel Mare - Polona
aprox.
280 m
BRD Stefan Cel Mare
aprox.
281 m
Piraeus Bank Romania - Agentia Stefan cel Mare
aprox.
287 m
Banca Romaneasca
aprox.
332 m
Banca Romana de Credite si Investitii
aprox.
376 m
Banca Romaneasca
aprox.
397 m
CEC Bank
aprox.
407 m
ProCredit Bank
aprox.
420 m
Volksbank
aprox.
436 m
Alpha Bank
aprox.
504 m
Dacă te vei muta în zona Tei, vei avea la dispoziție mai multe mijloace de transport în comun. Printre acestea se numără tramvaiele 16 și 36. Primul oferă o conexiune rapidă cu zona Pipera sau te poate ajuta să ajungi la doi pași de Piața Unirii. Cel de-al doilea merge până în cartierul Titan. Cu autobuzul 182 poți să te deplasezi până în zona Gării de Nord, iar cu autobuzul 282 până la Gara Basarab. Cele mai apropiate stații de metrou pe care le vei alea la dispoziție, dacă te vei muta în Tei, sunt Ștefan cel Mare și Obor, ambele aflate pe traseul magistralei 1 Dristor - Pantelimon. Este important de menționat și faptul că în zona Fabrica de Glucoză - Petricani de la marginea cartierului există autostrada urbană. Practic, ai o legătură directă cu A3 București-Ploiești. Consultă harta pentru a afla unde sunt poziționate stațiile mijloacelor de transport în comun.
În zona Tei găsești mai multe grădinițe și școli. Printre unitățile de învățământ din cartier se numără Școala Gimnazială nr. 28 din zona Parcului Circului și Școala Gimnazială nr. 31 de pe Bulevardul Lacul Tei. Tot aici se află și Liceul Teoretic Traian și Universitatea Tehnică de Construcții din București, una dintre cele mai importante instituții de învățământ superior din Capitală. Consultă harta pentru mai multe opțiuni.
Dacă te muți în cartierul Tei, cel mai ușor îți poi face cumpărăturile în zona Obor. Ai acolo atât magazinul Bucur Obor, cât și halele și piața Obor. Imediat lângă acestea se află mall-ul Veranda care include un hipermarket Carrefour. La doi pași găsești și magazinul Kaufland Colentina. O altă zonă comercială, care include un magazin Kaufland cu o mică galerie comercială și un Carrefour Market, este localizată pe Strada Barbu Văcărescu. De aici ajungi foarte repede și la mall-ul Promenada. Centrul comercial Pipera Plaza poate fi, de asemenea, o opțiune bună pentru tine, mai ales dacă lucrezi în zona Pipera. Cuprinde mai mulți retaileri, câteva restaurante și cafenele. Consultă harta și vezi unde poți să-ți faci cumpărăturile, dacă te muți în cartierul Tei.
Îți recomandăm să te interesezi dacă poți închiria un loc de parcare în apropierea locuinței dorite. Trebuie să apelezi în acest sens la Biroul Parcări din cadrul ADP Sector 2. Este important, totodată, să știi că dacă te deplasezi cu mașina vei întâlni aglomerație în trafic în zona Străzii Doamna Ghica, în special la intersecția dintre aceasta, Bulevardul Lacul Tei și Strada Petricani. Intersecția se află pe ruta directă spre polul de business Pipera. De menționat este și faptul că în zona Fabrica de Glucoză - Petricani de la marginea cartierului există autostrada urbană. Practic, ai o legătură directă cu A3 București - Ploiești. Trafic îngreunat apare și la intersecția dintre Șoseaua Ștefan cel Mare și Strada Lizeanu, iar în zona intersecției Doamna Ghica există un proiect extensiv în lucru pentru realizarea unui pasaj rutier suprateran.
Dacă te vei muta în zona Tei, vei avea în apropierea casei tale mai multe parcuri și locuri de joacă. Parcul Lacul Tei cuprinde numeroase atracții pentru cei mici și o roată mare de unde te poți bucura de priveliști frumoase ale orașului. În zona Parcului Studențesc Tei vei găsi săli de fitness, cluburi de lux, terenuri sportive și Stadionul Studențesc, iar în partea de sud a cartierului Parcul Circului și Circul Metropolitan București (fostul Globus). În vecinătatea lor se află Stadionul Dinamo. Parcul Plumbuita poate fi o altă opțiune pentru a petrece o după-amiază liniștită în aer liber. Cel mai apropiat mall la care vei avea acces este Veranda. Aici vei putea merge la un cinema VR sau îți vei putea duce copilul la un loc de joacă indoor. Ajungi destul de rapid și la mall-ul Promenada. Dacă nu te deranjează să mergi câteva minute cu mașina, atunci trebuie să știi că ajungi destul de rapid la mall-ul Promenda, dar și în Piața Victoriei unde găsești mai multe muzee. Îți poți lăsa mașina în parcarea publică aflată aici și poți face o mică plimbare pe Calea Victoriei. Găsești destul de multe obiective de vizitat în zonă și ai și unde să faci un popas la o cafea. Pentru o experiență inedită îți recomandăm o scurtă plimbare cu mașina până în cartierul Primăverii. Aici vei putea să vizitezi Palatul Primăverii, fosta reședință grandioasă a lui Nicolae Ceaușescu. Atenție, însă, ai nevoie de rezervare în avans. Află ce alte puncte de interes găsești în zona Tei și în împrejurimi de pe hartă.
Printre cele mai apropiate unități medicale la care vei putea apela, dacă te vei muta în zona Tei, se numără Spitalul Clinic Colentina și Institutul Național de Boli Infecțioase Prof. Dr. Matei Balș, ambele situate în vecinătatea Parcului Circului. La intersecția dintre Strada Barbu Văcărescu și Șoseaua Ștefan cel Mare vei găsi, totodată, Spitalul Sf. Ștefan. În imediata apropiere a acestuia se află și Spitalul Clinic de Urgență București și Spitalul Euroclinic din rețeaua privată Regina Maria. Consultă harta pentru a vedea unde sunt localizate clinicile private din cartier și din împrejurimi.
Găsești o serie de restaurante și baruri în zona Parcului Verdi și pe malul Lacului Tei. De altfel, există și mai multe săli de evenimente cu ieșire la lac sau situate în imediata sa vecinătate. Din zona Tei ajungi foarte rapid și la numeroasele terase, cafenele și restaurante aflate pe Calea Floreasca sau în Dorobanți. Restaurante de tip fast food găsești în zona Obor din apropiere. Ai câteva opțiuni pentru o gustare și în incinta Veranda Mall. Iar dacă îți dorești mai multă diversitate, poți oricând să mergi cu mașina până la Promenada Mall. Ajungi în doar câteva minute. Consultă harta. Află care este cel mai apropiat local de viitoarea ta locuință din zona Tei.
Găsești mai multe sucursale bancare în zona intersecției Doamna Ghica, lângă intrarea în Parcul Plumbuita. Altele pe Bulevardul Lacul Tei care traversează cartierul. Consultă harta și află unde găsești cel mai apropiat bancomat.
Înainte să pleci...
Ești sigur că ai văzut și aceste proprietăți?
520.500 € + TVA
București, Barbu Văcărescu
4 camere
132 mp
Etaj 6 / 7
570.000 €
București, Barbu Văcărescu
4 camere
121 mp
Etaj 6 / 8
595.000 € + TVA
București, Barbu Văcărescu
4 camere
142 mp
Etaj 15 / 19
Creează alertă
Salvează căutarea ca să primești pe email ultimele anunțuri publicate
Apartamente noi cu 3 camere de vânzare în zona Barbu Văcărescu, Sector 2
Cere detalii prin email
*
*
*
*
Detaliile tale de contact vor fi partajate cu Trust Group Real Estate
Statistici proprietate
Apartamente 3 camere de vânzare
- București
- Zona Barbu Văcărescu
Asigurare de viață/lună Costul este variabil. În funcție de banca aleasă, procentul variază între 0.0259% și 0.035% din soldul creditului.
Costuri cu achiziția25.222 RON
Comision agenție Întreabă agenţia
Onorariu notarial17.573 RON
Taxă întabulare OCPI4.203 RON
Autentificare contract credit3.446 RON
Preț de achiziție2.801.704 RON
Preț locuință2.801.704 RON
TVA 0%Inclus în prețul cerut
Preț de achiziție2.801.704 RON
Preț locuință2.801.704 RON
TVA 0%
Inclus în prețul cerut
Avans minim2.195.506 RON
Credit pe 30 de ani606.198 RON
Cost achitat în prima lună
Taxa evaluare imobil(până la)
575 RON
Rata lunară (variabilă)4.259 RON
Depozit colateral12.777 RON
Comision de garantare FNGCIMM233 RON
Asigurare anuală imobil2.802 RON
Poliță PAD130 RON
Tarif arhivă electronică102 RON
Costuri adiționale2.942 RON + taxe notariale
Asigurare viață și complexă (opțională)Costul este variabil. În funcție de banca aleasă, procentul variază între 0.0259% și 0.035% din soldul creditului
Onorariu notarialconform tarif notarial
Taxă întabulare OCPI2.942 RON
i
Toate valorile de mai sus sunt estimative și nu reprezintă în mod obligatoriu costurile exacte pe care le veți primi de la companiile/instituțiile prin care veți încheia tranzacția.