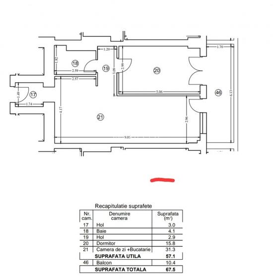
SunLake Residence, 2 camere, 67,5 mp, terasa 10 mp

110.000 € + TVA

Colentina, București

Nr. cam.:
2
Sup. utilă:
57 mp
Etaj:
6 / 11
An constr.:
2025 (Finalizată)
  • • Comision 0%
  • • Exclusivitate
  • • Locație exactă

Descriere apartament

Lacul Fundeni - SunLake Residence Zona linistita cu spatii verzi, pe malul Lacului Fundeni, situata intre Colentina si Pantelimon, la doar cateva minute de Spitalul si Institutul Fundeni. Apartament modern, bine compartimentat, amplasat intr-un bloc nou, retras de la strada. Interior elegant, cu finisaje moderne, bucatarie deschisa, camere inalte, ferestre panoramice, incalzire in pardoseala si o terasa de 10 mp. Facilitati: parc privat, promenada pe malul lacului, loc de joaca pentru copii, lobby inalt, 2 lifturi Schindler. Costuri reduse datorate surselor proprii de energie verde, panouri de preparare a apei calde, panouri fotovoltaice pentru eficienta energetica. La pretul afisat se adauga tva. Se poate achizitiona separat loc de parcare.
Citește mai mult Citește mai puțin
Confort 1 Semidecomandat Nemobilat Curte comună Centrală imobil Încălzire prin pardoseală

Detalii apartament

ID anunț: X7FU100KD Copiat! 269184294 Copiat!
Actualizat în: 06 Martie 2026
Suprafață construită: 77 mp
Nr. bucătării: 1
Nr. băi: 1
Structură rezistență: Beton
Tip imobil: Bloc de apartamente
Regim înălțime: D+P+11E

Utilități

Destinație
Rezidențial
Pereți
Vopsea lavabilă Faianță
Podele
Parchet Gresie
Ușă intrare
Metal
Uși interior
Celulare Lemn
Izolații termice
Exterior Bloc izolat termic
Ferestre cu geam termopan
PVC
Contorizare
Apometre
Diverse
Senzor de fum Telecomandă poartă acces auto
Facilități imobil
Videointerfon Lift
Utilități
Curent Apă Canalizare
Amenajare străzi
Asfaltate Iluminat stradal Mijloace de transport în comun

Certificat energetic:

Clasa energetică: A

Disponibilitate proprietate:

imediat

Puncte de interes

Mijloace transport
bus-station
Statia Intrarea Fundeni, linia 253
Stații autobuz aprox. 244 m
tram-station
Soseaua Morarilor
Stații tramvai aprox. 803 m
trolleybus-station
Statia Baicului, linia 69,85
Stații troleibuz aprox. 1611 m
metro-station
Metrou Costin Georgian
Stații metrou aprox. 1660 m
Școală
kindergarten
Gradinita
Gradinițe aprox. 648 m
school
Scoala Nr. 62 (Noua)
Școli aprox. 649 m
kindergarten
Gradinita numarul 280
Gradinițe aprox. 921 m
university
Facultatea de Pompieri
Universități aprox. 1308 m
Recreere
park
Parcul Sfantul Pantelimon
Parcuri aprox. 488 m
supermarket
XXL Megadiscount - Fundeni
Supermarket aprox. 530 m
sports-ground
Teren sportiv
Terenuri sport aprox. 858 m
public-square
Intersectia Socului
Piețe publice aprox. 887 m

Detalii despre preț și costuri

Prețul pe piață

Preț cerut: 110.000 €

Preț min. zonă 64.000 €
Preț max. zonă 169.000 €

51% dintre proprietățile similare ca zonă și nr. camere au prețul cerut mai mare. mai multe...

Bine de știut: prețul unei proprietăți este influențat și de alte caracteristici, cum ar fi: vechime, localizare, vecinătăți, suprafață, compartimentare, amenajări, dotări, etc. mai puțin...

Costuri cu achiziția

Fără credit
7.471 RON
Credit ipotecar
9.148 RON
Noua casă
818 RON+ taxe notariale

i

Costuri adiționale mai puțin știute la achiziție: taxe notariale, comisioane etc.

Proprietăți recomandate

Detalii de contact

IMOREPER

Bogdan Gutu Consultant imobiliar Realtor SRS

IMOREPER

Abonează-te la newsletter să fii primul care primește cele mai noi recomandări de proprietăți și sfaturi de la experți.

CONTACT

Creează alertă

Salvează căutarea ca să primești pe email ultimele anunțuri publicate

Apartamente noi cu 2 camere de vânzare în zona Colentina, Sector 2