16

Apartament cu 3 camere-zona Colentina/McDonald's-parter

86.500 €

Colentina, București

Nr. cam.:
3
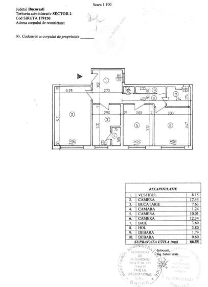
Sup. utilă:
67 mp
Etaj:
Parter / 10
An constr.:
1975 (Finalizată)
  • • Locație exactă
  • • Proprietate nelocuită

Descriere apartament

Apartament cu 3 camere-zona Colentina/situat la parter, fara balcon, bloc reabilitat termic-an constructie 1975, cu o suprafata de: 666,55 mp, intrare stradala, vedere pe spate, decomandat, acces usor la A3. APARTAMENTUL NECESITA RENOVARE.
Citește mai mult Citește mai puțin
Confort 1 Decomandat Nemobilat Calorifere Termoficare Necesită renovare

Detalii apartament

ID anunț: X4RM001KT Copiat! 273201481 Copiat!
Actualizat în: 16 Martie 2026
Suprafață utilă totală: 67 mp
Suprafață construită: 70 mp
Nr. bucătării: 1
Nr. băi: 1
Structură rezistență: Beton
Tip imobil: Bloc de apartamente
Regim înălțime: S+P+10E

Utilități

Destinație
Rezidențial Birouri
Pereți
Vopsea lavabilă Faianță
Podele
Mochetă Gresie Linoleum
Ușă intrare
Lemn
Uși interior
Lemn
Izolații termice
Exterior
Ferestre cu geam termopan
PVC
Contorizare
Contor căldură Apometre
Facilități imobil
Lift Interfon
Utilități
Curent Canalizare Apă
Amenajare străzi
Asfaltate Betonate Iluminat stradal Mijloace de transport în comun
Comision
2%

Vecinătăți:

multiple magazine, institutii bancare, farmacii, Lacul Colentina, parc Plumbuita, scoli, parcuri, Lidl, Kaufland, piata, mijloace de transport in comun, metrou Obor la 15 minute, etc.

Disponibilitate proprietate:

LIBER

Puncte de interes

Mijloace transport
bus-station
Statia "Pod Colentina", Liniile 182,254,682,108,253 si 409
Stații autobuz aprox. 135 m
tram-station
Statia "Pod Colentina", tramvai 21
Stații tramvai aprox. 141 m
bus-station
Statie RATB
Stații autobuz aprox. 268 m
trolleybus-station
Statia Doamna Ghica, linia 66
Stații troleibuz aprox. 642 m
Școală
school
Facultatea de Constructii
Școli aprox. 232 m
school
SCOALA SI MOSCHEE AL-QUDS
Școli aprox. 289 m
university
Universitatea Lumina
Universități aprox. 360 m
kindergarten
Gradinita numarul 137
Gradinițe aprox. 430 m
Recreere
supermarket
Mega Image Colentina Non-Stop
Supermarket aprox. 94 m
park
Parc
Parcuri aprox. 119 m
sports-ground
Teren sportiv
Terenuri sport aprox. 255 m
hypermarket
Carrefour
Hipermarket aprox. 1989 m

Detalii despre preț și costuri

Prețul pe piață

Preț cerut: 86.500 €

Preț min. zonă 83.000 €
Preț max. zonă 208.000 €

89% dintre proprietățile similare ca zonă și nr. camere au prețul cerut mai mare. mai multe...

Bine de știut: prețul unei proprietăți este influențat și de alte caracteristici, cum ar fi: vechime, localizare, vecinătăți, suprafață, compartimentare, amenajări, dotări, etc. mai puțin...

Costuri cu achiziția

Fără credit
14.288 RON
Credit ipotecar
15.725 RON
Noua casă
581 RON+ taxe notariale

i

Costuri adiționale mai puțin știute la achiziție: taxe notariale, comisioane etc.

Proprietăți recomandate

Detalii de contact

MA-CRI IMOB INVEST

Administrator

4.00(3 review-uri)

MA-CRI IMOB INVEST

Abonează-te la newsletter să fii primul care primește cele mai noi recomandări de proprietăți și sfaturi de la experți.

CONTACT

Creează alertă

Salvează căutarea ca să primești pe email ultimele anunțuri publicate

Apartamente cu 3 camere de vânzare în zona Colentina, Sector 2