REA1027283 Apartament 3 camere II Loc de parcare II Ghica Apartments

250.000 €

Doamna Ghica, București

Nr. cam.:
3
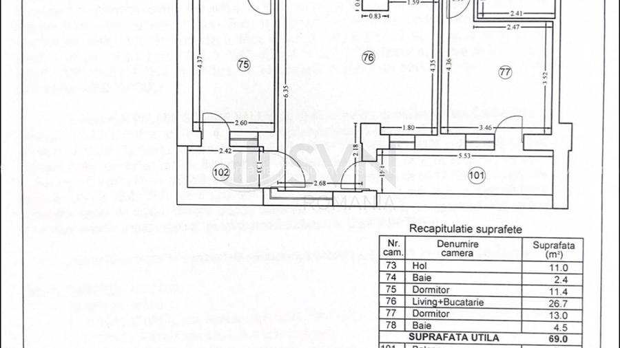
Sup. utilă:
80 mp
Etaj:
1 / 6
An constr.:
2024 (Finalizată)
  • • Locație aproximativă
  • • Vizionare prin apel video

Descriere apartament

SVN Romania va propune spre vanzare un apartament spatios cu 3 camere, situat in zona Doamna Ghica, cu acces facil catre principalele puncte de interes ale Bucurestiului. Apartamentul este amplasat intr-un imobil nou, finalizat in anul 2024, intr-o zona linistita, cu acces securizat si circuit inchis, fiind potrivit pentru familii care isi doresc confort si siguranta. Proprietatea are o suprafata generoasa de aproximativ 80 mp si este compartimentata eficient, fiind compusa din living si doua dormitoare. Apartamentul este situat la etajul 1 din 6, intr-o comunitate formata preponderent din familii tinere, si beneficiaza de doua balcoane spatioase. Apartamentul se vinde complet mobilat si utilat, cu mobilier personalizat, incluzand paturi duble, dressinguri generoase, canapea extensibila si masa de dining. Bucataria este complet echipata cu plita, hota, cuptor si frigider. Confortul termic este asigurat prin centrala termica proprie si doua unitati de aer conditionat marca Midea. Locatia ofera acces rapid catre mijloacele de transport in comun, aflate la aproximativ 2 minute de mers pe jos, precum si catre multiple facilitati urbane: scoli, gradinite, afterschool-uri, farmacii, Mega Mall, Lidl, supermarketuri si locuri de joaca amenajate pentru copii. Pretul de vanzare include TVA. Pentru mai multe detalii sau pentru a programa o vizionare, contactul meu va sta la dispozitie.
Citește mai mult Citește mai puțin
Confort 1 Semidecomandat Acceptă animale de companie Mobilat 2 Balcoane / Terase / Logii Aer condiționat Calorifere Centrală proprie

Detalii apartament

ID anunț: X658006RP Copiat! 275277472 Copiat!
Actualizat în: 13 Martie 2026
Suprafață utilă totală: 80 mp
Suprafață construită: 92 mp
Nr. bucătării: 1
Nr. băi: 1
Structură rezistență: Beton
Tip imobil: Bloc de apartamente
Regim înălțime: P+6E

Utilități

Destinație
Rezidențial
Pereți
Faianță
Podele
Gresie Parchet
Izolații termice
Exterior
Ferestre cu geam termopan
PVC
Contorizare
Apometre
Bucătărie
Mobilată
Alte spații utile
WC Serviciu
Facilități imobil
Interfon Lift
Utilități
Gaze Curent
Servicii imobil
Supraveghere video Pază
Comision
Standard

Vicii:

Fără vicii.

Disponibilitate proprietate:

Disponibil din 25/02/2026.

Puncte de interes

Mijloace transport
trolleybus-station
Statia Baicului, linia 69,85
Stații troleibuz aprox. 694 m
bus-station
Statia Soseaua Iancului, linia 101
Stații autobuz aprox. 720 m
tram-station
Soseaua Iancului
Stații tramvai aprox. 732 m
train-station
Gara Obor Bucuresti-EST
Stații tren aprox. 858 m
Școală
kindergarten
Gradinita numarul 280
Gradinițe aprox. 728 m
school
Gradinita Nr. 36
Școli aprox. 728 m
kindergarten
Gradinita Nr. 36
Gradinițe aprox. 728 m
university
Facultatea de Pompieri
Universități aprox. 1875 m
Recreere
park
Parculet Baicului
Parcuri aprox. 266 m
supermarket
Lidl
Supermarket aprox. 392 m
sports-ground
Mese de Ping Pong
Terenuri sport aprox. 486 m
public-square
Intersectia Socului
Piețe publice aprox. 928 m

Detalii despre preț și costuri

Prețul pe piață

Preț cerut: 250.000 €

Preț min. zonă 83.000 €
Preț max. zonă 208.000 €

i

Proprietate cu prețul cerut în afara intervalului mai multe...

Posibile explicații pentru faptul că prețul proprietății este peste cel maxim: imobil nou cu suprafață mare, are dotări și finisaje de lux.
Bine de știut: prețul unei proprietăți este influențat și de alte caracteristici, cum ar fi: vechime, localizare, vecinătăți, suprafață, compartimentare, amenajări, dotări, etc.

Costuri cu achiziția

Fără credit
11.484 RON
Credit ipotecar
13.658 RON
Noua casă
1.414 RON+ taxe notariale

i

Costuri adiționale mai puțin știute la achiziție: taxe notariale, comisioane etc.

Proprietăți similare

Apartament cu 3 camere decomandat în Doamna Ghica
265.000 €
București, Doamna Ghica
3 camere
89 mp
Etaj 3 / 3
Apartament cu 4 camere în Doamna Ghica
230.000 € + TVA
București, Doamna Ghica
4 camere
114 mp
Etaj 6
Apartament cu 3 camere decomandat, mobilat în Doamna Ghica
235.000 €
București, Doamna Ghica
3 camere
83 mp
Etaj 2 / 14

Detalii de contact

SVN Romania | Residentialist | Victoriei

Anamaria Enoiu Associated Advisor

SVN Romania | Residentialist | Victoriei
PRO

Abonează-te la newsletter să fii primul care primește cele mai noi recomandări de proprietăți și sfaturi de la experți.

CONTACT

Creează alertă

Salvează căutarea ca să primești pe email ultimele anunțuri publicate

Apartamente noi cu 3 camere de vânzare în zona Doamna Ghica, Sector 2