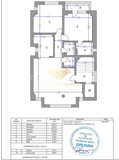
Va prezentam o proprietate tip apartament cu 3 camere, decomandat, situata in Bucuresti, zona Obor, intr-un imobil tip bloc construit in anul 2020, la etajul 1 din 5.
Apartamentul dispune de o suprafata totala de 107 mp si este compartimentat eficient, oferind un echilibru optim intre zona de zi si cea de noapte.
Compartimentare:
3 camere
1 bucatarie
2 bai
1 balcon
Finisaje si dotari:
pereti finisati cu vopsea lavabila si faianta
pardoseli din parchet si gresie
ferestre cu tamplarie termopan
sistem de incalzire prin pardoseala
Contorizare individuala:
apometre
contor caldura
contor gaz
contor energie electrica
Imobilul beneficiaza de:
interfon si videointerfon
sistem de supraveghere video
lift
Utilitati generale: curent electric, apa, canalizare, gaz.
Proprietatea este amplasata intr-o zona excelent conectata, in imediata apropiere regasindu-se Metrou Obor, Piata Obor si Mall Veranda, precum si numeroase spatii comerciale, financiare, educationale, medicale si de relaxare.
Acces rapid si facil catre mijloacele de transport in comun, ceea ce face aceasta proprietate potrivita atat pentru locuire, cat si pentru investitie.
64%dintre proprietățile similare ca zonă și nr. camere au prețul cerutmai mic.
mai multe...
Bine de știut: prețul unei proprietăți este influențat și de alte caracteristici, cum ar fi: vechime, localizare, vecinătăți, suprafață, compartimentare, amenajări, dotări, etc.
mai puțin...
Costuri cu achiziția
Fără credit
57.206 RON
Credit ipotecar
59.550 RON
Noua casă
1.618 RON+ taxe notariale
i
Costuri adiționale mai puțin știute la achiziție: taxe notariale, comisioane etc.
Sediul central - Timișoara
Bulevardul Victor Babeș nr. 2, 300230, Timișoara, România
Tel: +40.374.40.44.98 / Fax: +40.256.401.179
Email: suport@imobiliare.ro
Luni - Vineri 08:00 - 20:00
Punct de lucru - București: Iride Business Park, Bld. Dimitrie
Pompeiu 9-9A, Clădirea B2B,
020335, Sector 2, București, România
CONTACT
Sediul central - Timișoara
Bulevardul Victor Babeș nr. 2, 300230, Timișoara, România
Tel: +40.374.40.44.98 / Fax: +40.256.401.179
Email: suport@imobiliare.ro
Luni - Vineri 08:00 - 20:00
Punct de lucru - București: Iride Business Park, Bld. Dimitrie
Pompeiu 9-9A, Clădirea B2B,
020335, Sector 2, București, România
Statia Piata Rosetti linii : 61,66,69,70,85,90,91,92,336,601.
aprox.
995 m
Oborul Nou
aprox.
1060 m
Statia Foisorul de Foc linii : 79,86
aprox.
554 m
Statia Mihai Bravu; Liniile:69, 85,
aprox.
1277 m
Statia Soseaua Mihai Bravu, linia 68,85
aprox.
1312 m
Statia Calea Dorobantilor; Liniile:79, 86,
aprox.
1340 m
Statia Piata Iancului, linia 55
aprox.
1451 m
Statia Piata Romana linii : 79,86
aprox.
1487 m
Statia Soseaua Pantelimon 85, 69
aprox.
1686 m
Statia Teiul Doamnei, linia 66
aprox.
1966 m
Metrorex. Stația Universitate (M2)(1987)
aprox.
1100 m
Universitate (M2)
aprox.
1123 m
Statia Metrou Piata Universitatii(M2)Metrorex
aprox.
1144 m
Statia Metrou Piata Universitatii(M2)Metrorex
aprox.
1163 m
Metrorex. Stația Obor (M1)(1989)(Fosta statie de tramvai subterana)
aprox.
1232 m
Statia Metrou Piata Obor(M1)Metrorex
aprox.
1250 m
Statia Soseaua Mihai Bravu, linia 14
aprox.
1312 m
Statia Metrou Piata Romana(M2)Metrorex
aprox.
1338 m
Metrorex. Stația Piața Romană (M2)(1988)
aprox.
1372 m
Piata Romana (M2)
aprox.
1372 m
Statia Metrou Piata Romana(M2)Metrorex
aprox.
1398 m
Metrorex. Stația Ștefan cel Mare (M1)(1989)
aprox.
1499 m
Metrorex. Stația Piața Unirii 2 (M2) (en)
aprox.
1616 m
Piata Unirii 2
aprox.
1698 m
Metrorex. Stația Piața Unirii 2 (M2)(1986)
aprox.
1711 m
Grădinița (en)
aprox.
176 m
Scoala nr. 23
aprox.
176 m
Școala Nr. 23 Sf. Silvestru (en)
aprox.
182 m
Cursuri Paleologu
aprox.
210 m
Scoala Ajutatoare nr. 1
aprox.
374 m
Colegiul National Bilingv "George Cosbuc"
aprox.
374 m
Colegiul National "Cantemir-Voda"
aprox.
477 m
Colegiul Economic Hermes
aprox.
499 m
Scoala Generala "Iovan Ducici", Nr 71
aprox.
515 m
Scoala de Arte si Meserii Nr. 3
aprox.
529 m
GRADINITA DE COPII NR. 8 "LICURICI"
aprox.
553 m
ȘCOALA DE ARTE ȘI MESERII NR. 3
aprox.
573 m
Gradinita Montessori
aprox.
580 m
Scoala de muzica nr. 4
aprox.
622 m
Liceul Economic nr.3. A.D. Xenopol
aprox.
643 m
Gradinita numarul 8
aprox.
372 m
Gradinita numarul 257
aprox.
446 m
Gradinita
aprox.
479 m
Gradinita Magica
aprox.
684 m
Gradinita numarul 133
aprox.
749 m
Gradinita nr.4 "Lizuca"
aprox.
825 m
Gradinita nr.203 (fosta Clementa)
aprox.
884 m
Gradinita nr. 203 program prelungit
aprox.
899 m
Gradinita Ioanid
aprox.
932 m
Ioanid
aprox.
951 m
Amalia's Kindergarten (en)
aprox.
965 m
Gradinita Waldorf
aprox.
1019 m
Gradinita nr. 138 cu program prelungit
aprox.
1268 m
Montessori Kindergarden of Bucharest
aprox.
1351 m
Gradinita nr. 85
aprox.
1406 m
Universitatea din Bucuresti - Facultatea de Stiinte Politice
aprox.
537 m
Facultatea de Stiinte Politice
aprox.
547 m
Facultatea de Farmacie
aprox.
976 m
Facultatea de Instalatii (en)
aprox.
981 m
Rectoratul UMF "Carol Davila"
aprox.
983 m
Facultatea de Farmacie/Pharmacy Faculty
aprox.
984 m
University of Bucharest - Faculty of Foreign Languages and Literatures (en)
aprox.
1067 m
Centrul de Limbi Straine Ariel
aprox.
1075 m
CROS - Universitatea Alternativa
aprox.
1153 m
Facultatea de Chimie
aprox.
1182 m
Facultatea de Limbi si Literaturi Straine
aprox.
1213 m
Facultatea de litere (en)
aprox.
1218 m
UAUIM -Universitatea de Arhitectura si Urbanism Ion Mincu
aprox.
1225 m
Facultatea de Istorie
aprox.
1275 m
Facultatea de Matematica-Informatica
aprox.
1305 m
Mega Image Concept Store
aprox.
426 m
Mega Image
aprox.
477 m
Mega Image
aprox.
489 m
Mega Image Paleologu
aprox.
595 m
OK Non-stop Supermarket (en)
aprox.
619 m
OK Non-Stop
aprox.
619 m
Mega Image - Icoanei
aprox.
621 m
Mega Image Fainari
aprox.
929 m
Mega Image - Hala Traian
aprox.
1037 m
Pravalia Maestrului
aprox.
1066 m
Bacania Coco
aprox.
1088 m
Mega Image Rosetti Non-Stop
aprox.
1091 m
Spectrum
aprox.
1121 m
ilanplant
aprox.
1146 m
Mega Image
aprox.
1155 m
"METROPLIS CENTER"
aprox.
1814 m
Parcare
aprox.
482 m
Parcare
aprox.
595 m
Parcare
aprox.
602 m
Parcare
aprox.
655 m
Parcare
aprox.
740 m
Parcare
aprox.
796 m
Parcare cu plata
aprox.
887 m
Parcare
aprox.
973 m
Parcare
aprox.
977 m
Parcare
aprox.
1012 m
Parcare
aprox.
1015 m
Parcare
aprox.
1016 m
Parcare
aprox.
1020 m
Parcare
aprox.
1025 m
Parcare
aprox.
1032 m
Parc
aprox.
384 m
Parcul Izvorul Rece
aprox.
413 m
Parcul Izvorul Rece
aprox.
413 m
Parc
aprox.
437 m
Parc
aprox.
449 m
Parc
aprox.
563 m
Parc
aprox.
565 m
Parc
aprox.
576 m
Parcul Popa Soare
aprox.
580 m
Parcul Izvorul Rece
aprox.
580 m
60 Minutes
aprox.
681 m
Spatiu verde
aprox.
821 m
Parcul Sf. Stefan
aprox.
827 m
Piata Sfantul Stefan
aprox.
827 m
Parc
aprox.
839 m
Piata Latina
aprox.
386 m
Piata Rosetti
aprox.
829 m
Piata Universitatii
aprox.
1086 m
Piata Bucur Obor
aprox.
1288 m
Piata Revolutiei
aprox.
1328 m
Piata Roma
aprox.
1376 m
Piata Timpului
aprox.
1424 m
Piața Drapelului (Tricolorului)
aprox.
1470 m
Piața Romană
aprox.
1512 m
Piata Iancului
aprox.
1538 m
Piața Sfântul Anton
aprox.
1564 m
Piata Natiunilor Unite
aprox.
1912 m
Teren sportiv
aprox.
1223 m
Teren sportiv
aprox.
1275 m
Teren sportiv
aprox.
1406 m
Respawn B
aprox.
1439 m
Etaj 1 - Hala CQB
aprox.
1518 m
Parter - Hala mare
aprox.
1522 m
Gradinita
aprox.
1546 m
Respawn A
aprox.
1567 m
Stadionul Dinamo
aprox.
1775 m
Teren sportiv
aprox.
1914 m
Teren sportiv
aprox.
1939 m
Teren sportiv
aprox.
1954 m
Farmacia Carmen
aprox.
255 m
Colvimed
aprox.
342 m
Farmadex Non-Stop
aprox.
403 m
Farmacia Ana Maria
aprox.
423 m
Farmacia Belladonna 38
aprox.
492 m
Sensiblu
aprox.
522 m
Sensiblu
aprox.
526 m
Help Net Farma
aprox.
531 m
Farmacia Artafarm
aprox.
574 m
Catena Farmacie
aprox.
589 m
Farmacia Mea
aprox.
674 m
Farmacia Alissa Retail
aprox.
688 m
Farmacia Artafarm
aprox.
748 m
Farmacia Tarsis Impex
aprox.
774 m
Farmacia Apifarm
aprox.
899 m
Clinica de oftalmologie Ama Optimex
aprox.
283 m
INGG Ana Aslan Spatarului nr. 15 (en)
aprox.
320 m
Optim Sano
aprox.
328 m
Centrul medical Sanatatea TA
aprox.
352 m
Cabinet Gineco
aprox.
379 m
ProctoMed
aprox.
464 m
SERVICIUL DE AMBULANTA BUCURESTI-ILFOV
aprox.
476 m
Institutul de Diabet NCPaulescu (en)
aprox.
495 m
Spitalul Cantacuzino
aprox.
561 m
Spitalul de ortopedie "Foisorul de foc"
aprox.
590 m
Cabinet stomatologic (en)
aprox.
650 m
Clinica de 10
aprox.
678 m
Centrul Medical Pop de Basesti
aprox.
683 m
Clinica Reumatologie "Dr. Ion Stoia"
aprox.
686 m
Dacia Medical Center
aprox.
691 m
Nicoresti
aprox.
150 m
Nicorești (en)
aprox.
157 m
Orasul Interzis
aprox.
187 m
Espace Minoux
aprox.
210 m
Restaurantul Burebista
aprox.
217 m
Restaurant Burebista Traditional
aprox.
224 m
Il Destino
aprox.
235 m
Ristorante Interbellico
aprox.
239 m
Luna
aprox.
319 m
Share Cafe
aprox.
349 m
Zepelin
aprox.
351 m
Restaurant Casa
aprox.
376 m
Rotiseria Dacia 131
aprox.
392 m
Four seasons
aprox.
398 m
Saormerie
aprox.
409 m
Bluzz
aprox.
337 m
Smart's Pub & Bistro
aprox.
382 m
Terasa Rustica Foisor
aprox.
600 m
Le Boutique Food Concept Store
aprox.
620 m
Have a Cigar
aprox.
732 m
Waldo's
aprox.
852 m
Club Surubelnita
aprox.
878 m
La Scena
aprox.
963 m
OLD NICK PUB
aprox.
1129 m
Panik & Pub
aprox.
1213 m
Clock`s
aprox.
1217 m
Manasia Hub
aprox.
1222 m
Coloseum
aprox.
1295 m
Open Pub
aprox.
1301 m
Edgar`s Pub
aprox.
1328 m
Trei Betivi
aprox.
361 m
MIM Bistro
aprox.
384 m
Geo Bar
aprox.
419 m
Antic Bar
aprox.
610 m
Voltage Bar
aprox.
614 m
E... Varza
aprox.
683 m
Dianei Patru
aprox.
749 m
RSS Pub
aprox.
795 m
Que Pasa
aprox.
827 m
Macaz Bar Teatru Coop
aprox.
855 m
La Pirati
aprox.
879 m
Alan Dala
aprox.
945 m
Epic
aprox.
952 m
Underworld
aprox.
962 m
Lokal
aprox.
1072 m
Carla Caffe
aprox.
445 m
Lente Arcului
aprox.
480 m
Cafe Lautrec
aprox.
610 m
Hobby Cafe
aprox.
667 m
Vesuvio Cafe
aprox.
742 m
Newton Caffe
aprox.
749 m
Hobby Caffe & Shop
aprox.
756 m
T-zero
aprox.
756 m
T-zone
aprox.
756 m
OstrawVegan
aprox.
824 m
Lente Praporgescu
aprox.
840 m
Tana de lupo
aprox.
867 m
The Living Room
aprox.
887 m
Shiva
aprox.
973 m
Hathor Cafe
aprox.
975 m
Piraeus Bank
aprox.
256 m
Libra Bank - Sediul Central
aprox.
266 m
Libra Bank Sediul Central
aprox.
276 m
BRD Corbeni
aprox.
298 m
Banca Transilvania - Ag. Mosilor
aprox.
337 m
BCR
aprox.
396 m
Leumi Bank
aprox.
396 m
Alpha Bank
aprox.
433 m
ING Mosilor
aprox.
442 m
BRD Vasile Lascar
aprox.
468 m
Emporki Bank
aprox.
469 m
Raiffeisen Bank - Agentia Mosilor
aprox.
492 m
Unicredit Tiriac bank
aprox.
545 m
UniCredit Bank - Ag. Traian
aprox.
554 m
Raiffaisen bank
aprox.
589 m
Zona Ștefan cel Mare - Dacia - Eminescu - Armenească este destul de bine conectată cu alte cartiere din București prin intermediul mijloacelor de transport în comun. Printre acestea amintim autobuzul 605 pe care îl poți lua pentru a ajunge la mall-ul Băneasa Shopping City, tramvaiul 16 care te poate ajuta să ajungi la Piața Sf. Vineri și troleibuzul 86 care oferă o legătură directă cu Gara de Nord. Mai multe stații de metrou sunt și ele disponibile în apropiere. Este vorba despre Ștefan cel Mare și Obor, aflate pe magistrala 1 Dristor - Pantelimon, și despre Piața Romană și Universitate situate pe traseul magistralei 2 Berceni-Pipera. Consultă harta pentru a afla poziționarea exactă a stațiilor mijloacelor de transport în comun.
În zona Ștefan cel Mare - Dacia - Eminescu - Armenească vei găsi mai multe unități de învățământ, de stat și private. Amintim astfel Colegiul Național Școala Centrală de lângă Parcul Grădina Icoanei, Colegiul Național "Spiru Haret" de pe Strada Italiană, Colegiul Național "Cantemir Vodă" și Liceul Economic "Virgil Madgearu", ambele situate pe Bulevardul Dacia. Școala Sanitară Postliceală "Carol Davila" se află și ea în această zonă, iar Academia de Studii Economice din București poate fi găsită în apropiere, la Piața Romană. Consultă harta pentru a vedea care vor fi cele mai apropiate grădinițe, școli și licee de viitoarea ta locuință.
În această zonă vei găsi, în principal, magazine mici și câteva supermarketuri. La intersecția dintre Bulevardul Dacia și Strada Vasile Lascăr vei avea la dispoziție Piața Gemeni și un concept store Mega Image. Cel mai apropiat mall este situat în zona Obor. Este vorba despre Veranda Mall, unul dintre cele mai noi astfel de centre comerciale din București. Tot aici găsești magazinul Bucur Obor și o piață. Cu mașina poți ajunge destul de rapid și la mall-ul Promenada sau la complexul comercial cu magazin Kaufland și Carrefour Market de pe Strada Barbu Văcărescu. Consultă harta și află ce alte opțiuni mai ai aproape de viitoarea ta casă, dar și în împrejurimi.
Îți recomandăm să verifici dacă există posibilitatea închirierii unui loc de parcare în apropierea locuinței de care ești interesat. Poți face acest lucru apelând la Serviciul Parcări din cadrul ADP Sector 2. Atunci îți aducem în atenție faptul că Bulevardul Dacia, Strada Mihai Eminescu și Strada Polonă sunt unele dintre cele mai circulate din această zonă. Trafic intens vei întâlni, totodată, la intersecția dintre Calea Dorobanți, Bulevardul Dacia și Strada Mihai Eminescu. Aglomerație vei găsi și pe Bulevardul Ștefan cel Mare, mai ales la orele de vârf și în zilele în care se organizează evenimente sportive în cadrul stadionului Dinamo. Consultă harta și vezi unde se găsesc principalele parcări din această zonă.
În zona Ștefan cel Mare - Dacia - Eminescu - Armenească se organizează periodic diferite evenimente, de la ateliere, la festivaluri și demonstrații de artă stradală. Dacă te vei muta în această parte a orașului, vei avea la doi pași de casă mai multe ceainării, restaurante, spații unde se organizează jocuri de tip escape room și trei teatre - Țăndărică, Metropolis și Bulandra. Pentru evenimente culturale și seri de film vei putea merge pe Bulevardul Dacia, la Institutul Francez din București. Ajungi repede și în centru, unde poți fi spectatorul unei piese puse în scenă de actorii Teatrului Național București. Parcurile Grădina Icoanei și Ioanid, deși sunt destul de restrânse ca suprafață, sunt unele dintre cele mai frumoase din această parte a orașului. Totodată, în nordul acestei zone, în imediata apropiere a Șoselei Ștefan cel Mare, vei găsi Circul Metropolitan București și parcul acestuia, iar în vecinătatea lor Stadionul Dinamo și complexul său sportiv. Nu uita, totodată, că din această zonă vei ajunge destul de rapid în Centrul Vechi, unde pe lângă terase și restaurante găsești și câteva obiective turistice care merită vizitate măcar o dată. Află ce alte puncte de interes găsești în zona Ștefan cel Mare - Dacia - Eminescu - Armenească și din vecinătatea acesteia. Consultă harta.
Dacă te vei muta în această zonă, vei avea la dispoziție mai multe spitale și clinici private. Printre acestea se numără Spitalul Clinic Dr. Ion Cantacuzino din zona Pieței Gemeni și Spitalul Ion Stroia . Alte unități sanitare din vecinătate sunt Spitalul Clinic Colentina, Spitalul Sf. Ștefan, Spitalul Clinic de Urgență București (cunoscut și ca Floreasca) și Spitalul Euroclinic din rețeaua privată de sănătate Regina Maria. Toate acestea sunt concentrate în nordul zonei Ștefan cel Mare - Dacia - Eminescu - Armenească, în vecinătatea Stadionului Dinamo și a Parcului Circului. Vezi pe hartă localizarea exactă a unităților medicale de mai sus.
Presărate pe străzile din această zonă găsești mai multe terase și restaurante mici. Câteva dintre cele mai cochete se află în vechiul cartier Armenesc. De aici ajungi extrem de repede și în Centrul Vechi al orașului, pentru mai multă diversitate. Fiind atât de aproape de centrul orașului, vei avea la dispoziție extrem de multe opțiuni. Restaurantele și cafenelele din Dorobanți sau de pe Calea Floreasca pot fi cu siguranță pe gustul tău. Dacă vrei să faci și o plimbare, să admiri arhitectura frumoasă a vechilor clădiri din București și să te oprești la o cafea sau la o prăjitură, atunci Calea Victoriei poate fi ideală. Pentru o mică gustare sau un meniu fast food ai mai multe variante în zona Obor, iar dacă te grăbești atunci poți încerca drive through-ul McDonald"™s de pe Strada Barbu Văcărescu. Aruncă o privire pe hartă și vezi ce alte restaurante, terase sau cafenele ai în zonă.
Găsești mai multe sucursale bancare și ATM-uri în special pe Șoseaua Ștefan cel Mare. Aruncă o privire pe hartă și vezi ce alte opțiuni găsești în apropierea viitoarei tale locuințe.
Înainte să pleci...
Ești sigur că ai văzut și aceste proprietăți?
265.000 €
București, Eminescu
3 camere
90 mp
Etaj 5
290.000 € + TVA
București, Eminescu
3 camere
76,2 mp
Etaj 4
300.000 €
București, Eminescu
5 camere
135 mp
Parter / 1
Creează alertă
Salvează căutarea ca să primești pe email ultimele anunțuri publicate
Apartamente cu 3 camere de vânzare în zona Eminescu, Sector 2
Cere detalii prin email
*
*
*
*
Detaliile tale de contact vor fi partajate cu Trust Group Estate
Statistici proprietate
Apartamente 3 camere de vânzare
250.000 €
Medie preț cerut la vânzare
2.760 €/mp
Medie preț cerut pe metru pătrat
1.200 €
Medie chirie lunară
Preț total1.535.394 RON (301.223 €)
Costuri cu achiziția57.206 RON
Preț de achiziție1.478.188 RON
Costuri cu achiziția57.206 RON
Comision agenție 3%44.346 RON
Onorariu notarial10.643 RON
Taxă înscriere OCPI2.217 RON
Preț de achiziție1.478.188 RON
Preț locuință1.478.188 RON
TVA 0%Inclus în prețul cerut
Cost total284.213 RON (55.758 €)
Avans (15%)221.728 RON
Cost achitat în prima lună2.935 RON
Costuri cu achiziția59.550 RON
Cost achitat în prima lună2.935 RON
Comision analiză dosar
400 RON - 900 RON
Taxă evaluare imobil(până la)
575 RON
Rata lunară (variabilă)6.585 RON
Asigurare anuală imobil1.478 RON
Arhivă electronică102 RON
Poliță PAD130 RON
Asigurare de viață/lună Costul este variabil. În funcție de banca aleasă, procentul variază între 0.0259% și 0.035% din soldul creditului.
Costuri cu achiziția59.550 RON
Comision agenție 3%44.346 RON
Onorariu notarial10.643 RON
Taxă întabulare OCPI2.217 RON
Autentificare contract credit2.344 RON
Preț de achiziție1.478.188 RON
Preț locuință1.478.188 RON
TVA 0%Inclus în prețul cerut
Preț de achiziție1.478.188 RON
Preț locuință1.478.188 RON
TVA 0%
Inclus în prețul cerut
Avans minim871.621 RON
Credit pe 30 de ani606.567 RON
Cost achitat în prima lună
Taxa evaluare imobil(până la)
575 RON
Rata lunară (variabilă)4.262 RON
Depozit colateral12.786 RON
Comision de garantare FNGCIMM123 RON
Asigurare anuală imobil1.478 RON
Poliță PAD130 RON
Tarif arhivă electronică102 RON
Costuri adiționale1.618 RON + taxe notariale
Asigurare viață și complexă (opțională)Costul este variabil. În funcție de banca aleasă, procentul variază între 0.0259% și 0.035% din soldul creditului
Onorariu notarialconform tarif notarial
Taxă întabulare OCPI1.618 RON
i
Toate valorile de mai sus sunt estimative și nu reprezintă în mod obligatoriu costurile exacte pe care le veți primi de la companiile/instituțiile prin care veți încheia tranzacția.