Apartament spatios, situat la etajul 2 al unei vile deosebite, situata intro zona de mare interes a Bucurestiului, Dacia-Eminescu (Strada Alexandru Philippide, nr.4), extraordinar de bine compartimentat, asteapta sa fie renovat si amenajat conform designului si utilitatii necesare, viitorilor proprietari.
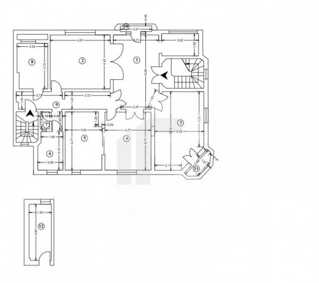
Apartamentul este compus din:
- 5 camere (3 dormitoare)
- Hol
- Bucatarie
- Baie, grup sanitar
- Vestibul
- Culoar
- 2 balcoane
- terasa acoperita
Dispunerea este intro compartimentare circulara, cu spatii foarte largi si aerisite.
Apartamentul are o suprafata utila de 132,9 mpu, 2 balcoane 1, 2 si 2,3 mpu, la care se adauga, o boxa (camera de serviciu la subsol), de 8,4 mp, suprafata totala fiind de 144,8 mp.
Tot in proprietate se afla o suprafata de 48, 47mp teren, situat sub constructie, din totalul terenului pe care s a edificat imobilul (curtea are o suprafata de 403mp, 208, 6mp fiind teren liber), precum si cota parte din dependintele si spatiile comune.
Apartamentul se vinde nerenovat, asteptandu si noii proprietari sa amenajeze,utilizand perfect spatiile ample ale proprietatii.
Extraodinar de elegant si cu stil, acest apartament se afla intro vila superba, datand din perioada interbelica, extrem de valoroasa, monument istoric, intro locatie deosebita, pe strada Alexandru Philippide.
Pentru mai multe detalii si stabilirea unei vizionari, nu ezitati sa ma contactati.
Multumesc,
Citește mai mult
Citește mai puțin
Confort lux
Circular
Acceptă animale de companie
Mobilat
2 Balcoane / Terase / Logii
Grădină
Curte comună
Aer condiționat
Calorifere
Centrală proprie
Beci
Necesită renovare
Sediul central - Timișoara
Bulevardul Victor Babeș nr. 2, 300230, Timișoara, România
Tel: +40.374.40.44.98 / Fax: +40.256.401.179
Email: suport@imobiliare.ro
Luni - Vineri 08:00 - 20:00
Punct de lucru - București: Iride Business Park, Bld. Dimitrie
Pompeiu 9-9A, Clădirea B2B,
020335, Sector 2, București, România
CONTACT
Sediul central - Timișoara
Bulevardul Victor Babeș nr. 2, 300230, Timișoara, România
Tel: +40.374.40.44.98 / Fax: +40.256.401.179
Email: suport@imobiliare.ro
Luni - Vineri 08:00 - 20:00
Punct de lucru - București: Iride Business Park, Bld. Dimitrie
Pompeiu 9-9A, Clădirea B2B,
020335, Sector 2, București, România
Gradinita cu program normal si prelungit Happy Kids
aprox.
1292 m
Gradinita
aprox.
1490 m
Gradinita de copii nr.251
aprox.
1674 m
Scoala de teatru
aprox.
158 m
Lexis scoli de limbi straine
aprox.
165 m
Colegiul Economic Virgil Madgearu
aprox.
249 m
Scoala Centrala
aprox.
371 m
Scoala Americana
aprox.
376 m
Școala Centrală din Bucuresti
aprox.
384 m
Cladirea Virgil Madgearu
aprox.
397 m
Cambridge School
aprox.
432 m
Cambridge School Of Bucharest (en)
aprox.
455 m
Scoala nr. 24
aprox.
510 m
Scoala generala nr. 24
aprox.
524 m
Scoala 186
aprox.
544 m
Scoala Generala Elena Vacarescu
aprox.
549 m
ASLS (en)
aprox.
618 m
Scoala de muzica nr. 4
aprox.
682 m
CROS - Universitatea Alternativa
aprox.
203 m
ASE - Cibernetica
aprox.
382 m
ASE Cibernetica (en)
aprox.
418 m
ASE - Facultatea de Comert
aprox.
421 m
Amfiteatrele ASE
aprox.
510 m
ASE - Cladirea Cihoschi
aprox.
516 m
ASE - Sala de sport
aprox.
528 m
Academia de Studii Economice
aprox.
532 m
ASE Cladirea Veche 1916 - 1926 (en)
aprox.
553 m
Rectoratul UMF "Carol Davila"
aprox.
556 m
University of Bucharest - Faculty of Foreign Languages and Literatures (en)
aprox.
628 m
Centrul de Limbi Straine Ariel
aprox.
632 m
Scoala Nationala de Studii Politice si Administrative (SNSPA)
aprox.
841 m
Scoala Nationala de Studii Politice si Administrative
aprox.
841 m
SNSPA
aprox.
876 m
Bacania Coco
aprox.
361 m
BILLA - Dorobanti
aprox.
425 m
Bila Supermarket
aprox.
454 m
Mega Image - Icoanei
aprox.
456 m
OK Non-stop Supermarket (en)
aprox.
579 m
OK Non-Stop
aprox.
579 m
Mega Image Magheru
aprox.
627 m
Mega Image Concept Store
aprox.
657 m
ilanplant
aprox.
664 m
Nik Non-Stop
aprox.
691 m
Mega Image Rosetti Non-Stop
aprox.
740 m
Mega Image Amzei Non-Stop
aprox.
763 m
Mega Image - IANCU DE HUNEDOARA
aprox.
785 m
Pravalia Maestrului
aprox.
1005 m
Mega Image
aprox.
1199 m
"METROPLIS CENTER"
aprox.
797 m
Parcare
aprox.
360 m
Parcare
aprox.
365 m
Parcare
aprox.
387 m
Parcare cu plata
aprox.
403 m
Parcare
aprox.
622 m
Parcare
aprox.
626 m
Parcare
aprox.
643 m
Parcare
aprox.
666 m
Parcare
aprox.
697 m
Parcare
aprox.
709 m
Parcare
aprox.
765 m
Parcare Subterana Metropolis Center
aprox.
799 m
Parcare
aprox.
857 m
Parcare
aprox.
864 m
Parcare
aprox.
885 m
Parcul "Ioanid"
aprox.
167 m
Parcul Ion Voicu
aprox.
170 m
Gradina Icoanei
aprox.
387 m
Parcul "Grădina Icoanei"
aprox.
387 m
Small park (en)
aprox.
402 m
Parc
aprox.
402 m
Parcul Piata Romana
aprox.
486 m
60 Minutes
aprox.
570 m
Parc
aprox.
656 m
Small park (en)
aprox.
667 m
Parc
aprox.
667 m
Parc
aprox.
673 m
Parc
aprox.
794 m
Perla park
aprox.
794 m
Parc
aprox.
797 m
Piața Romană
aprox.
561 m
Piata Revolutiei
aprox.
1004 m
Piata Rosetti
aprox.
1218 m
Piata Universitatii
aprox.
1224 m
Piata Latina
aprox.
1316 m
Piața Drapelului (Tricolorului)
aprox.
1414 m
Piata Roma
aprox.
1700 m
Piata Bucur Obor
aprox.
1762 m
Piata Timpului
aprox.
1810 m
Piața Sfântul Anton
aprox.
1901 m
Piata Emil Cioran (Vergilius) (en)
aprox.
1915 m
Piața Aviatorilor
aprox.
2000 m
Stadionul Dinamo
aprox.
898 m
Teren sportiv
aprox.
1073 m
Teren sportiv
aprox.
1090 m
Teren sportiv
aprox.
1137 m
Teren sportiv
aprox.
1164 m
Teren sportiv
aprox.
1270 m
Teren sportiv
aprox.
1307 m
Teren sportiv
aprox.
1511 m
Teren sportiv
aprox.
1537 m
Respawn B
aprox.
1622 m
Teren sportiv
aprox.
1649 m
Gradinita
aprox.
1700 m
Etaj 1 - Hala CQB
aprox.
1702 m
Parter - Hala mare
aprox.
1710 m
Respawn A
aprox.
1726 m
Laurus Medical
aprox.
178 m
Bioderm Eminescu (en)
aprox.
228 m
Spitalul de Oftalmologie
aprox.
298 m
Spitalul Clinic de Urgente Oftalmologice
aprox.
312 m
policlinica centrul de diagnostic si tratament (CDT)
aprox.
329 m
Centrul de diagnostic si tratament
aprox.
335 m
Dacia Medical Center
aprox.
381 m
Puls
aprox.
391 m
Centrul Medical Academica
aprox.
464 m
Clinica de 10
aprox.
471 m
Spitalul Cantacuzino
aprox.
499 m
INFOSAN Clinica Oftalmologica
aprox.
529 m
policlinica de copii Grigore Alexandrescu
aprox.
535 m
Doctor Carmen Sturza
aprox.
537 m
Institutul de Diabet NCPaulescu (en)
aprox.
549 m
Farmacie Dorobanti
aprox.
307 m
Farmacie
aprox.
356 m
Prindcom
aprox.
365 m
Farmaciamerk 2 Pharma
aprox.
375 m
Farmacia Terapia
aprox.
395 m
Farmaplus
aprox.
400 m
Sensiblu
aprox.
450 m
Farmacia Arta
aprox.
469 m
Farmacia Dona
aprox.
499 m
Farmacia Centrofarm 85
aprox.
505 m
Farmacia Artafarm
aprox.
510 m
Sensiblu
aprox.
514 m
Sensiblu
aprox.
541 m
Catena
aprox.
546 m
Help Net Farma
aprox.
613 m
Beca's Kitchen
aprox.
80 m
Osteria Ciao Niki
aprox.
128 m
Restaurant Heritage
aprox.
149 m
Acuarela
aprox.
222 m
Trattoria Roma
aprox.
254 m
Zerillo's
aprox.
261 m
Gyros Sotos
aprox.
281 m
Casa Select
aprox.
284 m
Shift
aprox.
288 m
RESTAURANT "BALTAZAR"
aprox.
293 m
La Puicute
aprox.
312 m
Restaurant La Escu
aprox.
315 m
Crazy Kitchen
aprox.
323 m
Bristol Bar
aprox.
334 m
Casa Oamenilor de Stiinta
aprox.
363 m
Lokal
aprox.
106 m
Alan Dala
aprox.
202 m
ACAB Pub
aprox.
317 m
Piua Book Bar
aprox.
356 m
Zappa Rock & More
aprox.
387 m
Frame
aprox.
472 m
Happy Pub
aprox.
639 m
MIM Bistro
aprox.
647 m
Trei Betivi
aprox.
743 m
Fratelli Espresso Bar
aprox.
816 m
Que Pasa
aprox.
821 m
A1
aprox.
921 m
Dianei Patru
aprox.
1110 m
Cup & Cake
aprox.
1121 m
Geo Bar
aprox.
1225 m
Waldo's
aprox.
176 m
Panik & Pub
aprox.
201 m
OLD NICK PUB
aprox.
315 m
Open Pub
aprox.
513 m
Smart's Pub & Bistro
aprox.
664 m
Studio Martin
aprox.
829 m
Have a Cigar
aprox.
1015 m
Coloseum
aprox.
1220 m
Question Mark Social Club
aprox.
1241 m
Edgar`s Pub
aprox.
1303 m
James Joyce's Pub & Restaurant
aprox.
1360 m
Bluzz
aprox.
1361 m
Charlatans Irish Pub
aprox.
1396 m
Clock`s
aprox.
1404 m
Club Surubelnita
aprox.
1408 m
Shiva
aprox.
230 m
Smart Change
aprox.
254 m
5 To Go Lahovari
aprox.
303 m
Hathor Cafe
aprox.
304 m
Music Rooms Cafe
aprox.
316 m
Mon Amour
aprox.
331 m
Tucano Coffee
aprox.
346 m
Tucano Coffee - Dorobanti
aprox.
361 m
Nescafe Milano
aprox.
503 m
Gradina Verona
aprox.
525 m
Gradina OAR
aprox.
540 m
Cafe Boheme
aprox.
611 m
Cafe 3
aprox.
633 m
Hobby Caffe & Shop
aprox.
634 m
Camera din Fata
aprox.
647 m
Alpha Bank
aprox.
380 m
BRD Dacia
aprox.
466 m
azur finance (en)
aprox.
477 m
ING Romana
aprox.
511 m
Raiffeisen Bank - Agentia Piata Romana
aprox.
516 m
UniCredit Bank - Ag. Magheru
aprox.
520 m
Banca Transilvania - Ag. Piata Romana
aprox.
544 m
BRD Piata Romana
aprox.
548 m
Banca Transilvania
aprox.
563 m
Banca Transilvania
aprox.
565 m
Banca Transilvania
aprox.
637 m
Banca Transilvania - Ag. Stefan cel Mare
aprox.
647 m
BRD Vasile Lascar
aprox.
653 m
BCR
aprox.
653 m
Raiffeisen Bank
aprox.
660 m
Zona Ștefan cel Mare - Dacia - Eminescu - Armenească este destul de bine conectată cu alte cartiere din București prin intermediul mijloacelor de transport în comun. Printre acestea amintim autobuzul 605 pe care îl poți lua pentru a ajunge la mall-ul Băneasa Shopping City, tramvaiul 16 care te poate ajuta să ajungi la Piața Sf. Vineri și troleibuzul 86 care oferă o legătură directă cu Gara de Nord. Mai multe stații de metrou sunt și ele disponibile în apropiere. Este vorba despre Ștefan cel Mare și Obor, aflate pe magistrala 1 Dristor - Pantelimon, și despre Piața Romană și Universitate situate pe traseul magistralei 2 Berceni-Pipera. Consultă harta pentru a afla poziționarea exactă a stațiilor mijloacelor de transport în comun.
În zona Ștefan cel Mare - Dacia - Eminescu - Armenească vei găsi mai multe unități de învățământ, de stat și private. Amintim astfel Colegiul Național Școala Centrală de lângă Parcul Grădina Icoanei, Colegiul Național "Spiru Haret" de pe Strada Italiană, Colegiul Național "Cantemir Vodă" și Liceul Economic "Virgil Madgearu", ambele situate pe Bulevardul Dacia. Școala Sanitară Postliceală "Carol Davila" se află și ea în această zonă, iar Academia de Studii Economice din București poate fi găsită în apropiere, la Piața Romană. Consultă harta pentru a vedea care vor fi cele mai apropiate grădinițe, școli și licee de viitoarea ta locuință.
În această zonă vei găsi, în principal, magazine mici și câteva supermarketuri. La intersecția dintre Bulevardul Dacia și Strada Vasile Lascăr vei avea la dispoziție Piața Gemeni și un concept store Mega Image. Cel mai apropiat mall este situat în zona Obor. Este vorba despre Veranda Mall, unul dintre cele mai noi astfel de centre comerciale din București. Tot aici găsești magazinul Bucur Obor și o piață. Cu mașina poți ajunge destul de rapid și la mall-ul Promenada sau la complexul comercial cu magazin Kaufland și Carrefour Market de pe Strada Barbu Văcărescu. Consultă harta și află ce alte opțiuni mai ai aproape de viitoarea ta casă, dar și în împrejurimi.
Îți recomandăm să verifici dacă există posibilitatea închirierii unui loc de parcare în apropierea locuinței de care ești interesat. Poți face acest lucru apelând la Serviciul Parcări din cadrul ADP Sector 2. Atunci îți aducem în atenție faptul că Bulevardul Dacia, Strada Mihai Eminescu și Strada Polonă sunt unele dintre cele mai circulate din această zonă. Trafic intens vei întâlni, totodată, la intersecția dintre Calea Dorobanți, Bulevardul Dacia și Strada Mihai Eminescu. Aglomerație vei găsi și pe Bulevardul Ștefan cel Mare, mai ales la orele de vârf și în zilele în care se organizează evenimente sportive în cadrul stadionului Dinamo. Consultă harta și vezi unde se găsesc principalele parcări din această zonă.
În zona Ștefan cel Mare - Dacia - Eminescu - Armenească se organizează periodic diferite evenimente, de la ateliere, la festivaluri și demonstrații de artă stradală. Dacă te vei muta în această parte a orașului, vei avea la doi pași de casă mai multe ceainării, restaurante, spații unde se organizează jocuri de tip escape room și trei teatre - Țăndărică, Metropolis și Bulandra. Pentru evenimente culturale și seri de film vei putea merge pe Bulevardul Dacia, la Institutul Francez din București. Ajungi repede și în centru, unde poți fi spectatorul unei piese puse în scenă de actorii Teatrului Național București. Parcurile Grădina Icoanei și Ioanid, deși sunt destul de restrânse ca suprafață, sunt unele dintre cele mai frumoase din această parte a orașului. Totodată, în nordul acestei zone, în imediata apropiere a Șoselei Ștefan cel Mare, vei găsi Circul Metropolitan București și parcul acestuia, iar în vecinătatea lor Stadionul Dinamo și complexul său sportiv. Nu uita, totodată, că din această zonă vei ajunge destul de rapid în Centrul Vechi, unde pe lângă terase și restaurante găsești și câteva obiective turistice care merită vizitate măcar o dată. Află ce alte puncte de interes găsești în zona Ștefan cel Mare - Dacia - Eminescu - Armenească și din vecinătatea acesteia. Consultă harta.
Dacă te vei muta în această zonă, vei avea la dispoziție mai multe spitale și clinici private. Printre acestea se numără Spitalul Clinic Dr. Ion Cantacuzino din zona Pieței Gemeni și Spitalul Ion Stroia . Alte unități sanitare din vecinătate sunt Spitalul Clinic Colentina, Spitalul Sf. Ștefan, Spitalul Clinic de Urgență București (cunoscut și ca Floreasca) și Spitalul Euroclinic din rețeaua privată de sănătate Regina Maria. Toate acestea sunt concentrate în nordul zonei Ștefan cel Mare - Dacia - Eminescu - Armenească, în vecinătatea Stadionului Dinamo și a Parcului Circului. Vezi pe hartă localizarea exactă a unităților medicale de mai sus.
Presărate pe străzile din această zonă găsești mai multe terase și restaurante mici. Câteva dintre cele mai cochete se află în vechiul cartier Armenesc. De aici ajungi extrem de repede și în Centrul Vechi al orașului, pentru mai multă diversitate. Fiind atât de aproape de centrul orașului, vei avea la dispoziție extrem de multe opțiuni. Restaurantele și cafenelele din Dorobanți sau de pe Calea Floreasca pot fi cu siguranță pe gustul tău. Dacă vrei să faci și o plimbare, să admiri arhitectura frumoasă a vechilor clădiri din București și să te oprești la o cafea sau la o prăjitură, atunci Calea Victoriei poate fi ideală. Pentru o mică gustare sau un meniu fast food ai mai multe variante în zona Obor, iar dacă te grăbești atunci poți încerca drive through-ul McDonald"™s de pe Strada Barbu Văcărescu. Aruncă o privire pe hartă și vezi ce alte restaurante, terase sau cafenele ai în zonă.
Găsești mai multe sucursale bancare și ATM-uri în special pe Șoseaua Ștefan cel Mare. Aruncă o privire pe hartă și vezi ce alte opțiuni găsești în apropierea viitoarei tale locuințe.
Înainte să pleci...
Ești sigur că ai văzut și aceste proprietăți?
356.000 € + TVA
București, Eminescu
3 camere
89 mp
Etaj 2 / 7
389.900 €
București, Eminescu
3 camere
143 mp
Etaj 2
380.000 € + TVA
București, Eminescu
3 camere
90 mp
Parter / 7
Creează alertă
Salvează căutarea ca să primești pe email ultimele anunțuri publicate
Apartamente cu 4+ camere de vânzare în zona Eminescu, Sector 2
Cere detalii prin email
*
*
*
*
Detaliile tale de contact vor fi partajate cu Renet The Real Estate Network
Preț total2.003.692 RON (393.196 €)
Costuri cu achiziția16.291 RON
Preț de achiziție1.987.401 RON
Costuri cu achiziția16.291 RON
Comision agenție Întreabă agenţia
Onorariu notarial13.310 RON
Taxă înscriere OCPI2.981 RON
Preț de achiziție1.987.401 RON
Preț locuință1.987.401 RON
TVA 0%Inclus în prețul cerut
Cost total320.613 RON (62.915 €)
Avans (15%)298.110 RON
Cost achitat în prima lună3.444 RON
Costuri cu achiziția19.059 RON
Cost achitat în prima lună3.444 RON
Comision analiză dosar
400 RON - 900 RON
Taxă evaluare imobil(până la)
575 RON
Rata lunară (variabilă)8.853 RON
Asigurare anuală imobil1.987 RON
Arhivă electronică102 RON
Poliță PAD130 RON
Asigurare de viață/lună Costul este variabil. În funcție de banca aleasă, procentul variază între 0.0259% și 0.035% din soldul creditului.
Costuri cu achiziția19.059 RON
Comision agenție Întreabă agenţia
Onorariu notarial13.310 RON
Taxă întabulare OCPI2.981 RON
Autentificare contract credit2.768 RON
Preț de achiziție1.987.401 RON
Preț locuință1.987.401 RON
TVA 0%Inclus în prețul cerut
Preț de achiziție1.987.401 RON
Preț locuință1.987.401 RON
TVA 0%
Inclus în prețul cerut
Avans minim1.380.989 RON
Credit pe 30 de ani606.412 RON
Cost achitat în prima lună
Taxa evaluare imobil(până la)
575 RON
Rata lunară (variabilă)4.261 RON
Depozit colateral12.783 RON
Comision de garantare FNGCIMM166 RON
Asigurare anuală imobil1.987 RON
Poliță PAD130 RON
Tarif arhivă electronică102 RON
Costuri adiționale2.127 RON + taxe notariale
Asigurare viață și complexă (opțională)Costul este variabil. În funcție de banca aleasă, procentul variază între 0.0259% și 0.035% din soldul creditului
Onorariu notarialconform tarif notarial
Taxă întabulare OCPI2.127 RON
i
Toate valorile de mai sus sunt estimative și nu reprezintă în mod obligatoriu costurile exacte pe care le veți primi de la companiile/instituțiile prin care veți încheia tranzacția.