3

Apartament 2 Camere,Iancului,Metrou,bl.2011,et.2,DECOMANDAT,centrala,2 bai

140.000 €

Iancului, București

Nr. cam.:
2
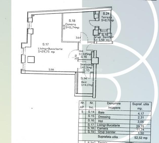
Sup. utilă:
52 mp
Etaj:
2 / 4
An constr.:
2011
  • • Locație exactă

Descriere apartament

Bucuresti Imobiliare va ofera spre vanzare un apartament de doua camere situat in zona ,Iancului,Metrou,bl.2011,et.2,DECOMANDAT,Amenajat,centrala,2 bai,balcon,Liber
Citește mai mult Citește mai puțin
Confort 1 Decomandat 1 Balcon / Terasă / Logie Aer condiționat Centrală proprie Renovat

Detalii apartament

ID anunț: XFOE002CQ Copiat! 275179834 Copiat!
Actualizat în: 03 Martie 2026
Suprafață utilă totală: 57 mp
Suprafață construită: 62 mp
Nr. bucătării: 1
Nr. băi: 2
Tip imobil: Bloc de apartamente
Regim înălțime: P+4E

Utilități

Destinație
Rezidențial
Pereți
Faianță Vopsea lavabilă
Podele
Gresie Parchet
Ușă intrare
Lemn PVC
Uși interior
Lemn PVC
Izolații termice
Exterior Interior
Ferestre cu geam termopan
PVC
Utilități
Gaze Curent Canalizare Apă
Amenajare străzi
Asfaltate Betonate Iluminat stradal Mijloace de transport în comun
Comision
standard

Vecinătăți:

Iancului Metrou
Soseaua Iancului
Mega Mall
Vatra Luminoasa

Puncte de interes

Mijloace transport
tram-station
Piata Iancului
Stații tramvai aprox. 46 m
bus-station
Piata Iancului
Stații autobuz aprox. 77 m
trolleybus-station
Statia Piata Iancului, linia 55
Stații troleibuz aprox. 143 m
metro-station
Statia Soseaua Mihai Bravu, linia 14
Stații metrou aprox. 436 m
Școală
kindergarten
Gradinita numarul 16
Gradinițe aprox. 151 m
kindergarten
Gradinita Schritt fuer Schritt
Gradinițe aprox. 210 m
school
Scoala Nr. 85 Vasile Bunescu (en)
Școli aprox. 293 m
university
Universitatea Nationala de Arta Teatrala si Cinematografica
Universități aprox. 476 m
Recreere
park
Parc
Parcuri aprox. 43 m
public-square
Piata Iancului
Piețe publice aprox. 58 m
supermarket
InterMacedonia
Supermarket aprox. 63 m
sports-ground
Teren sportiv
Terenuri sport aprox. 344 m

Detalii despre preț și costuri

Prețul pe piață

Preț cerut: 140.000 €

Preț min. zonă 74.900 €
Preț max. zonă 195.000 €

76% dintre proprietățile similare ca zonă și nr. camere au prețul cerut mai mic. mai multe...

Bine de știut: prețul unei proprietăți este influențat și de alte caracteristici, cum ar fi: vechime, localizare, vecinătăți, suprafață, compartimentare, amenajări, dotări, etc. mai puțin...

Costuri cu achiziția

Fără credit
7.710 RON
Credit ipotecar
9.417 RON
Noua casă
854 RON+ taxe notariale

i

Costuri adiționale mai puțin știute la achiziție: taxe notariale, comisioane etc.

Proprietăți similare

Apartament cu 3 camere semidecomandat, mobilat în Iancului
137.000 €
București, Iancului
3 camere
56 mp
Etaj 9 / 10
Apartament cu 3 camere semidecomandat, mobilat în Iancului
137.000 €
București, Iancului
3 camere
59 mp
Etaj 9
Apartament cu 3 camere semidecomandat, mobilat în Iancului
137.000 €
București, Iancului
3 camere
59 mp
Etaj 9

Detalii de contact

Bucuresti Imobiliare

ANA

3.22(3 review-uri)

Bucuresti Imobiliare
PRO

Abonează-te la newsletter să fii primul care primește cele mai noi recomandări de proprietăți și sfaturi de la experți.

CONTACT

Creează alertă

Salvează căutarea ca să primești pe email ultimele anunțuri publicate

Apartamente cu 2 camere de vânzare în zona Iancului, Sector 2