2 camere Iancului decomandat, centrala, et. 2, an 2012, metrou, 55 mp

140.000 €

Iancului, București

Nr. cam.:
2
Sup. utilă:
52 mp
Etaj:
2 / 5
An constr.:
2012 (Finalizată)
  • • Locație aproximativă

Descriere apartament

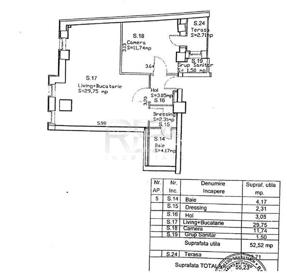
R.E.A. Imobiliare va ofera spre vanzare un apartament cu 2 camere in zona Iancului, decomandat, situat intr-un bloc nou, construit in anul 2012. Se afla la etajul 2 al unui bloc cu 5 etaje si are o suprafata utila totala de 55 mp, din care 3 mp sunt reprezentati de cele balcon. Compartimentare: living, dormitor, bucatarie, doua bai si balcon. Se vinde mobilat si utilat. Confortul termic este asigurat prin centrala proprie. Zona pet-friendly. In imediata apropiere se afla puncte comerciale, bancare, farmaceutice, medicale, educationale si de divertisment. Acces facil la mijloacele de transport in comun: 5-6 minute pana la statia de metrou. Se accepta toate modalitatile de plata. Informatiile tehnice au caracter orientativ, acestea fiind preluate de la proprietar. Daca sunteti in cautarea unui apartament cu 2 camere in zona Iancului, nu ratati aceasta ocazie! Comision standard, valabil doar la cumparare. Pentru mai multe detalii si vizionari, nu ezitati sa ne contactati, specificand codul P10445.
Citește mai mult Citește mai puțin
Confort 1 Decomandat Mobilat 1 Balcon / Terasă / Logie Calorifere Centrală proprie

Detalii apartament

ID anunț: XDKS108NG Copiat! 275269187 Copiat!
Actualizat în: 13 Martie 2026
Suprafață construită: 62 mp
Nr. bucătării: 1
Nr. băi: 2
Tip imobil: Bloc de apartamente
Regim înălțime: P+5E

Utilități

Destinație
Rezidențial
Pereți
Vopsea lavabilă Faianță
Podele
Parchet Gresie
Ușă intrare
Metal
Uși interior
Lemn
Izolații termice
Bloc izolat termic
Contorizare
Apometre Contor gaz
Bucătărie
Mobilată Utilată
Facilități imobil
Interfon Lift
Utilități
Curent Apă Canalizare Gaze
Amenajare străzi
Asfaltate Iluminat stradal Mijloace de transport în comun
Comision
standard

Disponibilitate proprietate:

imediat

Puncte de interes

Mijloace transport
bus-station
Statia Agricultorilor linia 90, 86
Stații autobuz aprox. 276 m
tram-station
Delea Veche
Stații tramvai aprox. 402 m
metro-station
Statia Muncii, metrou M1
Stații metrou aprox. 609 m
trolleybus-station
Statia Piata Iancului, linia 55
Stații troleibuz aprox. 673 m
Școală
kindergarten
Montessori Kindergarden of Bucharest
Gradinițe aprox. 248 m
school
Asociatia Culturala Bravissimo
Școli aprox. 295 m
university
Universitatea Nationala de Arta Teatrala si Cinematografica
Universități aprox. 349 m
kindergarten
Gradinita Schritt fuer Schritt
Gradinițe aprox. 562 m
Recreere
park
Parc
Parcuri aprox. 186 m
supermarket
Mega Image
Supermarket aprox. 377 m
sports-ground
Teren sportiv
Terenuri sport aprox. 442 m
mall
Bucharest, Calea Vitan nr. 8, Bl V51, near VITAN Mall
Mall aprox. 1593 m

Detalii despre preț și costuri

Prețul pe piață

Preț cerut: 140.000 €

Preț min. zonă 74.900 €
Preț max. zonă 195.000 €

76% dintre proprietățile similare ca zonă și nr. camere au prețul cerut mai mic. mai multe...

Bine de știut: prețul unei proprietăți este influențat și de alte caracteristici, cum ar fi: vechime, localizare, vecinătăți, suprafață, compartimentare, amenajări, dotări, etc. mai puțin...

Costuri cu achiziția

Fără credit
7.708 RON
Credit ipotecar
9.415 RON
Noua casă
853 RON+ taxe notariale

i

Costuri adiționale mai puțin știute la achiziție: taxe notariale, comisioane etc.

Proprietăți similare

Apartament cu 3 camere decomandat, mobilat în Iancului
128.000 €
București, Iancului
3 camere
82,5 mp
Etaj 8 / 10
Apartament cu 3 camere semidecomandat, mobilat în Iancului
137.000 €
București, Iancului
3 camere
59 mp
Etaj 9 / 10
Apartament cu 2 camere decomandat, mobilat în Iancului
140.000 €
București, Iancului
2 camere
52,5 mp
Etaj 2

Detalii de contact

R.E.A. Imobiliare

Valentin Ghitiu Broker

4.86(7 review-uri)

R.E.A. Imobiliare
PRO

Abonează-te la newsletter să fii primul care primește cele mai noi recomandări de proprietăți și sfaturi de la experți.

CONTACT

Creează alertă

Salvează căutarea ca să primești pe email ultimele anunțuri publicate

Apartamente cu 2 camere de vânzare în zona Iancului, Sector 2