4

Apartament 3 Camere Baba Novac, Sector 3

115.000 €

Baba Novac, București

Nr. cam.:
3
Sup. utilă:
69 mp
Etaj:
5
An constr.:
1975
  • • Exclusivitate
  • • Locație exactă

Descriere apartament

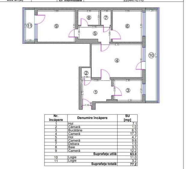
Vânzări Apartamente 3 Camere Baba Novac ,Sector 3 Strada Profesor Doctor S.Nicolau Apartament 3 Camere ,etaj 5/8 , confort 1 ,an construcție 1975, semidecomandat, suprafață 77.20 mp , necesită renovare, bloc reabilitat termic , 2 balcoane. Preț 115.000 euro Ofertă exclusivă Wow Me Real Estate
Citește mai mult Citește mai puțin
Confort 1 Semidecomandat 2 Balcoane / Terase / Logii Termoficare

Detalii apartament

ID anunț: XCSQ000MA Copiat! 275079639 Copiat!
Actualizat în: 23 Februarie 2026
Suprafață utilă totală: 77 mp
Suprafață construită: 803 mp
Nr. bucătării: 1
Nr. băi: 1
Structură rezistență: Beton
Tip imobil: Bloc de apartamente
Regim înălțime: P+8E

Utilități

Destinație
Rezidențial
Ușă intrare
Metal
Izolații termice
Exterior
Ferestre cu geam termopan
PVC
Contorizare
Apometre Contor căldură
Facilități imobil
Lift Interfon
Utilități
CATV Curent Canalizare Apă
Servicii imobil
Administrare
Amenajare străzi
Asfaltate Iluminat stradal Mijloace de transport în comun
Comision
2%

Certificat energetic:

Clasa energetică: B

Puncte de interes

Mijloace transport
bus-station
Statia Baba Novac / Soseaua Mihai Bravu, linia 135, 311, 330, 634, N104 ,1 ,70, 79, 92
Stații autobuz aprox. 270 m
tram-station
Baba Novac
Stații tramvai aprox. 307 m
metro-station
Metrorex. Stația Dristor 2 (M1)(1989).
Stații metrou aprox. 561 m
trolleybus-station
statie troleu 70,92,79 (en)
Stații troleibuz aprox. 1219 m
Școală
kindergarten
Gradinita de copii nr.239
Gradinițe aprox. 321 m
school
Scoala de muzica si arte plastice nr.5
Școli aprox. 336 m
kindergarten
Gradinita catolica "Sfanta Cruce"
Gradinițe aprox. 416 m
university
Facultatea Științe Economice, Titu Maiorescu ( Facultatea Tatianei )
Universități aprox. 1011 m
Recreere
park
Parc
Parcuri aprox. 222 m
supermarket
BILLA - Dristor
Supermarket aprox. 339 m
sports-ground
Teren sportiv
Terenuri sport aprox. 585 m
mall
Bucharest, Calea Vitan nr. 8, Bl V51, near VITAN Mall
Mall aprox. 1472 m

Detalii despre preț și costuri

Prețul pe piață

Preț cerut: 115.000 €

Preț min. zonă 93.000 €
Preț max. zonă 199.000 €

60% dintre proprietățile similare ca zonă și nr. camere au prețul cerut mai mare. mai multe...

Bine de știut: prețul unei proprietăți este influențat și de alte caracteristici, cum ar fi: vechime, localizare, vecinătăți, suprafață, compartimentare, amenajări, dotări, etc. mai puțin...

Costuri cu achiziția

Fără credit
18.535 RON
Credit ipotecar
20.136 RON
Noua casă
726 RON+ taxe notariale

i

Costuri adiționale mai puțin știute la achiziție: taxe notariale, comisioane etc.

Proprietăți similare

Apartament cu 2 camere decomandat în Baba Novac
123.000 €
București, Baba Novac
2 camere
50 mp
Etaj 4 / 10
Apartament cu 3 camere semidecomandat, mobilat în Baba Novac
106.900 €
București, Baba Novac
3 camere
61 mp
Etaj 8
Apartament cu 2 camere circular în Baba Novac
104.000 €
București, Baba Novac
2 camere
49 mp
Etaj 5

Detalii de contact

Wow Me Real Estate

Elena Stefania Nistor Administrator

5.00(3 review-uri)

Wow Me Real Estate
PRO

Abonează-te la newsletter să fii primul care primește cele mai noi recomandări de proprietăți și sfaturi de la experți.

CONTACT

Creează alertă

Salvează căutarea ca să primești pe email ultimele anunțuri publicate

Apartamente cu 3 camere de vânzare în zona Baba Novac, Sector 3