18

Baba Novac intersectie Campia Libertatii, 5 minute parc IOR, mall, centrala

124.000 €

Baba Novac, București

Nr. cam.:
2
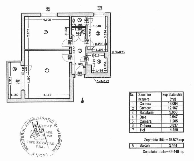
Sup. utilă:
50 mp
Etaj:
4 / 10
An constr.:
1973 (Finalizată)
  • • Locație Verificată
  • • Locație exactă

Descriere apartament

Va prezentam un apartament de 2 camere situat in Baba Novac intersectie Campia Libertatii, la numai 5 minute parc IOR si mall Park Lake, 15 minute metrou Dristor, intr-un bloc turn, reabilitat, la etajul 4 din 10. Apartamentul este decomandat, renovat integral in februarie 2026, are instalatiile electrice si sanitare noi, centrala, geamuri termopan, gresie, faianta, parchet, usa metalica. Se accepta credit ipotecar. Toate actele sunt la zi. Va asteptam la vizionare. Comision agentie 2%
Citește mai mult Citește mai puțin
Confort 1 Decomandat 1 Balcon / Terasă / Logie Centrală proprie Renovat

Detalii apartament

ID anunț: X3T600529 Copiat! 270941289 Copiat!
Actualizat în: 15 Mai 2026
Suprafață utilă totală: 50 mp
Suprafață construită: 50 mp
Nr. bucătării: 1
Nr. băi: 1
Structură rezistență: Beton
Tip imobil: Bloc de apartamente
Tip tranzacție: De vânzare prin agent
Regim înălțime: P+10E
Modalitate de plată: Cash sau Credit

Utilități

Pereți
Faianță
Podele
Gresie Parchet
Ușă intrare
Metal
Ferestre cu geam termopan
PVC
Comision
2%

Certificat energetic:

Clasa energetică: B

Puncte de interes

Mijloace transport
bus-station
Statie troleu/bus Campia Libertatii
Stații autobuz aprox. 38 m
trolleybus-station
statie troleu 70,92,79 (en)
Stații troleibuz aprox. 585 m
tram-station
Patinoar
Stații tramvai aprox. 776 m
metro-station
Metrorex.Statia Titan.M1
Stații metrou aprox. 1001 m
Școală
school
Scoala Generala Nr. 86
Școli aprox. 356 m
school
Scoala Nr. 86
Școli aprox. 367 m
kindergarten
Gradinita de copii nr.239
Gradinițe aprox. 409 m
university
Facultatea Științe Economice, Titu Maiorescu ( Facultatea Tatianei )
Universități aprox. 501 m
Recreere
park
Parc
Parcuri aprox. 94 m
sports-ground
Teren sportiv
Terenuri sport aprox. 364 m
supermarket
Mega Image Gloria
Supermarket aprox. 461 m
public-square
Piata Hurmuzachi / Piata Muncii (fosta Bariera Vergului)
Piețe publice aprox. 1083 m

Istoricul prețurilor

Acces la informații premium după autentificare
Login Gratuit

Detalii despre preț și costuri

Prețul pe piață

Preț cerut: 124.000 €

Preț min. zonă
Preț max. zonă

92% dintre proprietățile similare ca zonă și nr. camere au prețul cerut mai mic. mai multe...

Bine de știut: prețul unei proprietăți este influențat și de alte caracteristici, cum ar fi: vechime, localizare, vecinătăți, suprafață, compartimentare, amenajări, dotări, etc. mai puțin...

Acces la informații premium după autentificare
Login Gratuit

Costuri cu achiziția

Fără credit
Credit ipotecar
Noua casă

i

Costuri adiționale mai puțin știute la achiziție: taxe notariale, comisioane etc.

Acces la informații premium după autentificare
Login Gratuit

Proprietăți similare

Apartament cu 2 camere decomandat în Baba Novac
115.000 €
București, Baba Novac
2 camere
52 mp
Etaj 6
Apartament cu 2 camere decomandat, mobilat în Baba Novac
125.000 €
București, Baba Novac
2 camere
45 mp
Parter
Apartament cu 2 camere decomandat, mobilat în Baba Novac
130.000 €
București, Baba Novac
2 camere
50,4 mp
Etaj 2

Detalii de contact

RAMAX BEST IMOBILIARE

adrian agent

4.32(23 review-uri)

RAMAX BEST IMOBILIARE
PRO

Abonează-te la newsletter să fii primul care primește cele mai noi recomandări de proprietăți și sfaturi de la experți.

CONTACT

Creează alertă

Salvează căutarea ca să primești pe email ultimele anunțuri publicate

Apartamente cu 2 camere de vânzare în zona Baba Novac, Sector 3