Apartament 4 camere recent renovat | centrala proprie | semimobilat si utilat |

132.000 €

Calea Călărașilor, București

Nr. cam.:
4
Sup. utilă:
82 mp
Etaj:
5 / 8
An constr.:
1939 (Finalizată)
  • • Locație aproximativă
  • • Vizionare prin apel video

Descriere apartament

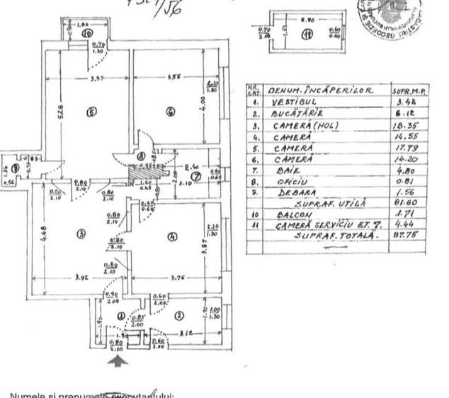
Se oferă spre vânzare un apartament cu 4 camere, situat stradal pe Calea Călărașilor, la doar un minut distanță de stația de metrou Piața Muncii, într-o zonă extrem de accesibilă și căutată, ideală atât pentru locuit, cât și pentru investiție. Apartamentul se află la etajul 5 dintr-un imobil cu 8 niveluri și a fost recent renovat, păstrând un aer modern și curat. În trecut, spațiul a fost folosit ca sediu de firmă, ceea ce i-a conferit o compartimentare practică și versatilă. Blocul a fost consolidat în anul 1978, o intervenție realizată cu sprijin politic, având în vedere că în acel moment în apartament locuia adjunctul ministrului energiei ușoare. Orientarea este către partea din spate a clădirii, oferind o atmosferă liniștită, ferită de agitația bulevardului principal, iar balconul deschis de 1,71 mp este orientat tot spre această zonă calmă. Apartamentul are o suprafață utilă de 81,60 mp și o suprafață totală de 87,75 mp. Compartimentarea este practică și bine gândită: vestibul, bucătărie, o cameră-hol care poate fi folosită în diverse moduri, trei camere suplimentare, baie cu fereastră, oficiu, debara și balcon. În plus, la etajul 7 al blocului există o cameră de serviciu separată, cu o suprafață de 4,44 mp, ce poate servi ca spațiu de depozitare sau birou auxiliar. Apartamentul este semi-mobilat și utilat, fiind dotat cu centrală termică proprie, calorifere pentru încălzire și aparat de aer condiționat, ceea ce asigură confortul termic pe tot parcursul anului. Geamurile și ușile interioare sunt din termopan, oferind izolare fonică și termică sporită. Pretul de vanzare este 132.000 EURO. Imobiliul este incadrat in categorie de risc RS2. !!Pentru serviciile de intermediere imobiliara, Agentia percepe un comision de: 3% din prețul de vanzare!! !!Vizionarile se fac doar în baza semnării în prealabil a Fisei de Vizionare.!!
Citește mai mult Citește mai puțin
Confort 1 Semidecomandat Parțial mobilat 1 Balcon / Terasă / Logie Aer condiționat Centrală proprie Renovat

Detalii apartament

ID anunț: X54H1084B Copiat! 275322237 Copiat!
Actualizat în: 20 Martie 2026
Suprafață utilă totală: 82 mp
Suprafață construită: 88 mp
Nr. bucătării: 1
Nr. băi: 1
Structură rezistență: Altele
Tip imobil: Bloc de apartamente
Regim înălțime: P+8E

Utilități

Destinație
Rezidențial
Pereți
Faianță Vopsea lavabilă
Podele
Parchet Gresie
Izolații termice
Interior
Ferestre cu geam termopan
PVC
Contorizare
Apometre Contor gaz
Bucătărie
Utilată Mobilată
Electrocasnice
Aragaz Hotă Frigider Hotă Mașină de spălat
Facilități imobil
Lift Interfon
Utilități
Apă Curent Gaze Canalizare
Amenajare străzi
Asfaltate Iluminat stradal Mijloace de transport în comun
Comision
3%

Vecinătăți:

Scoala/gradinita, Restaurant/pub, Mall, Parc, Ultracentral, Hotel, Benzinarie, Intersectie circulata, Trafic Pietonal, Fastfood, Supermarket, Banca, Zona comerciala, Autobuz, Metrou

Puncte de interes

Mijloace transport
tram-station
Stația RATB "Piața Hurmuzachi", tramvaie 40, 56
Stații tramvai aprox. 27 m
bus-station
Piata Muncii
Stații autobuz aprox. 110 m
metro-station
Metrorex. Stația Piața Muncii (M1)(1989)(Fosta statie de tramvai subterana)
Stații metrou aprox. 111 m
trolleybus-station
Statia Piata Iancului, linia 55
Stații troleibuz aprox. 1102 m
Școală
school
Scoala cu clasele I-VIII, Nr. 70
Școli aprox. 318 m
school
Scoala nr. 70
Școli aprox. 318 m
kindergarten
Gradinita catolica "Sfanta Cruce"
Gradinițe aprox. 365 m
university
Universitatea Nationala de Arta Teatrala si Cinematografica
Universități aprox. 871 m
Recreere
supermarket
Mega Image Piata Muncii
Supermarket aprox. 16 m
park
Spatiu verde
Parcuri aprox. 73 m
public-square
Piata Hurmuzachi / Piata Muncii (fosta Bariera Vergului)
Piețe publice aprox. 102 m
mall
Bucharest, Calea Vitan nr. 8, Bl V51, near VITAN Mall
Mall aprox. 1549 m

Detalii despre preț și costuri

Prețul pe piață

Preț cerut: 132.000 €

Preț min. zonă 106.998 €
Preț max. zonă 449.000 €

78% dintre proprietățile similare ca zonă și nr. camere au prețul cerut mai mare. mai multe...

Bine de știut: prețul unei proprietăți este influențat și de alte caracteristici, cum ar fi: vechime, localizare, vecinătăți, suprafață, compartimentare, amenajări, dotări, etc. mai puțin...

Costuri cu achiziția

Fără credit
27.611 RON
Credit ipotecar
29.284 RON
Noua casă
813 RON+ taxe notariale

i

Costuri adiționale mai puțin știute la achiziție: taxe notariale, comisioane etc.

Proprietăți similare

Apartament cu 2 camere decomandat, mobilat în Calea Călărașilor
144.000 €
București, Calea Călărașilor
2 camere
44 mp
Etaj 1 / 2
Apartament cu 4 camere semidecomandat, mobilat în Calea Călărașilor
145.000 €
București, Calea Călărașilor
4 camere
74,5 mp
Etaj 1 / 3
Apartament cu 2 camere semidecomandat în Calea Călărașilor
119.000 €
București, Calea Călărașilor
2 camere
64 mp
Parter / 2

Detalii de contact

Refinder Elite

Catalina Parvu Broker / Owner

5.00(11 review-uri)

Refinder Elite
PRO

Abonează-te la newsletter să fii primul care primește cele mai noi recomandări de proprietăți și sfaturi de la experți.

CONTACT

Creează alertă

Salvează căutarea ca să primești pe email ultimele anunțuri publicate

Apartamente cu 4+ camere de vânzare în zona Calea Călărașilor, Sector 3