14

3 camere - Campia Libertatii | Parcul IOR vis-a-vis si ParkLake

154.900 €

Câmpia Libertății, București

Nr. cam.:
3
Sup. utilă:
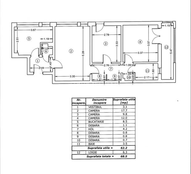
62 mp
Etaj:
4
An constr.:
1970
  • • Locație exactă

Descriere apartament

ECN Real Estate va propune spre vânzare un apartament cu 3 camere, aflat în plin proces de renovare completă, cu un potențial excelent, situat într-una dintre cele mai apreciate zone ale Capitalei – Câmpia Libertății, chiar peste drum de Parcul IOR și la doar câțiva pași de ParkLake Mall. Apartamentul este amplasat la etajul 4 din 10 al unui imobil solid, anvelopat termic, cu lift modernizat și scară recent renovată. Renovare completă – în desfășurare Se va preda la cheie, pregătit pentru mobilare și mutare imediată: instalații electrice și sanitare noi baie complet refăcută, cu finisaje moderne uși interioare noi parchet laminat de calitate superioară gresie și faianță noi în bucătărie și baie pereți proaspăt zugrăviți în tonuri neutre Detalii principale: apartament cu 3 camere, bine compartimentat etaj 4/10, bloc îngrijit și civilizat suprafață utilă: 62 mp balcon generos de 6 mp, cu vedere către parc Localizare excelentă: Parcul IOR & ParkLake Mall: la 1 minut Metrou Dristor / Titan: aproximativ 10-12 minute de mers pe jos stații STB în imediata apropiere școli, grădinițe, piețe, farmacii, săli de sport, restaurante. Imaginile sunt cu titlu de prezentare si reprezinta randari ale proiectului de amenajare
Citește mai mult Citește mai puțin
Confort 1 Semidecomandat

Detalii apartament

ID anunț: XFH30000B Copiat! 274454604 Copiat!
Actualizat în: 03 Martie 2026
Suprafață utilă totală: 69 mp
Nr. bucătării: 1
Nr. băi: 1
Structură rezistență: Beton
Tip imobil: Bloc de apartamente
Regim înălțime: P+10E

Utilități

Comision
2%

Puncte de interes

Mijloace transport
bus-station
Statia Soseaua Campia Libertatii, linia 330
Stații autobuz aprox. 105 m
tram-station
Piata Ramnicu Sarat
Stații tramvai aprox. 705 m
trolleybus-station
statie troleu 70,92,79 (en)
Stații troleibuz aprox. 754 m
metro-station
Metrorex.Stația Dristor 1 (M1) , (M3)(1981)
Stații metrou aprox. 853 m
Școală
school
Scoala Generala Nr. 86
Școli aprox. 172 m
school
Scoala Nr. 86
Școli aprox. 176 m
kindergarten
Grădinita nr. 67
Gradinițe aprox. 263 m
university
Facultatea Științe Economice, Titu Maiorescu ( Facultatea Tatianei )
Universități aprox. 766 m
Recreere
park
Parc
Parcuri aprox. 99 m
supermarket
ParkLake
Supermarket aprox. 309 m
sports-ground
Teren sportiv
Terenuri sport aprox. 361 m
public-square
Piata Hurmuzachi / Piata Muncii (fosta Bariera Vergului)
Piețe publice aprox. 1295 m

Detalii despre preț și costuri

Prețul pe piață

Preț cerut: 154.900 €

Preț min. zonă 93.000 €
Preț max. zonă 199.000 €

96% dintre proprietățile similare ca zonă și nr. camere au prețul cerut mai mic. mai multe...

Bine de știut: prețul unei proprietăți este influențat și de alte caracteristici, cum ar fi: vechime, localizare, vecinătăți, suprafață, compartimentare, amenajări, dotări, etc. mai puțin...

Costuri cu achiziția

Fără credit
24.003 RON
Credit ipotecar
25.773 RON
Noua casă
929 RON+ taxe notariale

i

Costuri adiționale mai puțin știute la achiziție: taxe notariale, comisioane etc.

Proprietăți recomandate

Detalii de contact

ECN REAL ESTATE

Paul Trancioveanu Agent Imobiliar

ECN REAL ESTATE
PRO

Abonează-te la newsletter să fii primul care primește cele mai noi recomandări de proprietăți și sfaturi de la experți.

CONTACT

Creează alertă

Salvează căutarea ca să primești pe email ultimele anunțuri publicate

Apartamente cu 3 camere de vânzare în zona Câmpia Libertății, Sector 3