1

APARTAMENT CU 4 CAMERE AFLAT PE BD DECEBAL APROAPE DE PTA ALBA IULIA - UNIRII

294.000 €

Decebal, București

Nr. cam.:
4
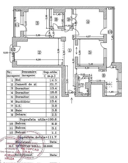
Sup. utilă:
100,6 mp
Etaj:
6 / 8
An constr.:
1990 (Finalizată)
  • • Locație aproximativă

Descriere apartament

VANZARE Apartamentul cu 4 camere plus dependințe este situat într-un imobil solid, de tip monolit, finalizat în 1990, localizat pe Bulevardul Decebal, aflat aproape de Piață Alba Iulia, respectiv Bulevardul Unirii. Imobilul cu structura pe stâlpi, grinzi și planșee din beton armat, este dispus pe subsol, parter și 8 etaje. Este este un imobil îngrijit, locuit de oameni de buna factura. Apartamentul este unul versatil, din punct de vedere al compartimentării (atașat plan cadastral), acesta putând sa acomodeze cu ușurință o familie compusă din 4 membri, cu un nivel de comfort ideal. Ofera spații mari, aerisite și bine iluminate natural, precum și spații pentru depozitare de tip dressing și debara. Pe lângă cei 100.6 mp utili, apartamentul dispune de 3 balcoane, dintre care doua foarte spațioase, închise cu tâmplărie din PVC cu geam termopan. Dipune de centrala termica proprie, pe gaz, noua. Se vinde parțial mobilat si utilat, așa cum este prezentat în fotografii. Apartamentul nu prezintă modificări de compartimentare și poate fi achiziționat și prin credit ipotecar. Atât pentru mai multe informații, detalii tehnice, etc. cât și pentru stabilirea unei vizionari, așteptăm sa ne contactați, fiind pregătiți sa va oferim asistenta necesară în tot procesul de cumpărare.
Citește mai mult Citește mai puțin
Confort lux Decomandat Parțial mobilat 3 Balcoane / Terase / Logii Aer condiționat Calorifere Centrală proprie

Detalii apartament

ID anunț: X4JJ108DQ Copiat! 275291558 Copiat!
Actualizat în: 16 Martie 2026
Suprafață construită: 134.04 mp
Nr. bucătării: 1
Nr. băi: 2
Structură rezistență: Beton
Tip imobil: Bloc de apartamente
Regim înălțime: S+P+8E

Utilități

Destinație
Birouri Rezidențial
Pereți
Faianță Vopsea lavabilă
Podele
Gresie Parchet
Ușă intrare
Metal
Contorizare
Apometre Contor gaz
Bucătărie
Mobilată Utilată
Electrocasnice
Aragaz Frigider Hotă Mașină de spălat
Diverse
Jacuzzi Senzor de fum
Facilități imobil
Interfon
Utilități
Curent Apă Canalizare CATV Gaze Telefon
Internet
Cablu Wireless
Servicii imobil
Supraveghere video
Amenajare străzi
Iluminat stradal Mijloace de transport în comun Asfaltate
Comision
standard

Disponibilitate proprietate:

Imediat

Puncte de interes

Mijloace transport
bus-station
Statia Bd. Decebal / Dristorului linia N104, 104,70, 79, 92
Stații autobuz aprox. 37 m
tram-station
Delea Veche
Stații tramvai aprox. 439 m
metro-station
Metrorex. Stația Piața Muncii (M1)(1989)(Fosta statie de tramvai subterana)
Stații metrou aprox. 615 m
trolleybus-station
Statia Piata Iancului, linia 55
Stații troleibuz aprox. 1388 m
Școală
kindergarten
Gradinita Era
Gradinițe aprox. 329 m
school
Scoala cu clasele I-VIII, Nr. 70
Școli aprox. 386 m
kindergarten
Gradinita catolica "Sfanta Cruce"
Gradinițe aprox. 535 m
university
Universitatea Hyperion
Universități aprox. 729 m
Recreere
park
Parc/loc de joaca ptr copii
Parcuri aprox. 108 m
supermarket
Succes Non-Stop
Supermarket aprox. 184 m
public-square
Piata Hurmuzachi / Piata Muncii (fosta Bariera Vergului)
Piețe publice aprox. 602 m
mall
Bucharest, Calea Vitan nr. 8, Bl V51, near VITAN Mall
Mall aprox. 1028 m

Detalii despre preț și costuri

Prețul pe piață

Preț cerut: 294.000 €

Preț min. zonă 106.998 €
Preț max. zonă 449.000 €

79% dintre proprietățile similare ca zonă și nr. camere au prețul cerut mai mic. mai multe...

Bine de știut: prețul unei proprietăți este influențat și de alte caracteristici, cum ar fi: vechime, localizare, vecinătăți, suprafață, compartimentare, amenajări, dotări, etc. mai puțin...

Costuri cu achiziția

Fără credit
12.994 RON
Credit ipotecar
15.354 RON
Noua casă
1.638 RON+ taxe notariale

i

Costuri adiționale mai puțin știute la achiziție: taxe notariale, comisioane etc.

Proprietăți similare

Apartament cu 3 camere semidecomandat în Decebal
275.000 €
București, Decebal
3 camere
75 mp
Etaj 5 / 9
Apartament cu 3 camere decomandat în Decebal
295.000 €
București, Decebal
3 camere
97 mp
Etaj 3
Apartament cu 2 camere decomandat în Decebal
265.000 €
București, Decebal
2 camere
76 mp
Etaj 1

Detalii de contact

GREEN ALLEY REAL ESTATE

Tudor Gheorghicescu RESIDENTIAL EXPERT

4.88(8 review-uri)

GREEN ALLEY REAL ESTATE
PRO

Abonează-te la newsletter să fii primul care primește cele mai noi recomandări de proprietăți și sfaturi de la experți.

CONTACT

Creează alertă

Salvează căutarea ca să primești pe email ultimele anunțuri publicate

Apartamente cu 4+ camere de vânzare în zona Decebal, Sector 3