Apartament cu Grădină Gata de Mutare

149.000 €

Dristor, București

Nr. cam.:
2
Sup. utilă:
52,44 mp
Etaj:
Parter / 4
An constr.:
2025 (Finalizată)
  • • Locație exactă

Descriere apartament

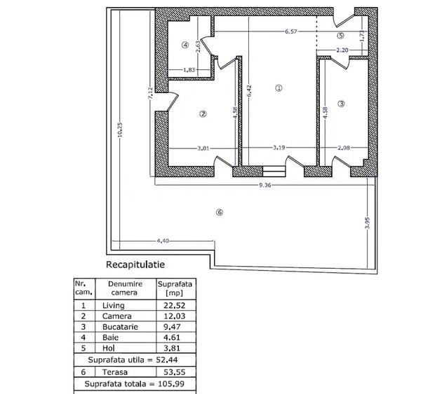
Se oferă spre vânzare un apartament cu 2 camere, situat la parterul unui complex rezidențial nou Duo Street View, format din 2 blocuri cu regim de înălțime P+4, finalizat în urmă cu aproximativ 4 luni. Apartamentul dispune de bucătărie închisă, finisaje de calitate și este complet pregătit pentru mutare imediată. Un mare avantaj îl reprezintă grădina proprie, cu o suprafață de aproximativ 54 mp, ideală pentru relaxare, spațiu verde sau zonă de joacă. Complexul beneficiază de panouri fotovoltaice pentru acoperirea consumului de energie al spațiilor comune, ceea ce contribuie la costuri reduse de întreținere și un stil de viață modern și eficient energetic. Imobilul este potrivit atât pentru locuință proprie, cât și pentru investiție. Bloc nou Grădină proprie ~54 mp Gata de mutare Panouri fotovoltaice pentru spații comune Pentru mai multe detalii sau programarea unei vizionări, nu ezitați să mă contactați. VAUNT ID: 106944
Citește mai mult Citește mai puțin
Centrală proprie Încălzire prin pardoseală

Detalii apartament

ID anunț: X7QH10VRO Copiat! 273745254 Copiat!
Actualizat în: 22 Ianuarie 2026
Suprafață utilă totală: 52.44 mp
Suprafață construită: 65 mp
Nr. băi: 1
Structură rezistență: Beton
Tip imobil: Bloc de apartamente
Regim înălțime: P+4E

Utilități

Destinație
Rezidențial Comercial Birouri
Pereți
Vopsea lavabilă Faianță
Podele
Gresie
Ușă intrare
Parchet
Uși interior
Celulare
Izolații termice
Exterior
Ferestre cu geam termopan
PVC
Contorizare
Apometre Contor gaz
Utilități
Gaze CATV Curent Apă Canalizare
Amenajare străzi
Iluminat stradal Mijloace de transport în comun

Puncte de interes

Mijloace transport
bus-station
Statia Sc. Utilaj Transport, linia 102
Stații autobuz aprox. 133 m
bus-station
Statia Policlina Unex A-Z, linia 135, 223, N111, 202, 123
Stații autobuz aprox. 418 m
tram-station
Fizicienilor
Stații tramvai aprox. 675 m
metro-station
Metrorex.Stația Dristor 1 (M1) , (M3)(1981)
Stații metrou aprox. 1124 m
Școală
kindergarten
Gradinita Nr 24
Gradinițe aprox. 197 m
school
Liceul Teoretic "Decebal"
Școli aprox. 265 m
kindergarten
Gradinita de copii nr.64 "Floare de colt"
Gradinițe aprox. 376 m
university
Universitatea "Gheorghe Cristea"
Universități aprox. 391 m
Recreere
park
Parc
Parcuri aprox. 212 m
supermarket
Lidl Fizicienilor
Supermarket aprox. 242 m
sports-ground
Teren sportiv
Terenuri sport aprox. 461 m
restaurant
Cetatea Berarilor
Restaurant aprox. 737 m

Detalii despre preț și costuri

Prețul pe piață

Preț cerut: 149.000 €

Preț min. zonă 69.800 €
Preț max. zonă 200.000 €

88% dintre proprietățile similare ca zonă și nr. camere au prețul cerut mai mic. mai multe...

Bine de știut: prețul unei proprietăți este influențat și de alte caracteristici, cum ar fi: vechime, localizare, vecinătăți, suprafață, compartimentare, amenajări, dotări, etc. mai puțin...

Costuri cu achiziția

Fără credit
8.017 RON
Credit ipotecar
9.762 RON
Noua casă
899 RON+ taxe notariale

i

Costuri adiționale mai puțin știute la achiziție: taxe notariale, comisioane etc.

Proprietăți recomandate

Detalii de contact

R&D ADVISERS

Cristian Panait Project Manager

R&D ADVISERS
PRO

Abonează-te la newsletter să fii primul care primește cele mai noi recomandări de proprietăți și sfaturi de la experți.

CONTACT

Creează alertă

Salvează căutarea ca să primești pe email ultimele anunțuri publicate

Apartamente noi cu 2 camere de vânzare în zona Dristor, Sector 3