SVN Romania va propune spre vanzare un apartament deosebit, situat in prestigiosul ansamblu Alongside Unirii Fountains, chiar in zona 0 a Bucurestiului. Pozitionat strategic, la doar 200 m de Fantanile Unirii, 300 m de Piata Constitutiei si Palatul Parlamentului si 500 m de statia de metrou Unirii, apartamentul imbina perfect confortul urban cu avantajul unei locatii emblematice.
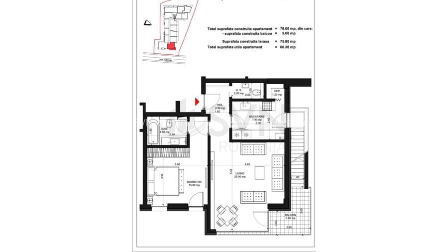
Proprietatea se desfasoara pe doua niveluri, avand o suprafata utila de 60 mp la etajul 2, compartimentata inteligent: living spatios si luminos, bucatarie inchisa cu debara, dormitor matrimonial cu baie proprie, baie secundara de serviciu – apartamentul beneficiind astfel de 2 bai.
Din balcon se face accesul catre etajul superior, unde se afla o terasa spectaculoasa de 52 mp, amenajata cu gradina urbana si oferind o panorama unica asupra Palatului Parlamentului si Mitropoliei.
Acest apartament reprezinta nu doar un spatiu unic pentru locuit, ci si o oportunitate excelenta de investitie, fiind pozitionat in una dintre cele mai cautate si valoroase zone ale Capitalei.
? Nu ezitati sa ne contactati pentru mai multe detalii si pentru a programa o vizionare!
Citește mai mult
Citește mai puțin
Confort lux
Decomandat
Acceptă animale de companie
Mobilat Mobilat
Aer condiționat
Centrală proprie
Încălzire prin pardoseală
Proprietate cu prețul cerut în afara intervalului mai multe...
Posibile explicații pentru faptul că prețul proprietății este peste cel maxim: imobil nou cu suprafață mare, are dotări și finisaje de lux.
Bine de știut: prețul unei proprietăți este influențat și de alte caracteristici, cum ar fi: vechime, localizare, vecinătăți, suprafață, compartimentare, amenajări, dotări, etc.
Costuri cu achiziția
Fără credit
13.202 RON
Credit ipotecar
15.588 RON
Noua casă
1.669 RON+ taxe notariale
i
Costuri adiționale mai puțin știute la achiziție: taxe notariale, comisioane etc.
Calculul ipotecarului
Proprietăți recomandate
Pornind de la căutarea ta îți recomandăm următoarele anunțuri
Sediul central - Timișoara
Bulevardul Victor Babeș nr. 2, 300230, Timișoara, România
Tel: +40.374.40.44.98 / Fax: +40.256.401.179
Email: suport@imobiliare.ro
Luni - Vineri 08:00 - 20:00
Punct de lucru - București: Iride Business Park, Bld. Dimitrie
Pompeiu 9-9A, Clădirea B2B,
020335, Sector 2, București, România
CONTACT
Sediul central - Timișoara
Bulevardul Victor Babeș nr. 2, 300230, Timișoara, România
Tel: +40.374.40.44.98 / Fax: +40.256.401.179
Email: suport@imobiliare.ro
Luni - Vineri 08:00 - 20:00
Punct de lucru - București: Iride Business Park, Bld. Dimitrie
Pompeiu 9-9A, Clădirea B2B,
020335, Sector 2, București, România
Academia de Studii Economice: Facultatea de Management - Administratie Publica
aprox.
743 m
Academia de Studii Economice
aprox.
751 m
Academia Tehnica Militara
aprox.
951 m
Universitatea din Bucuresti
aprox.
1014 m
Facultatea de medicina veterinara
aprox.
1107 m
Facultatea de Sociologie si Asistenta Sociala
aprox.
1155 m
Facultatea de Sociologie și Asistență Socială
aprox.
1167 m
Institutul Bancar Român
aprox.
1225 m
Facultatea de Stiinte
aprox.
1229 m
Facultatea de Medicina Veterinara (en)
aprox.
1255 m
Clinica de Protetica si Ocluzologie si Clinica de Pedodontie
aprox.
1255 m
Facultatea de Istorie
aprox.
1256 m
Facultatea de Matematica-Informatica
aprox.
1263 m
Mega Image
aprox.
283 m
Mega Image
aprox.
331 m
Carrefour Express
aprox.
410 m
Profi Non-Stop
aprox.
491 m
Succes
aprox.
771 m
Shop & Go
aprox.
776 m
dm
aprox.
810 m
Mag.Victoria
aprox.
928 m
Mega Image
aprox.
944 m
Mega Image (en)
aprox.
956 m
Mega Image
aprox.
997 m
Cocor
aprox.
1058 m
BILLA - Cocor
aprox.
1059 m
Carrefour Unirii Non-Stop
aprox.
1074 m
Mega Image Elisabeta Non-Stop
aprox.
1095 m
Parcare
aprox.
167 m
Parcare
aprox.
261 m
Parcare
aprox.
311 m
Parcare
aprox.
339 m
Parcare
aprox.
346 m
Parcare
aprox.
415 m
Parcare
aprox.
416 m
Parcare
aprox.
417 m
Parcare
aprox.
548 m
Parcare
aprox.
549 m
Parcare
aprox.
549 m
Parcare
aprox.
550 m
Parcare
aprox.
581 m
Parcare
aprox.
599 m
Parcare
aprox.
607 m
Parc
aprox.
64 m
Parc
aprox.
199 m
Parc
aprox.
254 m
Parc
aprox.
300 m
Parc
aprox.
321 m
Parc
aprox.
356 m
Parc
aprox.
364 m
Parc
aprox.
371 m
Dealul Mitropoliei
aprox.
379 m
Parc
aprox.
398 m
Parc
aprox.
522 m
Parc
aprox.
526 m
Parc
aprox.
554 m
Parc
aprox.
594 m
Piata Bibescu
aprox.
618 m
Piața Constituției
aprox.
265 m
Piața Regina Maria
aprox.
475 m
Piata Natiunilor Unite
aprox.
561 m
Piata Bibescu
aprox.
618 m
Piața Sfântul Anton
aprox.
907 m
Piata Timpului
aprox.
1056 m
Piata Roma
aprox.
1070 m
Piața Drapelului (Tricolorului)
aprox.
1146 m
P-ta Chirigiu
aprox.
1210 m
Piata Bucur
aprox.
1225 m
Piata Arsenalului
aprox.
1234 m
Piata Universitatii
aprox.
1410 m
Piata Revolutiei
aprox.
1581 m
Piata Rosetti
aprox.
1612 m
Jose Rizal Square (en)
aprox.
1635 m
Teren sportiv
aprox.
830 m
Teren sportiv
aprox.
933 m
Teren sportiv
aprox.
938 m
Teren sportiv
aprox.
965 m
Teren sportiv
aprox.
976 m
Teren sportiv
aprox.
1312 m
Teren sportiv
aprox.
1328 m
Teren sportiv
aprox.
1333 m
Teren sportiv
aprox.
1347 m
Teren sportiv
aprox.
1349 m
Teren sportiv
aprox.
1363 m
Teren sportiv
aprox.
1374 m
Baza sportiva Universitatea Bucuresti
aprox.
1439 m
Teren sportiv
aprox.
1444 m
Teren Antrenament
aprox.
1453 m
Homeofarm
aprox.
307 m
Pharma Vic
aprox.
403 m
Farmacia Belladonna 54
aprox.
680 m
Farmacia 48
aprox.
695 m
Sensiblu
aprox.
833 m
Farmacia 20
aprox.
867 m
Plafar
aprox.
912 m
Centro Farm
aprox.
921 m
Farmnicol
aprox.
937 m
Alma Farm Com 95
aprox.
975 m
Farmacia Dona 19
aprox.
990 m
Urgent Farm
aprox.
1006 m
Plafar
aprox.
1008 m
Farmacia Dona 6
aprox.
1045 m
SensiBlu
aprox.
1054 m
Oftapro
aprox.
738 m
Institutul National de Recuperare
aprox.
780 m
Policlinica Ministerului de Interne
aprox.
781 m
Spitalul Clinic Prof. Dr. Doc Ovidiu Marina
aprox.
794 m
Medlife Unirii
aprox.
797 m
Centru medical MEDSANA
aprox.
923 m
Clinica Audionova
aprox.
933 m
Europe EYE Hospital (en)
aprox.
972 m
Europe Eye
aprox.
972 m
Medicover (en)
aprox.
1070 m
Clinica Polisano
aprox.
1091 m
Institutul Victor Babes
aprox.
1241 m
Maternitatea Bucur
aprox.
1251 m
Spitalul Clinic de Chirurgie Oro-Maxilo-Faciala
aprox.
1311 m
Spitalul Colțea
aprox.
1321 m
Haute Pepper
aprox.
153 m
Haute Pepper
aprox.
175 m
Restaurant Zariștea
aprox.
200 m
Jaristea
aprox.
212 m
eggsmania
aprox.
220 m
Palladiul
aprox.
275 m
Restaurant La Chef Calcan
aprox.
292 m
La Giganto
aprox.
374 m
Restaurant La Giganto
aprox.
388 m
Restaurant Business
aprox.
408 m
Hanu' Berarilor
aprox.
417 m
Casa Sarbeasca
aprox.
426 m
Caffe Carina
aprox.
442 m
La Fantani
aprox.
468 m
The Vine Club & Bistro
aprox.
487 m
Cofetaria Raisa
aprox.
445 m
Angel Cafe
aprox.
494 m
Dalidana
aprox.
505 m
Bio Cream gelateria
aprox.
657 m
Unique
aprox.
766 m
La Folie
aprox.
766 m
Cafe Deko
aprox.
779 m
Buen Humor
aprox.
782 m
Double Deuce's
aprox.
784 m
Arcade Cafe
aprox.
787 m
Crepes & Gelato artigianale
aprox.
790 m
Gelato Mio
aprox.
805 m
Switch
aprox.
817 m
Les Bourgeois
aprox.
822 m
Starbucks
aprox.
830 m
Braserie Cosbuc
aprox.
477 m
Big Mamou
aprox.
723 m
B Bar
aprox.
732 m
55 Jazz
aprox.
750 m
Nargila Grill&Bar
aprox.
753 m
Qetesh
aprox.
756 m
True Social Club
aprox.
788 m
Bound Club
aprox.
798 m
Corelli Wine Bar
aprox.
804 m
Izzy Bar
aprox.
807 m
Zapata Tequilla Bar
aprox.
809 m
Freddo
aprox.
810 m
La Comedie
aprox.
816 m
Scarlet Secret Garden
aprox.
820 m
Himera
aprox.
828 m
Club Fabrica
aprox.
587 m
Long Fong
aprox.
641 m
D`eight Pub
aprox.
709 m
Queen and Clown Pub
aprox.
737 m
Old City
aprox.
749 m
Oktoberfest 3
aprox.
753 m
Explorer's Irish Pub
aprox.
754 m
O`Hara Irish Pub
aprox.
768 m
The Bankers
aprox.
792 m
The Harp
aprox.
792 m
Goblin Club
aprox.
796 m
Carol Cafe
aprox.
803 m
Cliche Club & Lounge
aprox.
814 m
The Vintage Pub
aprox.
815 m
Brauhaus 41
aprox.
823 m
Bancpost
aprox.
198 m
Banc post
aprox.
204 m
Volksbank
aprox.
268 m
BRD Libertatii
aprox.
351 m
Raiffeisen Bank
aprox.
359 m
BRD
aprox.
359 m
Raiffeisen
aprox.
361 m
Volksbank
aprox.
465 m
BCR
aprox.
468 m
Raiffeisen Bank
aprox.
489 m
BCR
aprox.
500 m
Intesa
aprox.
507 m
BRD Splai
aprox.
596 m
BancPost
aprox.
598 m
Banca EximBank
aprox.
607 m
Stațiile de metrou aflate chiar în "inima" acestei zone, în Piața Unirii, îți oferă posibilitatea de a călători rapid, evitând aglomerația din trafic. Stația Piața Unirii 1 oferă conexiuni la magistrala M1 Dristor - Pantelimon și la magistrala M3 Preciziei - Anghel Saligny. Aceasta este conectată de stația Piața Unirii 2, aflată pe magistrala M2 Berceni - Pipera printr-un pasaj. Astfel, poți ajunge chiar și în mai puțin de 10 minute în zona Politehnică sau la Piața Victoriei și în circa 15 minute în Pipera, unul dintre principalii poli de business ai orașului. Cu autobuzul 104 poți ajunge în cartierul Pantelimon, iar cu tramvaiul 47 în cartierul Rahova. Consultă harta pentru a localiza stațiile mijloacelor de transport în comun.
Printre unitățile de învățământ din această zonă se numără Colegiul Național "Mihai Eminescu", Colegiul Național "Ion Creangă", Colegiul Național de Arte "Dinu Lipatti" și Facultatea de Teologie Ortodoxă "Justinian Patriarhul". Tot aici își are sediul și Institutul Bancar Român care ajută la specializarea personalului din sectorul financiar-bancar. Ajungi foarte repede din Piața Unirii, chiar și pe jos, la Palatul Universității care găzduiește sediile mai multor facultăți. Găsește pe hartă și cele mai apropiate grădinițe, școli și licee de viitoarea ta locuință.
Dacă te vei muta în această zonă, vei avea la doi pași de casă centrul comercial Unirea Shopping Center, care găzduiește, printre altele, magazinele mai multor branduri de modă. În spatele acestuia vei găsi un hipermarket Carrefour. Diverse magazine pot fi găsite și în Centrul Vechi. Pe Strada Lipscani poți să vizitezi una dintre cele mai frumoase librării din Capitală, Cărturești Carusel. Magazin Cocor, care a fost modernizat recent, poate fi și el o alternativă. În imediata sa vecinătate se află și noul magazin București. Pentru mai multe opțiuni, poți merge la București Mall, cel mai apropiat centru comercial de acest tip. Consultă harta pentru a vedea ce alte opțiuni ai în zona Unirii și în împrejurimi.
Lângă Centrul Comercial Unirea Shopping Center vei găsi o parcare supraterană unde îți poți lăsa mașina contra-cost. Dacă te gândești să te muți în zona Piața Unirii îți amintim, de asemenea, că traficul pe Bulevardul Unirii este destul de îngreunat la orele de vârf. Nu uita, totodată, că traficul rutier este închis uneori în Piața Constituției pentru organizarea unor evenimente și concerte. Pentru închirierea unui loc de parcare în apropierea locuinței de care ești interesat va trebui să apelezi la reprezentanții autorităților locale de pe sectorului în care se află aceasta (Direcția Generală Impozite și Taxe Locale Sector 3, Direcția Mobilitate Urbană Sector 4, Serviciul Parcaje Scop Reședință Sector 5). Consultă harta pentru a localiza mai ușor principalele parcări din zona Unirii.
Dacă decizi să te muți într-o locuință în zona Unirii, atunci vei avea la dispoziție numeroase opțiuni de petrecere a timpului liber. Chiar în Piața Unirii vei găsi unul dintre binecunoscutele obiective ale orașului, Hanul lui Manuc. Construit în 1808 acesta a fost renovat în urmă cu câțiva ani și găzduiește, în prezent, mai multe cafenele, restaurante și mici magazine. Acesta se află chiar la marginea Centrului Vechi al Capitalei, principalul punct de atracție pentru iubitorii vieții de noapte. Tot aici găsești și câteva obiective turistice importante - Palatul Voievodal Curtea Veche, Palatul BNR, Muzeul Național de Istorie a României și Muzeul Municipal București. Parcurile Izvor și Unirii sunt principalele spații verzi din această zonă. Nu trebuie să uiți însă că nu va trebui să mergi mult pentru a ajunge și la Grădina Cișmigiu sau în Parcul Tineretului. Poți merge, totodată, la un spectacol la Teatrul Evreiesc de Stat sau poți participa la evenimentele și la concertele care se organizează periodic în Piața Constituției de lângă Palatul Parlamentului. Poți lua parte la diverse evenimente și vizitând Biblioteca Națională a României, o altă clădire reprezentativă din această zonă. Ajungi foarte ușor, pe jos sau cu metroul, la Teatrul Național București în fața căruia găsești și un mic parc. Iar dacă toate acestea nu sunt de ajuns, atunci o plimbare pe Calea Victoriei și o vizită la numeroasele obiective de interes aflate de-a lungul ei cu siguranță te vor satisface. Cea mai bună parte este că această arteră de circulație se închide circulației rutiere uneori și devine strict pietonală. În plus, aici ai la dispoziție una dintre puținele piste dedicate bicicliștilor din oraș. Consultă harta pentru a vedea ce alte opțiuni de petrecere a timpului liber vei avea odată ce te vei muta în zona Unirii.
Dacă te vei muta în această zonă, vei putea apela în caz de nevoie la câteva clinici private. Printre acestea amintim Hiperclinica MedLife Unirii, clinica de stomatologie DentaLife și Medas Unirea. Unele dintre cele mai apropiate spitale la care vei avea acces vor fi Spitalul Cinic Colțea din Piața Universității și Spitalul Clinic Prof. Dr. Theodor Burghele, aflat în apropierea Palatului Parlamentului. Vezi pe hartă ce alte unități medicale se află în zona Unirii și în vecinătatea sa.
Centrul Vechi îți oferă numeroase opțiuni la acest capitol, iar câteva fast food-uri ai la dispoziție la parterul centrului comercial Unirea Shopping Center, situat chiar în Piața Unirii. Găsești câteva terase și pe malul Dâmboviței, lângă Biblioteca Națională a României. Dacă vrei să schimbi peisajul, poți să ajungi destul de repede cu mașina sau cu mijloacele de transport în comun la București Mall sau poți încerca una dintre numeroasele terase din Piața Alba Iulia sau de pe Bulevardul Decebal. Mai mult, ai relativ aproape și Calea Victoriei, perfectă pentru promenadă, dar și pentru un popas la restaurant. Consultă harta și află care sunt cele mai apropiate localuri de viitoarea ta locuință.
Găsești mai multe ATM-uri și sucursale bancare în Piața Unirii, unele dintre ele chiar în incinta complexului comercial Unirea Shopping Center. Vezi care este cel mai potrivit pentru tine de pe hartă.
Înainte să pleci...
Ești sigur că ai văzut și aceste proprietăți?
270.000 €
București, P-ța Unirii
2 camere
54 mp
Etaj 1 / 4
280.000 €
București, Unirii
2 camere
56 mp
Etaj 2 / 4
325.000 € + TVA
București, Unirii
2 camere
82,6 mp
Etaj 3
191.120 € + TVA
București, P-ța Unirii
2 camere
47,77 mp
Etaj 1 / 3
129.999 €
București, P-ța Unirii
2 camere
45 mp
Etaj 4
265.000 €
București, Regina Elisabeta
2 camere
68,17 mp
Etaj 1 / 4
Creează alertă
Salvează căutarea ca să primești pe email ultimele anunțuri publicate
Apartamente noi cu 2 camere de vânzare în zona P-ța Unirii, Sector 3
Cere detalii prin email
*
*
*
*
Detaliile tale de contact vor fi partajate cu Svn Romania | Residentialist | Floreasca
Statistici proprietate
Apartamente 2 camere de vânzare
- București
- Zona P-ța Unirii
Asigurare de viață/lună Costul este variabil. În funcție de banca aleasă, procentul variază între 0.0259% și 0.035% din soldul creditului.
Costuri cu achiziția15.588 RON
Comision agenție Întreabă agenţia
Onorariu notarial10.909 RON
Taxă întabulare OCPI2.293 RON
Autentificare contract credit2.386 RON
Preț de achiziție1.528.920 RON
Preț locuință1.528.920 RON
TVA 0%Inclus în prețul cerut
Preț de achiziție1.528.920 RON
Preț locuință1.528.920 RON
TVA 0%
Inclus în prețul cerut
Avans minim922.246 RON
Credit pe 30 de ani606.674 RON
Cost achitat în prima lună
Taxa evaluare imobil(până la)
575 RON
Rata lunară (variabilă)4.263 RON
Depozit colateral12.789 RON
Comision de garantare FNGCIMM127 RON
Asigurare anuală imobil1.529 RON
Poliță PAD130 RON
Tarif arhivă electronică102 RON
Costuri adiționale1.669 RON + taxe notariale
Asigurare viață și complexă (opțională)Costul este variabil. În funcție de banca aleasă, procentul variază între 0.0259% și 0.035% din soldul creditului
Onorariu notarialconform tarif notarial
Taxă întabulare OCPI1.669 RON
i
Toate valorile de mai sus sunt estimative și nu reprezintă în mod obligatoriu costurile exacte pe care le veți primi de la companiile/instituțiile prin care veți încheia tranzacția.