9

vanzare apartament 2 camere, Nicolae Grigorescu, bloc 2025 in constructie, eta

85.800 €

Sălăjan, București

Nr. cam.:
2
Sup. utilă:
52 mp
Etaj:
1
An constr.:
2025
  • • Comision 0%
  • • Locație aproximativă
  • • Vizionare prin apel video

Descriere apartament

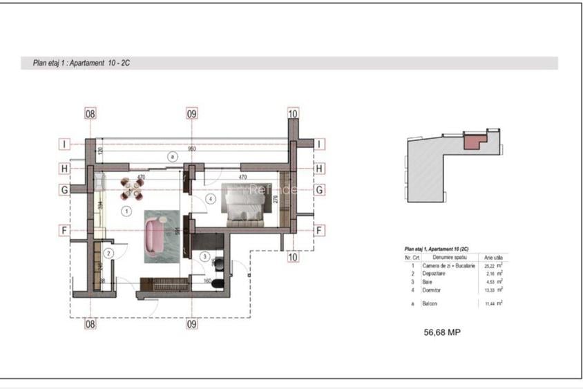
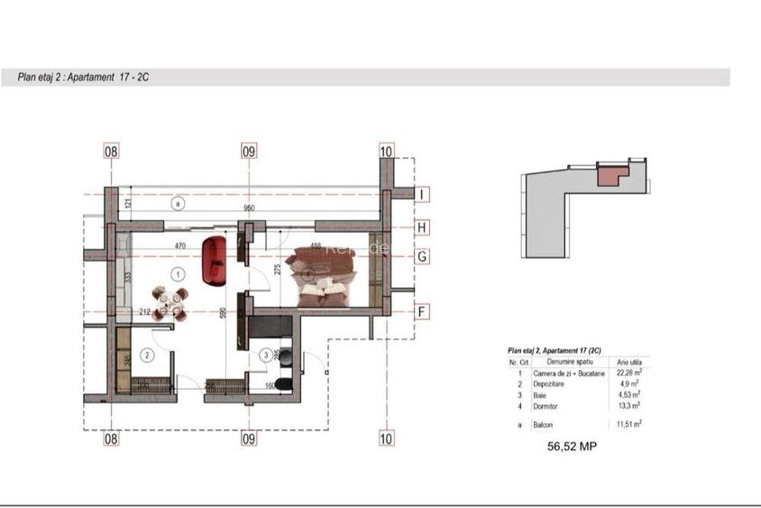
Va propunem spre vanzare, apartamente 2 camere, bloc 2025, P+3E, zona Nicolae Grigorescu - Salajan. Facem descrierea unui apartament de la etajul 1, de 52mp utili plus balcon , confort 1 , decomandat, cu finisaje , la cheie. Cu acces imediat la metrou , piata, scoli, gradinite si in zona frumoasa de case noi - str Marului reper. In prezentare regasiti planuri, fotografii constructie, foto din diferite etape ale constructiei. Pentru detalii suplimentare, vizionare, va stam la dispozitie. Pret vanzare: 1650E mp = 85.800Euro + TVA In acest imobil rezidential avem atat studiouri, cat si 2 si 3 camere la vanzare, acelasi pret de 1650E mp + TVA, cu finalizare la cheie 2026. Comision 0 la cumparare.
Citește mai mult Citește mai puțin
Confort 1 Decomandat 1 Balcon / Terasă / Logie Centrală proprie 1 Parcare

Detalii apartament

ID anunț: X54H107VL Copiat! 274604004 Copiat!
Actualizat în: 16 Martie 2026
Suprafață utilă totală: 52 mp
Suprafață construită: 58 mp
Nr. băi: 1
Structură rezistență: Altele
Tip imobil: Bloc de apartamente
Regim înălțime: P+3E

Utilități

Destinație
Rezidențial
Izolații termice
Exterior
Ferestre cu geam termopan
PVC
Facilități imobil
Lift Interfon
Amenajare străzi
Asfaltate
Comision
0%

Certificat energetic:

Clasa energetică: A

Vecinătăți:

Scoala/gradinita, Piata, Benzinarie, Banca, Zona comerciala, Autobuz, Metrou

Puncte de interes

Mijloace transport
bus-station
Statia Dumbrava Noua, Liniile N111, N103, 23, 27
Stații autobuz aprox. 489 m
tram-station
Dumbrava Noua
Stații tramvai aprox. 489 m
metro-station
Metrorex. Stația 1 Decembrie 1918 (M3) Lift
Stații metrou aprox. 526 m
bus-station
statie tramvai -23, 27 si 40 - PIATA TRAPEZULUI / Bd. 1 Decembrie 1918
Stații autobuz aprox. 559 m
Școală
school
Scoala Generala cu clasele I-VIII, nr. 92
Școli aprox. 308 m
school
Scoala Generala nr.92
Școli aprox. 318 m
kindergarten
Gradinita de copii nr. 211
Gradinițe aprox. 490 m
university
Universitatea "Gheorghe Cristea"
Universități aprox. 1879 m
Recreere
park
Parc
Parcuri aprox. 203 m
sports-ground
Teren sportiv
Terenuri sport aprox. 215 m
bar
Bistro Burghez
Bar aprox. 456 m
supermarket
BI & DI
Supermarket aprox. 576 m

Detalii despre preț și costuri

Prețul pe piață

Preț cerut: 85.800 €

Preț min. zonă 69.900 €
Preț max. zonă 140.000 €

67% dintre proprietățile similare ca zonă și nr. camere au prețul cerut mai mare. mai multe...

Bine de știut: prețul unei proprietăți este influențat și de alte caracteristici, cum ar fi: vechime, localizare, vecinătăți, suprafață, compartimentare, amenajări, dotări, etc. mai puțin...

Costuri cu achiziția

Fără credit
5.441 RON
Credit ipotecar
6.873 RON
Noua casă
577 RON+ taxe notariale

i

Costuri adiționale mai puțin știute la achiziție: taxe notariale, comisioane etc.

Proprietăți recomandate

Detalii de contact

Refinder Elite

Ioana Manea Broker imobiliar

4.00(5 review-uri)

Refinder Elite
PRO

Abonează-te la newsletter să fii primul care primește cele mai noi recomandări de proprietăți și sfaturi de la experți.

CONTACT

Creează alertă

Salvează căutarea ca să primești pe email ultimele anunțuri publicate

Apartamente cu 2 camere de vânzare în zona Sălăjan, Sector 3