Apartament 2 camere decomandat - super pret - direct dezvoltator

92.980 € + TVA

Theodor Pallady, București

Nr. cam.:
2
Sup. utilă:
62,57 mp
Etaj:
1 / 4
An constr.:
2026 (În construcție)
  • • Locație exactă

Descriere apartament

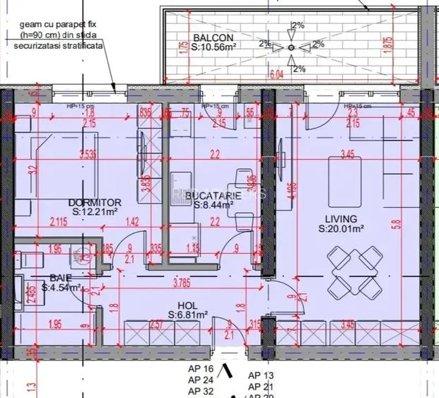
Apartament cu 2 camere decomandat , situat într-un proiect nou, cu preț promoțional valabil pentru primele 4 unități. Imobilul are toate utilitățile racordate la rețeaua orașului, iar zona beneficiază de infrastructură completă – străzi asfaltate și iluminate. Localizare foarte bună, la aproximativ 12–15 minute de mers pe jos până la stația de metrou Nicolae Teclu. În apropiere regăsiți toate facilitățile necesare, zona in plina dezvoltare Dotări: încălzire în pardoseală, aer condiționat preinstalat (dumneavoastră veniți doar cu unitatea), gresie, faianță și parchet la alegere. Pentru detalii suplimentare sau vizionări, vă stau la dispoziție! VAUNT ID: 110561
Citește mai mult Citește mai puțin
Confort 1 Decomandat 1 Balcon / Terasă / Logie Centrală proprie Încălzire prin pardoseală

Detalii apartament

ID anunț: X7QH201I0 Copiat! 275224333 Copiat!
Actualizat în: 09 Martie 2026
Suprafață utilă totală: 62.57 mp
Nr. bucătării: 1
Nr. băi: 1
Structură rezistență: Beton
Tip imobil: Bloc de apartamente
Regim înălțime: P+4E

Utilități

Destinație
Rezidențial
Pereți
Vopsea lavabilă Faianță
Podele
Gresie
Ușă intrare
Parchet Metal
Ferestre cu geam termopan
PVC Lemn
Contorizare
Apometre Contor căldură Contor gaz
Diverse
Senzor de fum Sistem de alarmă
Facilități imobil
Interfon Lift
Utilități
Gaze CATV Curent Apă Canalizare
Internet
Fibră optică Cablu Wireless Dial-up
Servicii imobil
Administrare Supraveghere video
Amenajare străzi
Iluminat stradal Mijloace de transport în comun Asfaltate

Puncte de interes

Mijloace transport
tram-station
Complex RATB Titan
Stații tramvai aprox. 730 m
bus-station
RATB Titan, Linia 246, N111, 23, 27, 40
Stații autobuz aprox. 730 m
tram-station
Chimopar
Stații tramvai aprox. 745 m
metro-station
Metrorex.Stația Nicolae Teclu (M3)(2008)
Stații metrou aprox. 908 m
Școală
school
Spectrum Liceul Teoretic International de Informatica
Școli aprox. 809 m
kindergarten
Gradinita nr. 68
Gradinițe aprox. 1418 m
school
Scoala gimnaziala nr.2 - Catelu
Școli aprox. 1658 m
kindergarten
Gradinita Nr. 160 - "soarelui"
Gradinițe aprox. 1777 m
Recreere
park
Parc
Parcuri aprox. 324 m
supermarket
Metro Pallady
Supermarket aprox. 441 m
hypermarket
Metro
Hipermarket aprox. 441 m
sports-ground
Teren de fotbal
Terenuri sport aprox. 1677 m

Detalii despre preț și costuri

Prețul pe piață

Preț cerut: 92.980 €

Preț min. zonă 69.900 €
Preț max. zonă 140.000 €

78% dintre proprietățile similare ca zonă și nr. camere au prețul cerut mai mare. mai multe...

Bine de știut: prețul unei proprietăți este influențat și de alte caracteristici, cum ar fi: vechime, localizare, vecinătăți, suprafață, compartimentare, amenajări, dotări, etc. mai puțin...

Costuri cu achiziția

Fără credit
6.697 RON
Credit ipotecar
8.287 RON
Noua casă
713 RON+ taxe notariale

i

Costuri adiționale mai puțin știute la achiziție: taxe notariale, comisioane etc.

Proprietăți recomandate

Detalii de contact

R&D ADVISERS

Dragos Dumitrascu

R&D ADVISERS
PRO

Abonează-te la newsletter să fii primul care primește cele mai noi recomandări de proprietăți și sfaturi de la experți.

CONTACT

Creează alertă

Salvează căutarea ca să primești pe email ultimele anunțuri publicate

Apartamente cu 2 camere de vânzare în zona Theodor Pallady, Sector 3