AP. 2 CAMERE, BLOC NOU - TERASA 32 MP, MUTARE IMEDIATA ,COMISION 0%

140.000 €

Theodor Pallady, București

Nr. cam.:
2
Sup. utilă:
84,5 mp
Etaj:
3 / 4
An constr.:
2025 (Finalizată)
  • • Comision 0%
  • • Locație aproximativă
  • • Vizionare prin apel video

Descriere apartament

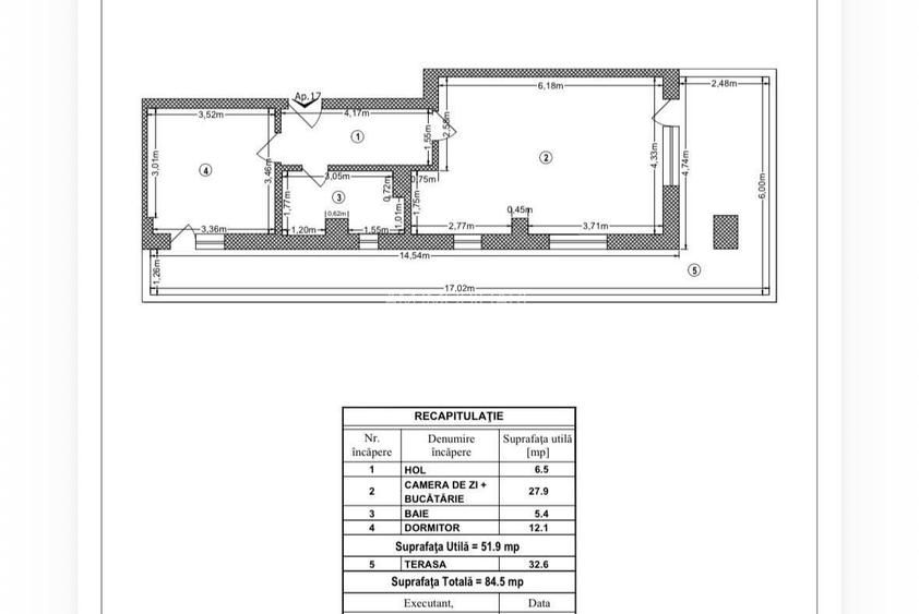
AM Imobiliare va prezinta spre vanzare un apartament cu 2 camere, decomandat, modern, situata in zona Theodor Pallady. Acesta este amplasat la etajul 3/4 , intr-un imobil nou din anul 2025 si se intinde pe o suprafata utila de 84.5 mp, inclusiv 1 balcon de 32.6 mp. Confortul termic este asigurat cu ajutorul centralei proprii cu incalzire prin pardoseala. Bucataria este deschisa. Facilitati suplimentare, bazine tratate cu ioni de argint Aquapur, hidranti stingere incendiu, grup pompare, detectie incendiu. Locul de parcare supraterana se achizitioneaza separat, fiind 10.000 euro. Pret: 140.000 euro - COMISION 0%. Daca doresti mai multe detalii, nu ezita sa ne contactezi, te vom insoti la vizionare si iti vom oferi toate detaliile de care ai nevoie! De asemenea te invit pe site-ul agentiei noastre, , pentru a vedea si alte proprietati pe care le avem in portofoliu.
Citește mai mult Citește mai puțin
Confort 1 Decomandat 1 Balcon / Terasă / Logie Aer condiționat Centrală proprie Încălzire prin pardoseală 1 Parcare

Detalii apartament

ID anunț: XC2M10F4N Copiat! 275258341 Copiat!
Actualizat în: 12 Martie 2026
Suprafață construită: 94.5 mp
Nr. bucătării: 1
Nr. băi: 1
Structură rezistență: Beton
Tip imobil: Bloc de apartamente
Regim înălțime: P+4E

Utilități

Destinație
Rezidențial
Pereți
Faianță Vopsea lavabilă
Podele
Gresie Parchet
Ușă intrare
Metal
Uși interior
Celulare
Izolații termice
Exterior
Ferestre cu geam termopan
PVC
Contorizare
Apometre Contor căldură Contor gaz
Diverse
Senzor de fum Telecomandă poartă acces auto
Facilități imobil
Acoperiș Interfon
Utilități
Curent Apă Canalizare CATV Gaze Telefon
Internet
Cablu Wireless
Servicii imobil
Pază Supraveghere video
Amenajare străzi
Iluminat stradal Mijloace de transport în comun Asfaltate
Comision
0%

Disponibilitate proprietate:

Imediat

Puncte de interes

Mijloace transport
bus-station
statie tramvai STIROM :23- 27 - 40
Stații autobuz aprox. 493 m
tram-station
STIROM
Stații tramvai aprox. 503 m
bus-station
Statia Policolor, Linia N111, 23, 27, 40
Stații autobuz aprox. 551 m
metro-station
Metrorex.Stația Nicolae Teclu (M3)(2008)
Stații metrou aprox. 691 m
Școală
kindergarten
Gradinita nr. 68
Gradinițe aprox. 480 m
kindergarten
Gradinita Nr. 160 - "soarelui"
Gradinițe aprox. 744 m
school
Scoala Nr. 149
Școli aprox. 788 m
school
Școala Nr. 82
Școli aprox. 989 m
Recreere
sports-ground
Teren de fotbal
Terenuri sport aprox. 651 m
park
Parc
Parcuri aprox. 719 m
supermarket
Penny
Supermarket aprox. 728 m
hypermarket
Decathlon
Hipermarket aprox. 950 m

Detalii despre preț și costuri

Prețul pe piață

Preț cerut: 140.000 €

Preț min. zonă 69.900 €
Preț max. zonă 140.000 €

65% dintre proprietățile similare ca zonă și nr. camere au prețul cerut mai mare. mai multe...

Bine de știut: prețul unei proprietăți este influențat și de alte caracteristici, cum ar fi: vechime, localizare, vecinătăți, suprafață, compartimentare, amenajări, dotări, etc. mai puțin...

Costuri cu achiziția

Fără credit
7.707 RON
Credit ipotecar
9.414 RON
Noua casă
853 RON+ taxe notariale

i

Costuri adiționale mai puțin știute la achiziție: taxe notariale, comisioane etc.

Proprietăți similare

Apartament cu 3 camere decomandat în Theodor Pallady
136.085 € + TVA
București, Theodor Pallady
3 camere
77 mp
Etaj 1 / 5
Apartament cu 3 camere decomandat în Theodor Pallady
145.000 € + TVA
București, Theodor Pallady
3 camere
68,9 mp
Etaj 6 / 11
Apartament cu 2 camere decomandat în Theodor Pallady
128.500 €
București, Theodor Pallady
2 camere
49,24 mp
Etaj 2

Detalii de contact

AM IMOBILIARE

Mihaela Mariuta Manager

4.55(23 review-uri)

AM IMOBILIARE
PRO

Abonează-te la newsletter să fii primul care primește cele mai noi recomandări de proprietăți și sfaturi de la experți.

CONTACT

Creează alertă

Salvează căutarea ca să primești pe email ultimele anunțuri publicate

Apartamente noi cu 2 camere de vânzare în zona Theodor Pallady, Sector 3