Apartament 3 camere - Titan

115.000 €

Titan, București

Nr. cam.:
3
Sup. utilă:
59 mp
Etaj:
Parter / 10
An constr.:
1977 (Finalizată)
  • • Locație aproximativă

Descriere apartament

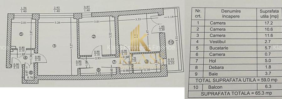
Apartament cu 3 camere din Titan – primitor, luminos. Livingul generos e locul perfect pentru serile petrecute impreuna, la un film sau o cina relaxata. Bucataria spatioasa devine centrul case. Dormitoarele ofera liniste si confort, iar balconul este coltul ideal pentru o cafea dimineata sau pentru a privi apusul dupa o zi lunga. Zona: Titan – aproape de Parcul IOR, metrou, scoli si magazine Etaj: Parter/ 10. Suprafata utila: 59.0 mp Compartimentare: semidecomandat An constructie: 1977
Citește mai mult Citește mai puțin
Confort 1 Semidecomandat Nemobilat 1 Balcon / Terasă / Logie Calorifere Termoficare Renovat

Detalii apartament

ID anunț: XFVH1005A Copiat! 270588692 Copiat!
Actualizat în: 05 Februarie 2026
Suprafață construită: 65.3 mp
Nr. bucătării: 1
Nr. băi: 1
Tip imobil: Bloc de apartamente
Regim înălțime: D+P+10E

Utilități

Destinație
Rezidențial
Jaluzele
Orizontale
Pereți
Vopsea lavabilă
Podele
Parchet Gresie
Ușă intrare
Metal
Uși interior
Lemn
Izolații termice
Bloc izolat termic
Contorizare
Apometre Contor căldură Contor gaz
Facilități imobil
Interfon
Utilități
Curent Apă Canalizare Gaze
Amenajare străzi
Asfaltate
Comision
2%+TVA

Disponibilitate proprietate:

imediat

Puncte de interes

Mijloace transport
bus-station
Capat linii RATB "Barajul Dunării", linia 253, 330, 335, N104,92
Stații autobuz aprox. 349 m
metro-station
Metrorex.Statia Titan (M1)
Stații metrou aprox. 524 m
tram-station
Postavarului
Stații tramvai aprox. 789 m
trolleybus-station
statie troleu 70,92,79 (en)
Stații troleibuz aprox. 1210 m
Școală
kindergarten
Gradinita de copii nr.191
Gradinițe aprox. 202 m
kindergarten
Gradinita nr. 191
Gradinițe aprox. 219 m
school
Scoala Generala Nr. 196 "Federico Garcia Lorca"
Școli aprox. 253 m
university
Facultatea Științe Economice, Titu Maiorescu ( Facultatea Tatianei )
Universități aprox. 1545 m
Recreere
park
Loc de joaca
Parcuri aprox. 47 m
sports-ground
Teren sportiv
Terenuri sport aprox. 119 m
restaurant
Nufarul Titan
Restaurant aprox. 302 m
supermarket
Shop&Go Nicolae Grigorescu 20
Supermarket aprox. 337 m

Detalii despre preț și costuri

Prețul pe piață

Preț cerut: 115.000 €

Preț min. zonă 93.000 €
Preț max. zonă 199.000 €

66% dintre proprietățile similare ca zonă și nr. camere au prețul cerut mai mic. mai multe...

Bine de știut: prețul unei proprietăți este influențat și de alte caracteristici, cum ar fi: vechime, localizare, vecinătăți, suprafață, compartimentare, amenajări, dotări, etc. mai puțin...

Costuri cu achiziția

Fără credit
6.817 RON
Credit ipotecar
8.418 RON
Noua casă
726 RON+ taxe notariale

i

Costuri adiționale mai puțin știute la achiziție: taxe notariale, comisioane etc.

Proprietăți recomandate

Detalii de contact

Klass Estates & Finance

Lorena Hurduc Senior Consultant

Klass Estates & Finance
PRO

Abonează-te la newsletter să fii primul care primește cele mai noi recomandări de proprietăți și sfaturi de la experți.

CONTACT

Creează alertă

Salvează căutarea ca să primești pe email ultimele anunțuri publicate

Apartamente cu 3 camere de vânzare în zona Titan, Sector 3