1

Apartament 3 camere Titan

99.900 €

Titan, București

Nr. cam.:
3
Sup. utilă:
60 mp
Etaj:
Parter / 4
An constr.:
1968 (Finalizată)
  • • Locație aproximativă
  • • Vizionare prin apel video

Descriere apartament

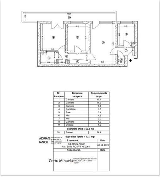
ID intern: 365805. Va propunem spre vanzare un apartament cu 3 camere, semidecomandat, confort 1, situat in zona Titan, reper Restaurant Alba, intr-un imobil construit in anul 1968, disponibil la etajul parter din 4, cu o suprafata de 75 mp, baie, balcon, bucatarie. Imobilul este situat in apropiere de piata, statie STB, scoli, gradinita. Vizionarea acestui imobil se face doar in baza semnării unui acord de vizionare conform codului civil, art 2.096-2.102 . Acordam indrumare in vederea acordarii unui credit bancar (BRD, FIRST BANK, ALPHA BANK, PATRIA BANK, BANCA TRANSILVANIA) Se percepe comision 3%. Politica agentiei este de a optimiza negocierea pretului in raport cu comisionul.
Citește mai mult Citește mai puțin
Confort 1 Semidecomandat 1 Balcon / Terasă / Logie Termoficare

Detalii apartament

ID anunț: X9I62018G Copiat! 275192418 Copiat!
Actualizat în: 04 Martie 2026
Suprafață utilă totală: 60 mp
Suprafață construită: 75 mp
Nr. bucătării: 1
Nr. băi: 1
Structură rezistență: Altele
Tip imobil: Bloc de apartamente
Regim înălțime: P+4E

Utilități

Destinație
Rezidențial
Ferestre cu geam termopan
PVC
Comision
3%

Vecinătăți:

Scoala/gradinita, Restaurant/pub, Mall, Parc, Piata, Trafic Pietonal, Fastfood, Cinema, Supermarket, Banca, Zona comerciala, Autobuz

Puncte de interes

Mijloace transport
bus-station
Statia Barajul Dunarii, linia 330
Stații autobuz aprox. 120 m
tram-station
Barajul Rovinari
Stații tramvai aprox. 496 m
metro-station
Metrorex.Statia Titan (M1)
Stații metrou aprox. 823 m
train-station
Halta Titan Sud (23 August)
Stații tren aprox. 1349 m
Școală
kindergarten
Gradinita de copii nr.216
Gradinițe aprox. 198 m
kindergarten
Gradinita nr. 216
Gradinițe aprox. 213 m
school
Scoala Generala nr. 21 Liviu Rebreanu
Școli aprox. 263 m
university
Facultatea de Pompieri
Universități aprox. 1465 m
Recreere
restaurant
Restaurant Alba
Restaurant aprox. 53 m
park
Parc
Parcuri aprox. 76 m
sports-ground
Teren sportiv
Terenuri sport aprox. 140 m
supermarket
Lidl Titan
Supermarket aprox. 368 m

Detalii despre preț și costuri

Prețul pe piață

Preț cerut: 99.900 €

Preț min. zonă 93.000 €
Preț max. zonă 199.000 €

60% dintre proprietățile similare ca zonă și nr. camere au prețul cerut mai mare. mai multe...

Bine de știut: prețul unei proprietăți este influențat și de alte caracteristici, cum ar fi: vechime, localizare, vecinătăți, suprafață, compartimentare, amenajări, dotări, etc. mai puțin...

Costuri cu achiziția

Fără credit
21.387 RON
Credit ipotecar
22.924 RON
Noua casă
649 RON+ taxe notariale

i

Costuri adiționale mai puțin știute la achiziție: taxe notariale, comisioane etc.

Proprietăți similare

Apartament cu 3 camere semidecomandat, mobilat în Titan
96.000 €
București, Titan
3 camere
61 mp
Etaj 2
Apartament cu 3 camere semidecomandat, mobilat în Titan
107.000 €
București, Titan
3 camere
60 mp
Etaj 2
Apartament cu 2 camere decomandat, mobilat în Titan
97.000 €
București, Titan
2 camere
51 mp
Etaj 11 / 11

Detalii de contact

CR Imobiliare

Daniela Rogoz Broker imobiliar

4.67(8 review-uri)

CR Imobiliare
PRO

Abonează-te la newsletter să fii primul care primește cele mai noi recomandări de proprietăți și sfaturi de la experți.

CONTACT

Creează alertă

Salvează căutarea ca să primești pe email ultimele anunțuri publicate

Apartamente cu 3 camere de vânzare în zona Titan, Sector 3