21

Apartament 3 Camere Titan,Metrou,Zona Cu Facilitati,et parter/4

100.000 €

Titan, București

Nr. cam.:
3
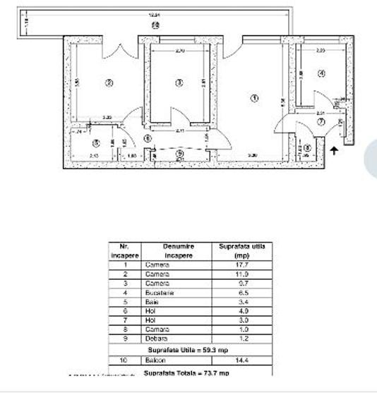
Sup. utilă:
65 mp
Etaj:
Parter / 4
An constr.:
1965
  • • Locație exactă

Descriere apartament

Bucuresti Imobiliare va ofera spre vanzare un apartament de trei camere situat in zona Titan,Utilat,Zona Cu Facilitati,et.parter/4,bl.1965,fara risc seismic PENTRU VIZIONARI SUNATI!!!
Citește mai mult Citește mai puțin
Confort 1 Decomandat Mobilat Parțial mobilat Bine întreținut (Bună) Necesită renovare

Detalii apartament

ID anunț: XFOE001GJ Copiat! 269081673 Copiat!
Actualizat în: 28 Ianuarie 2026
Suprafață utilă totală: 70 mp
Suprafață construită: 75 mp
Nr. bucătării: 1
Nr. băi: 1
Structură rezistență: Beton
Tip imobil: Bloc de apartamente
Regim înălțime: P+4E

Utilități

Destinație
Rezidențial
Pereți
Faianță Vopsea lavabilă
Podele
Gresie Parchet
Bucătărie
Mobilată Utilată
Electrocasnice
Frigider Aragaz Hotă Mașină de spălat
Utilități
Curent Apă Canalizare
Amenajare străzi
Asfaltate Betonate
Comision
standard

Vecinătăți:

Metrou TITAN
pARC

Puncte de interes

Mijloace transport
metro-station
Metrorex.Statia Titan (M1)
Stații metrou aprox. 167 m
bus-station
Statia Liviu Rebreanu / Posta Titan, linia 253, 311, 330, 335, N104, 101, 102,92
Stații autobuz aprox. 172 m
trolleybus-station
statie troleu 70,92,79 (en)
Stații troleibuz aprox. 825 m
tram-station
Barajul Rovinari
Stații tramvai aprox. 1088 m
Școală
kindergarten
Gradinita nr.69
Gradinițe aprox. 196 m
kindergarten
Cresa nr. 2 Titan
Gradinițe aprox. 251 m
school
Scoala Generala Nr. 195
Școli aprox. 306 m
university
Facultatea Științe Economice, Titu Maiorescu ( Facultatea Tatianei )
Universități aprox. 1153 m
Recreere
park
Parc
Parcuri aprox. 51 m
restaurant
Restaurant Praetoria
Restaurant aprox. 155 m
supermarket
Galeriile Titan
Supermarket aprox. 175 m
sports-ground
Teren sportiv
Terenuri sport aprox. 379 m

Detalii despre preț și costuri

Prețul pe piață

Preț cerut: 100.000 €

Preț min. zonă 93.000 €
Preț max. zonă 199.000 €

71% dintre proprietățile similare ca zonă și nr. camere au prețul cerut mai mare. mai multe...

Bine de știut: prețul unei proprietăți este influențat și de alte caracteristici, cum ar fi: vechime, localizare, vecinătăți, suprafață, compartimentare, amenajări, dotări, etc. mai puțin...

Costuri cu achiziția

Fără credit
6.112 RON
Credit ipotecar
7.649 RON
Noua casă
650 RON+ taxe notariale

i

Costuri adiționale mai puțin știute la achiziție: taxe notariale, comisioane etc.

Proprietăți recomandate

Detalii de contact

Bucuresti Imobiliare

Rafaela

3.88(24 review-uri)

Bucuresti Imobiliare
PRO

Abonează-te la newsletter să fii primul care primește cele mai noi recomandări de proprietăți și sfaturi de la experți.

CONTACT

Creează alertă

Salvează căutarea ca să primești pe email ultimele anunțuri publicate

Apartamente cu 3 camere de vânzare în zona Titan, Sector 3