Aprtament 2 camere Unirii-Soho | Mobilat-Utilat

210.000 €

Unirii, București

Nr. cam.:
2
Sup. utilă:
60 mp
Etaj:
Parter / 6
An constr.:
2019 (Finalizată)
  • • Locație exactă

Descriere apartament

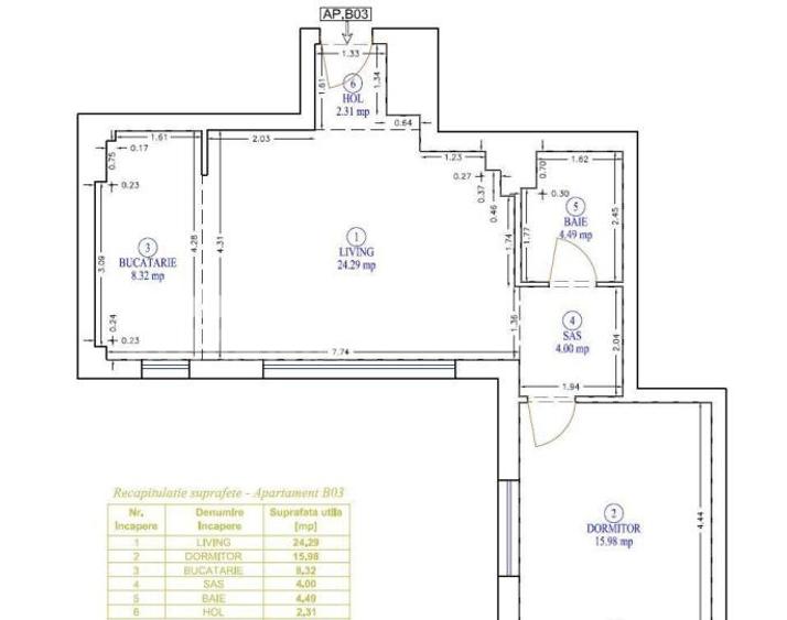
Apartament de 2 camere, situat în ansamblul rezidențial Soho Unirii, mobilat si utilat modern. Dispune de o suprafata utila de 59.39mp, eficient compartimentat, incaperi spatioase, luminoase. Este situat la parter inalt, camerele au inaltime de 2,75 m, oferind o senzație plăcută de spațiu și lumină. Beneficiaza de finisaje calitative, imobil bine intretinut, mobilat si utilat modern, totul functional. Confortul termic este oferit de centrala bloc, incalzire prin pardoseala. Ansamblul Soho este unul dintre cele mai cunoscute si bine cotate proiecte din zona, construit in anul 2019, cu materiale de calitate, finisaje atent alese și un standard ridicat de execuție. Soho Unirii este un ansamblu rezidențial securizat, format din 3 blocuri: curte interioară mare, scces doar pe baza de cartela, paza permanenta, parcare subterana pe doua niveluri. Perfect atât pentru locuire personală, cât și ca investiție sigură, într-o zonă centrală și liniștită. Beneficiaza de toate avantajele zonei, multiple mijloace de transport in comun, centre comerciale, instritutii de invatamant si medicale. ___ Global Home Romania, este o firmă în schimbare de jocuri pe piață imobiliară din România ce se afla intr-o expansiune rapidă. Modelul personalizat avand la baza tehnologia digitala, inteligenta artificala și interacțiune umană alături de colaboratorii firmei, inspiră constant încredere. Având o abordare de marketing profesională și îndrăzneță a ridicat atenția asupra modului în care oamenii se gândesc la imobiliare in Romania. Global Home Romania, companie imobiliara infiintata in 2020 ce continuă să se dezvolte cu succes în domeniu, reușind să atraga constant parteneri și colaboratori de încredere. Cu sediul în București, Global Home Romania, a apărut ca o firmă imobiliară de încredere ce își propune constant să livreze servicii de calitate. Misiunea Global Home Romania în piața imobiliară, este aceea de a stabili un raport solid bazat pe încredere și profesionalism între reprezentantii nostri imobiliari bine informati impreuna cu toti clientii si colaboratorii companiei.
Citește mai mult Citește mai puțin
Confort 1 Semidecomandat Mobilat Mobilat Curte Aer condiționat Centrală proprie Încălzire prin pardoseală Bine întreținut (Bună)

Detalii apartament

ID anunț: XBMO108Q3 Copiat! 274870736 Copiat!
Actualizat în: 06 Martie 2026
Suprafață construită: 72 mp
Nr. bucătării: 1
Nr. băi: 1
Tip imobil: Bloc de apartamente
Regim înălțime: P+6E

Utilități

Destinație
Rezidențial
Pereți
Vopsea lavabilă Faianță
Podele
Parchet Gresie
Ușă intrare
Metal
Uși interior
Lemn
Izolații termice
Exterior Interior
Ferestre cu geam termopan
PVC
Contorizare
Apometre Contor căldură Contor gaz
Bucătărie
Mobilată Utilată
Electrocasnice
Mașină de spălat Frigider Aragaz Mașină spălat vase TV Hotă
Facilități imobil
Videointerfon Lift
Utilități
Curent Apă Canalizare Gaze
Servicii imobil
Supraveghere video
Amenajare străzi
Asfaltate Betonate Iluminat stradal Mijloace de transport în comun

Certificat energetic:

Clasa energetică: A

Puncte de interes

Mijloace transport
bus-station
Bd. Dimitrie Cantemir / Bd. Marasesti, Liniile 312, 313, 381, N105, N106, N112, 116, 23, 27
Stații autobuz aprox. 231 m
tram-station
Bd. Dimitrie Cantemir
Stații tramvai aprox. 239 m
bus-station
Statia Bulevardul Marasesti linii : 76,312,313,381.
Stații autobuz aprox. 244 m
metro-station
Metrorex. Stația Tineretului (M2)(1986)
Stații metrou aprox. 596 m
Școală
school
Colegiul National "Ion Creanga"
Școli aprox. 189 m
school
Scoala nr.79 "Academician Nicolae Teodorescu"
Școli aprox. 214 m
kindergarten
Gradinita "Scufita Rosie"
Gradinițe aprox. 265 m
university
Academia de Studii Economice
Universități aprox. 557 m
Recreere
public-square
Piata Bucur
Piețe publice aprox. 101 m
supermarket
ClicMarket
Supermarket aprox. 271 m
park
Parc
Parcuri aprox. 466 m
mall
Bucharest, Calea Vitan nr. 8, Bl V51, near VITAN Mall
Mall aprox. 1292 m

Detalii despre preț și costuri

Prețul pe piață

Preț cerut: 210.000 €

Preț min. zonă 83.493 €
Preț max. zonă 255.000 €

78% dintre proprietățile similare ca zonă și nr. camere au prețul cerut mai mic. mai multe...

Bine de știut: prețul unei proprietăți este influențat și de alte caracteristici, cum ar fi: vechime, localizare, vecinătăți, suprafață, compartimentare, amenajări, dotări, etc. mai puțin...

Costuri cu achiziția

Fără credit
10.110 RON
Credit ipotecar
12.114 RON
Noua casă
1.210 RON+ taxe notariale

i

Costuri adiționale mai puțin știute la achiziție: taxe notariale, comisioane etc.

Proprietăți recomandate

Detalii de contact

Abonează-te la newsletter să fii primul care primește cele mai noi recomandări de proprietăți și sfaturi de la experți.

CONTACT

Creează alertă

Salvează căutarea ca să primești pe email ultimele anunțuri publicate

Apartamente cu 2 camere de vânzare în zona Unirii, Sector 3