Agentia Refinder vă propune spre vânzare un apartament modern cu 2 camere, situat într-un imobil nou (2017), în zona centrală Unirii - Udriste, una dintre cele mai bine conectate și dinamice arii ale Capitalei.
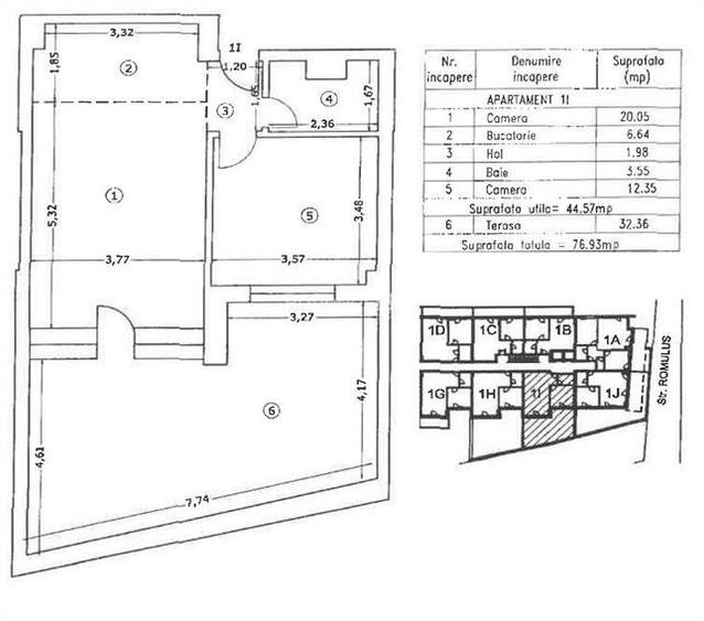
Proprietatea are o suprafață totală de 77 mp, dintre care 45 mp reprezintă spațiul util interior, la care se adaugă o terasă impresionantă de 32 mp – un spațiu ideal pentru relaxare, dining în aer liber sau amenajare tip rooftop urban.
Apartamentul se vinde complet mobilat și utilat, fiind pregătit pentru mutare imediată sau pentru preluarea contractului de închiriere existent. În prezent, proprietatea este închiriată, oferind un randament stabil și imediat, ceea ce o transformă într-o oportunitate atractivă atât pentru locuire proprie, cât și pentru investiție (închiriere pe termen lung sau regim hotelier).
Imobilul, finalizat în 2017, este modern, bine întreținut și dispune de două lifturi, precum și de acces rapid către principalele puncte de interes din centrul Bucureștiului.
Proprietatea include 1 loc de parcare. Se vinde mobilata si utilata.
Preț apartament: 243.000 euro
Pentru mai multe detalii și programarea unei vizionări, vă stăm la dispoziție.
!!Pentru serviciile de intermediere imobiliara, Agentia percepe comision de 3% din pretul de vanzare!!
!!Vizionarile se fac doar în baza semnării în prealabil a Fisei de Vizionare.!!
100%dintre proprietățile similare ca zonă și nr. camere au prețul cerutmai mic.
mai multe...
Bine de știut: prețul unei proprietăți este influențat și de alte caracteristici, cum ar fi: vechime, localizare, vecinătăți, suprafață, compartimentare, amenajări, dotări, etc.
mai puțin...
Costuri cu achiziția
Fără credit
48.413 RON
Credit ipotecar
50.558 RON
Noua casă
1.379 RON+ taxe notariale
i
Costuri adiționale mai puțin știute la achiziție: taxe notariale, comisioane etc.
Sediul central - Timișoara
Bulevardul Victor Babeș nr. 2, 300230, Timișoara, România
Tel: +40.374.40.44.98 / Fax: +40.256.401.179
Email: suport@imobiliare.ro
Luni - Vineri 08:00 - 20:00
Punct de lucru - București: Iride Business Park, Bld. Dimitrie
Pompeiu 9-9A, Clădirea B2B,
020335, Sector 2, București, România
CONTACT
Sediul central - Timișoara
Bulevardul Victor Babeș nr. 2, 300230, Timișoara, România
Tel: +40.374.40.44.98 / Fax: +40.256.401.179
Email: suport@imobiliare.ro
Luni - Vineri 08:00 - 20:00
Punct de lucru - București: Iride Business Park, Bld. Dimitrie
Pompeiu 9-9A, Clădirea B2B,
020335, Sector 2, București, România
Stațiile de metrou aflate chiar în "inima" acestei zone, în Piața Unirii, îți oferă posibilitatea de a călători rapid, evitând aglomerația din trafic. Stația Piața Unirii 1 oferă conexiuni la magistrala M1 Dristor - Pantelimon și la magistrala M3 Preciziei - Anghel Saligny. Aceasta este conectată de stația Piața Unirii 2, aflată pe magistrala M2 Berceni - Pipera printr-un pasaj. Astfel, poți ajunge chiar și în mai puțin de 10 minute în zona Politehnică sau la Piața Victoriei și în circa 15 minute în Pipera, unul dintre principalii poli de business ai orașului. Cu autobuzul 104 poți ajunge în cartierul Pantelimon, iar cu tramvaiul 47 în cartierul Rahova. Consultă harta pentru a localiza stațiile mijloacelor de transport în comun.
Printre unitățile de învățământ din această zonă se numără Colegiul Național "Mihai Eminescu", Colegiul Național "Ion Creangă", Colegiul Național de Arte "Dinu Lipatti" și Facultatea de Teologie Ortodoxă "Justinian Patriarhul". Tot aici își are sediul și Institutul Bancar Român care ajută la specializarea personalului din sectorul financiar-bancar. Ajungi foarte repede din Piața Unirii, chiar și pe jos, la Palatul Universității care găzduiește sediile mai multor facultăți. Găsește pe hartă și cele mai apropiate grădinițe, școli și licee de viitoarea ta locuință.
Dacă te vei muta în această zonă, vei avea la doi pași de casă centrul comercial Unirea Shopping Center, care găzduiește, printre altele, magazinele mai multor branduri de modă. În spatele acestuia vei găsi un hipermarket Carrefour. Diverse magazine pot fi găsite și în Centrul Vechi. Pe Strada Lipscani poți să vizitezi una dintre cele mai frumoase librării din Capitală, Cărturești Carusel. Magazin Cocor, care a fost modernizat recent, poate fi și el o alternativă. În imediata sa vecinătate se află și noul magazin București. Pentru mai multe opțiuni, poți merge la București Mall, cel mai apropiat centru comercial de acest tip. Consultă harta pentru a vedea ce alte opțiuni ai în zona Unirii și în împrejurimi.
Lângă Centrul Comercial Unirea Shopping Center vei găsi o parcare supraterană unde îți poți lăsa mașina contra-cost. Dacă te gândești să te muți în zona Piața Unirii îți amintim, de asemenea, că traficul pe Bulevardul Unirii este destul de îngreunat la orele de vârf. Nu uita, totodată, că traficul rutier este închis uneori în Piața Constituției pentru organizarea unor evenimente și concerte. Pentru închirierea unui loc de parcare în apropierea locuinței de care ești interesat va trebui să apelezi la reprezentanții autorităților locale de pe sectorului în care se află aceasta (Direcția Generală Impozite și Taxe Locale Sector 3, Direcția Mobilitate Urbană Sector 4, Serviciul Parcaje Scop Reședință Sector 5). Consultă harta pentru a localiza mai ușor principalele parcări din zona Unirii.
Dacă decizi să te muți într-o locuință în zona Unirii, atunci vei avea la dispoziție numeroase opțiuni de petrecere a timpului liber. Chiar în Piața Unirii vei găsi unul dintre binecunoscutele obiective ale orașului, Hanul lui Manuc. Construit în 1808 acesta a fost renovat în urmă cu câțiva ani și găzduiește, în prezent, mai multe cafenele, restaurante și mici magazine. Acesta se află chiar la marginea Centrului Vechi al Capitalei, principalul punct de atracție pentru iubitorii vieții de noapte. Tot aici găsești și câteva obiective turistice importante - Palatul Voievodal Curtea Veche, Palatul BNR, Muzeul Național de Istorie a României și Muzeul Municipal București. Parcurile Izvor și Unirii sunt principalele spații verzi din această zonă. Nu trebuie să uiți însă că nu va trebui să mergi mult pentru a ajunge și la Grădina Cișmigiu sau în Parcul Tineretului. Poți merge, totodată, la un spectacol la Teatrul Evreiesc de Stat sau poți participa la evenimentele și la concertele care se organizează periodic în Piața Constituției de lângă Palatul Parlamentului. Poți lua parte la diverse evenimente și vizitând Biblioteca Națională a României, o altă clădire reprezentativă din această zonă. Ajungi foarte ușor, pe jos sau cu metroul, la Teatrul Național București în fața căruia găsești și un mic parc. Iar dacă toate acestea nu sunt de ajuns, atunci o plimbare pe Calea Victoriei și o vizită la numeroasele obiective de interes aflate de-a lungul ei cu siguranță te vor satisface. Cea mai bună parte este că această arteră de circulație se închide circulației rutiere uneori și devine strict pietonală. În plus, aici ai la dispoziție una dintre puținele piste dedicate bicicliștilor din oraș. Consultă harta pentru a vedea ce alte opțiuni de petrecere a timpului liber vei avea odată ce te vei muta în zona Unirii.
Dacă te vei muta în această zonă, vei putea apela în caz de nevoie la câteva clinici private. Printre acestea amintim Hiperclinica MedLife Unirii, clinica de stomatologie DentaLife și Medas Unirea. Unele dintre cele mai apropiate spitale la care vei avea acces vor fi Spitalul Cinic Colțea din Piața Universității și Spitalul Clinic Prof. Dr. Theodor Burghele, aflat în apropierea Palatului Parlamentului. Vezi pe hartă ce alte unități medicale se află în zona Unirii și în vecinătatea sa.
Centrul Vechi îți oferă numeroase opțiuni la acest capitol, iar câteva fast food-uri ai la dispoziție la parterul centrului comercial Unirea Shopping Center, situat chiar în Piața Unirii. Găsești câteva terase și pe malul Dâmboviței, lângă Biblioteca Națională a României. Dacă vrei să schimbi peisajul, poți să ajungi destul de repede cu mașina sau cu mijloacele de transport în comun la București Mall sau poți încerca una dintre numeroasele terase din Piața Alba Iulia sau de pe Bulevardul Decebal. Mai mult, ai relativ aproape și Calea Victoriei, perfectă pentru promenadă, dar și pentru un popas la restaurant. Consultă harta și află care sunt cele mai apropiate localuri de viitoarea ta locuință.
Găsești mai multe ATM-uri și sucursale bancare în Piața Unirii, unele dintre ele chiar în incinta complexului comercial Unirea Shopping Center. Vezi care este cel mai potrivit pentru tine de pe hartă.
Înainte să pleci...
Ești sigur că ai văzut și aceste proprietăți?
227.997 € + TVA
București, Unirii
2 camere
80 mp
Etaj 5 / 11
260.000 €
București, Unirii
3 camere
73 mp
Etaj 2
260.000 €
București, Unirii
3 camere
73 mp
Etaj 2
Creează alertă
Salvează căutarea ca să primești pe email ultimele anunțuri publicate
Apartamente cu 2 camere de vânzare în zona Unirii, Sector 3
Cere detalii prin email
*
*
*
*
Detaliile tale de contact vor fi partajate cu Refinder Elite
Statistici proprietate
Apartamente 2 camere de vânzare
- București
- Zona Unirii
Asigurare de viață/lună Costul este variabil. În funcție de banca aleasă, procentul variază între 0.0259% și 0.035% din soldul creditului.
Costuri cu achiziția50.558 RON
Comision agenție 3%37.165 RON
Onorariu notarial9.390 RON
Taxă întabulare OCPI1.858 RON
Autentificare contract credit2.145 RON
Preț de achiziție1.238.838 RON
Preț locuință1.238.838 RON
TVA 0%Inclus în prețul cerut
Preț de achiziție1.238.838 RON
Preț locuință1.238.838 RON
TVA 0%
Inclus în prețul cerut
Avans minim632.164 RON
Credit pe 30 de ani606.674 RON
Cost achitat în prima lună
Taxa evaluare imobil(până la)
575 RON
Rata lunară (variabilă)4.263 RON
Depozit colateral12.789 RON
Comision de garantare FNGCIMM103 RON
Asigurare anuală imobil1.239 RON
Poliță PAD130 RON
Tarif arhivă electronică102 RON
Costuri adiționale1.379 RON + taxe notariale
Asigurare viață și complexă (opțională)Costul este variabil. În funcție de banca aleasă, procentul variază între 0.0259% și 0.035% din soldul creditului
Onorariu notarialconform tarif notarial
Taxă întabulare OCPI1.379 RON
i
Toate valorile de mai sus sunt estimative și nu reprezintă în mod obligatoriu costurile exacte pe care le veți primi de la companiile/instituțiile prin care veți încheia tranzacția.