2 camere Vitan | Balcon impresionant de 9m2 |

122.999 €

Vitan, București

Nr. cam.:
2
Sup. utilă:
49,2 mp
Etaj:
8
An constr.:
1980
  • • Locație aproximativă

Descriere apartament

Va propunem spre vanzare un apartament luminos si bine compartimentat, situat la etajul 8 din 10 al unui bloc solid si intretinut, cu lift functional si reabilitat termic. Beneficiaza de o priveliste frumoasa asupra orasului si o pozitie excelenta – in inima cartierului Vitan, la cateva minute de statia de metrou Dristor, Bucuresti Mall, supermarketuri, farmacii, scoli si restaurante. Detalii principale: 2 camere, compartimentare practica, zona linistita si civilizata Bloc intretinut, acces securizat In curs de renovare: instalatii electrice si sanitare complet schimbate, finisaje moderne, iar in functie de preferintele dumneavoastra pot fi ajustate. Gata de mutare imediata – fara investitii suplimentare Ideal pentru tineri profesionisti, cupluri sau investitori care cauta o locuinta moderna, intr-o zona centrala, sigura si foarte bine conectata la restul orasului. Contacteaza-ne pentru detalii si vizionare!
Citește mai mult Citește mai puțin
Confort 1 Semidecomandat 1 Balcon Calorifere Termoficare Renovat

Detalii apartament

ID anunț: XC45200VH Copiat! 274971602 Copiat!
Actualizat în: 16 Februarie 2026
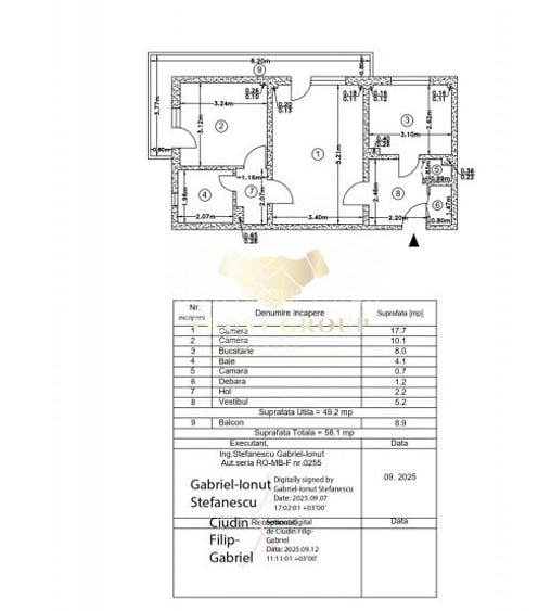
Suprafață construită: 58.1 mp
Nr. bucătării: 1
Nr. băi: 1
Tip imobil: Bloc de apartamente
Regim înălțime: P+10E

Utilități

Destinație
Rezidențial
Utilități
Curent Apă Canalizare Gaze
Izolații termice
Bloc izolat termic
Comision
standard

Disponibilitate proprietate:

imediat

Puncte de interes

Mijloace transport
bus-station
Statia Piscul Rachitei, linia 223,124
Stații autobuz aprox. 280 m
bus-station
Stadion Olimpia :: Statie RATB :: 123,124,135,223
Stații autobuz aprox. 370 m
tram-station
Penes Curcanul
Stații tramvai aprox. 448 m
metro-station
Metrorex. Stația Mihai Bravu (M1) , (M3).
Stații metrou aprox. 486 m
Școală
school
Scoala nr.87
Școli aprox. 581 m
school
Scoala Generala nr. 84
Școli aprox. 714 m
kindergarten
Gradinita nr. 255
Gradinițe aprox. 813 m
university
Universitatea "Gheorghe Cristea"
Universități aprox. 980 m
Recreere
sports-ground
Teren sportiv
Terenuri sport aprox. 310 m
supermarket
Mega Image Lugojana
Supermarket aprox. 402 m
park
Parc
Parcuri aprox. 661 m
mall
Bucharest, Calea Vitan nr. 8, Bl V51, near VITAN Mall
Mall aprox. 1570 m

Detalii despre preț și costuri

Prețul pe piață

Preț cerut: 122.999 €

Preț min. zonă 69.800 €
Preț max. zonă 200.000 €

72% dintre proprietățile similare ca zonă și nr. camere au prețul cerut mai mic. mai multe...

Bine de știut: prețul unei proprietăți este influențat și de alte caracteristici, cum ar fi: vechime, localizare, vecinătăți, suprafață, compartimentare, amenajări, dotări, etc. mai puțin...

Costuri cu achiziția

Fără credit
7.126 RON
Credit ipotecar
8.761 RON
Noua casă
767 RON+ taxe notariale

i

Costuri adiționale mai puțin știute la achiziție: taxe notariale, comisioane etc.

Proprietăți recomandate

Detalii de contact

TRUST GROUP ESTATE

Mihai Vladia Senior Consultant Imobiliar

4.63(13 review-uri)

TRUST GROUP ESTATE
PRO

Abonează-te la newsletter să fii primul care primește cele mai noi recomandări de proprietăți și sfaturi de la experți.

CONTACT

Creează alertă

Salvează căutarea ca să primești pe email ultimele anunțuri publicate

Apartamente cu 2 camere de vânzare în zona Vitan, Sector 3