1

Apartament 2 camere, decomandat, langa Mall Grand Arena - Comision 0

95.500 € + TVA

Berceni, București

Nr. cam.:
2
Sup. utilă:
55,85 mp
Etaj:
2 / 6
An constr.:
2025 (În construcție)
  • • Comision 0%
  • • Locație aproximativă

Descriere apartament

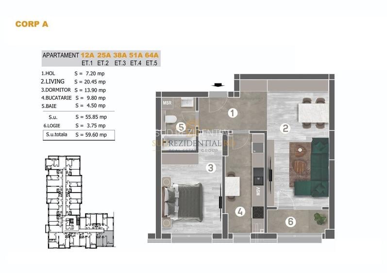
Apartamentul cu 2 camere propus spre vanzare este disponibil in cadrul ansamblului Cavar Residence Grand Arena Brancoveanu, proiect de mari dimensiuni, dezvoltat la standarde inalte situatin Sectorul 4 al Capitalei, Bucuresti, zona Bd. Constantin Brancoveanu, Mall Grand Arena. Imobilul propus  este dispus la etajul 2/5 al imobilului, si are suprafata totala de 59.60 mp dispusa printr-o compartimentare moderna, bine optimizata, dupa cum urmeaza: living generos cu suprafata de 20.45 mp, bucatarie 9.80 mp, baie 4.50 mp, dormitor 13.90 mp, hol acces 7.20 mp si balcon tip logie 3.75 mp. Apartamentul se preda echipat complet si dispune de finisaje si obiecte sanitare de calitate premium, centrala termica in condensare, tamplarie PVC cu geam tripan de foarte buna calitate. Cavar Residence este un proiect imobiliar premium, pozitionat excelent si integrat complet cu natura, interconectat cu toate facilitatile moderne ale orasului si insotit de o serie de facilitati complementare. Locuinta este situata intr-o zona rezidentiala dezvoltata, cu acces rapid la facilitati esentiale: - Centre comerciale: Grand Arena Mall, Carrefour, Lidl, Kaufland, Metro, Auchan, Hornbach, Jumbo - Servicii: scoli, gradinite, licee, unitati medicale, farmacii, banci - Agrement: restaurante, cafenele, Parcul Tudor Arghezi – cu locuri de joaca, terenuri de sport si spatii verzi Transport si acces: - Statia STB (linia 241) la doar 100 m – legatura directa cu metrou Aparatorii Patriei - Acces rapid la Bd. Constantin Brancoveanu, Bd. Metalurgiei, Bd. Obregia - Drumuri asfaltate si modernizate pentru conexiuni rapide spre centrul orasului Pret de lista: 95.500 Euro + TVA
Citește mai mult Citește mai puțin
Confort 1 Decomandat 1 Balcon / Terasă / Logie Calorifere Centrală proprie

Detalii apartament

ID anunț: X53U10072 Copiat! 249036976 Copiat!
Actualizat în: 30 Ianuarie 2026
Suprafață construită: 70 mp
Nr. bucătării: 1
Nr. băi: 1
Structură rezistență: Beton
Tip imobil: Bloc de apartamente
Regim înălțime: D+P+6E

Utilități

Destinație
Birouri Rezidențial
Pereți
Faianță Vopsea lavabilă
Podele
Gresie Parchet
Ușă intrare
Metal
Uși interior
Lemn
Izolații termice
Exterior
Ferestre cu geam termopan
PVC
Contorizare
Apometre Contor căldură Contor gaz
Facilități imobil
Interfon Lift
Utilități
Curent Apă Canalizare Gaze Telefon
Internet
Cablu
Amenajare străzi
Iluminat stradal Mijloace de transport în comun Asfaltate
Comision
0%

Disponibilitate proprietate:

09.2025

Puncte de interes

Mijloace transport
bus-station
Statia Real Berceni, linia 232
Stații autobuz aprox. 888 m
bus-station
Statia Actiunii / Pogoanele, linia 216
Stații autobuz aprox. 910 m
train-station
Gara CFR Progresul
Stații tren aprox. 1533 m
tram-station
Bucla de intoarcere a tramvaiului 29(desfiintata)
Stații tramvai aprox. 1849 m
Școală
kindergarten
Gradinita nr. 149
Gradinițe aprox. 1470 m
kindergarten
Gradinita
Gradinițe aprox. 1532 m
school
Gradinita 167
Școli aprox. 1537 m
school
Clubul Sportiv Scolar 6
Școli aprox. 1654 m
Recreere
park
Sere
Parcuri aprox. 808 m
supermarket
Auchan Berceni
Supermarket aprox. 969 m
hypermarket
Hornbach
Hipermarket aprox. 1085 m
restaurant
restaurant La Sediu
Restaurant aprox. 1318 m

Detalii despre preț și costuri

Prețul pe piață

Preț cerut: 95.500 €

Preț min. zonă 59.000 €
Preț max. zonă 137.900 €

52% dintre proprietățile similare ca zonă și nr. camere au prețul cerut mai mare. mai multe...

Bine de știut: prețul unei proprietăți este influențat și de alte caracteristici, cum ar fi: vechime, localizare, vecinătăți, suprafață, compartimentare, amenajări, dotări, etc. mai puțin...

Costuri cu achiziția

Fără credit
6.840 RON
Credit ipotecar
8.443 RON
Noua casă
729 RON+ taxe notariale

i

Costuri adiționale mai puțin știute la achiziție: taxe notariale, comisioane etc.

Proprietăți recomandate

Detalii de contact

SUD REZIDENTIAL

SudRezidential

SUD REZIDENTIAL
PRO

Abonează-te la newsletter să fii primul care primește cele mai noi recomandări de proprietăți și sfaturi de la experți.

CONTACT

Creează alertă

Salvează căutarea ca să primești pe email ultimele anunțuri publicate

Apartamente cu 2 camere de vânzare în zona Berceni, Sector 4