3 camere zona Sun Plazza

120.000 €

Berceni, București

Nr. cam.:
3
Sup. utilă:
65 mp
Etaj:
Parter / 8
An constr.:
1981
  • • Comision 0%
  • • Locație exactă

Descriere apartament

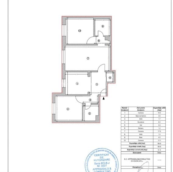
Vand apartament 3 camere, sectorul 4, Str. Stânjeneilor. Apartamentul are o suprafață de 65 mp, parter, semi-decomandat și are 2 băi, an construcție 1981, bloc reabilitat recent. Apartamentul este curat, într-o zonă liniștită, ideal pentru o familie cu copii, la 3 min ( mers pe jos) de școala 133, gradiniță la 5 min de mers pe jos, metrou la 10 min de mers pe jos, stație STB la 5 min, multiple magazine in zonă ( Mega Image, Lidl, farmacii, Sun Plazza la 10 min de mers pe jos, Delta Văcărești la 7-8 min de mers pe jos. . Preț: 120.000 Euro.
Citește mai mult Citește mai puțin
Confort 1 Semidecomandat

Detalii apartament

ID anunț: XV1000B58 Copiat! 275206945 Copiat!
Actualizat în: 06 Martie 2026
Nr. băi: 2
Tip imobil: Bloc de apartamente
Regim înălțime: P+8E

Utilități

Comision
0%

Puncte de interes

Mijloace transport
tram-station
Lunca Barzesti
Stații tramvai aprox. 240 m
tram-station
Statia Lunca Barzesti, linia 11
Stații tramvai aprox. 241 m
bus-station
Statia Lunca Barzesti, linia 634
Stații autobuz aprox. 266 m
metro-station
Metrorex. Stația Piața Sudului (M2)(1986)
Stații metrou aprox. 636 m
Școală
school
Scoala generala Nr. 133 (en)
Școli aprox. 202 m
school
Scoala nr. 133
Școli aprox. 212 m
kindergarten
Gradinita Happy Junior
Gradinițe aprox. 342 m
university
Universitatea "Spiru Haret" (Fosta Casă de Cultură IMGB).
Universități aprox. 1118 m
Recreere
supermarket
Supermarket
Supermarket aprox. 126 m
park
Parc
Parcuri aprox. 142 m
sports-ground
Teren sportiv
Terenuri sport aprox. 416 m
mall
Cora Sun Plaza
Mall aprox. 786 m

Detalii despre preț și costuri

Prețul pe piață

Preț cerut: 120.000 €

Preț min. zonă 84.000 €
Preț max. zonă 219.000 €

60% dintre proprietățile similare ca zonă și nr. camere au prețul cerut mai mic. mai multe...

Bine de știut: prețul unei proprietăți este influențat și de alte caracteristici, cum ar fi: vechime, localizare, vecinătăți, suprafață, compartimentare, amenajări, dotări, etc. mai puțin...

Costuri cu achiziția

Fără credit
7.021 RON
Credit ipotecar
8.643 RON
Noua casă
751 RON+ taxe notariale

i

Costuri adiționale mai puțin știute la achiziție: taxe notariale, comisioane etc.

Proprietăți similare

Apartament cu 2 camere decomandat în Berceni
129.000 € + TVA
București, Berceni
2 camere
52,95 mp
Etaj 2
Apartament cu 2 camere decomandat în Berceni
129.000 € + TVA
București, Berceni
2 camere
52,95 mp
Etaj 2
Apartament cu 2 camere decomandat în Berceni
129.000 € + TVA
București, Berceni
2 camere
52,95 mp
Etaj 2

Detalii de contact

h.anamariaa@gmail.com

h.anamariaa@gmail.com

Proprietar

Abonează-te la newsletter să fii primul care primește cele mai noi recomandări de proprietăți și sfaturi de la experți.

CONTACT

Creează alertă

Salvează căutarea ca să primești pe email ultimele anunțuri publicate

Apartamente cu 3 camere de vânzare în zona Berceni, Sector 4