1

Apartament 3 camere, accesrapid la metrou – Eroii Revolutiei, Sect 4

265.000 € + TVA

Brâncoveanu, București

Nr. cam.:
3
Sup. utilă:
83,8 mp
Etaj:
1 / 3
An constr.:
2025 (În construcție)
  • • Comision 0%
  • • Locație aproximativă

Descriere apartament

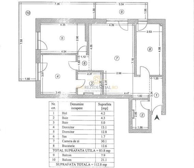
Va propunem spre vanzare un apartament spatios si modern cu 3 camere, situat la etajul 1/3 al unui ansamblu rezidential exclusivist din Sector 4, Bucuresti. Locuinta se remarca prin designul contemporan si o compartimentare inteligenta, fiind perfecta pentru familii sau pentru cei care apreciaza spatiul si confortul. Suprafata si compartimentare: - Suprafata utila: 83.8 mp - Balcon: 29 Spatiul interior este optimizat astfel incat sa ofere functionalitate si confort: - Hol: 4.2 mp - Bucatarie: 12.6 mp - Living: 30.1 mp - Dormitor 1: 13.1 mp - Dormitor 2: 12.8 mp - Baie principala: 5 mp - Grup sanitar: 4.3 mp - Sas: 1.7 mp Apartamentul beneficiaza de finisaje de inalta calitate, precum tamplarie PVC cu geam tripan, parchet rezistent la trafic intens si gresie moderna. Sistemul de incalzire prin pardoseala, impreuna cu centrala termica proprie, asigura confort termic optim indiferent de sezon. Complexul rezidential este situat intr-o zona excelenta, cu acces rapid la transportul in comun. Statia de metrou Eroii Revolutiei se afla la aproximativ 10-12 minute de mers pe jos, iar in imediata apropiere se gasesc statii STB si tramvaie (7, 19, 25), ce asigura conexiuni rapide spre diferite puncte ale orasului. Zona dispune de toate facilitatile necesare pentru un trai confortabil, incluzand institutii de invatamant, centre comerciale precum Sun Plaza si Piata Progresul, dar si spatii verzi generoase. Parcurile Tineretului, Oraselul Copiilor si Carol sunt usor accesibile, oferind numeroase optiuni pentru relaxare si petrecerea timpului liber. Pentru mai multe informatii sau pentru a programa o vizionare, nu ezitati sa ne contactati! In pretul afisat nu este inclusa cota de TVA.
Citește mai mult Citește mai puțin
Confort 1 Nemobilat 2 Balcoane / Terase / Logii Aer condiționat Centrală proprie Încălzire prin pardoseală

Detalii apartament

ID anunț: X53U100U9 Copiat! 256496474 Copiat!
Actualizat în: 02 Ianuarie 2026
Suprafață construită: 99 mp
Nr. bucătării: 1
Nr. băi: 2
Structură rezistență: Beton
Tip imobil: Bloc de apartamente
Regim înălțime: S+P+3E

Utilități

Destinație
Birouri Rezidențial
Pereți
Faianță Vopsea lavabilă
Podele
Gresie Parchet
Ușă intrare
Metal
Uși interior
Lemn
Izolații termice
Exterior
Ferestre cu geam termopan
PVC
Contorizare
Apometre Contor căldură Contor gaz
Facilități imobil
Lift Videointerfon
Utilități
Curent Apă Canalizare Gaze
Internet
Cablu
Amenajare străzi
Iluminat stradal Mijloace de transport în comun Asfaltate
Comision
0%

Disponibilitate proprietate:

03.2025

Puncte de interes

Mijloace transport
bus-station
Statie RATB
Stații autobuz aprox. 350 m
tram-station
Opris Ilie
Stații tramvai aprox. 353 m
metro-station
Metrorex. Stația Constantin Brâncoveanu (M2)(1988)
Stații metrou aprox. 465 m
bus-station
Statie RATB - Constantin Brancoveanu
Stații autobuz aprox. 471 m
Școală
kindergarten
Ursuletul de Plus - Gradinita de vara&afterschool
Gradinițe aprox. 50 m
school
Grădinița nr.263, "Ciupercuta"
Școli aprox. 245 m
kindergarten
EuroKid afterschool
Gradinițe aprox. 407 m
university
Academie de Studii Postuniversitare - Politie
Universități aprox. 939 m
Recreere
supermarket
Ami market
Supermarket aprox. 319 m
sports-ground
Teren sportiv
Terenuri sport aprox. 434 m
park
Parc
Parcuri aprox. 470 m
mall
Cora Sun Plaza
Mall aprox. 1696 m

Detalii despre preț și costuri

Prețul pe piață

Preț cerut: 265.000 €

Preț min. zonă 84.000 €
Preț max. zonă 219.000 €

i

Proprietate cu prețul cerut în afara intervalului mai multe...

Posibile explicații pentru faptul că prețul proprietății este peste cel maxim: imobil nou cu suprafață mare, are dotări și finisaje de lux.
Bine de știut: prețul unei proprietăți este influențat și de alte caracteristici, cum ar fi: vechime, localizare, vecinătăți, suprafață, compartimentare, amenajări, dotări, etc.

Costuri cu achiziția

Fără credit
13.906 RON
Credit ipotecar
16.379 RON
Noua casă
1.773 RON+ taxe notariale

i

Costuri adiționale mai puțin știute la achiziție: taxe notariale, comisioane etc.

Proprietăți recomandate

Detalii de contact

SUD REZIDENTIAL

Sudrezidential

3.89(12 review-uri)

SUD REZIDENTIAL
PRO

Abonează-te la newsletter să fii primul care primește cele mai noi recomandări de proprietăți și sfaturi de la experți.

CONTACT

Creează alertă

Salvează căutarea ca să primești pe email ultimele anunțuri publicate

Apartamente cu 3 camere de vânzare în zona Brâncoveanu, Sector 4